Luxurious 2-7 Bedroom, 4744-8504 Sq Ft Rustic Plan with Elevator

Front elevation of Rustic home (ThePlanCollection: House Plan #187-1184)

Images/Plans copyrighted by designer. Photos may reflect homeowner modifications.

About House Plan #187-1184

Sq Ft
4744
Sq Ft
Bedrooms
2
Bedrooms
Bathroom
3
Baths
Half Baths
0
Half Baths
Bedrooms
3
Cars
Bedrooms
1
Stories
Bedrooms
91' 6'
Width
Bedrooms
64
Depth
Starting at$1450.00What's included
STEP 1Bedrooms
STEP 2Bedrooms
STEP 3Bedrooms

Subtotal:$0
Plan Collection

How much will it cost to build?

Estimate your costs based on your location and materials.

Free Cost Instant Estimator

Floor Plans

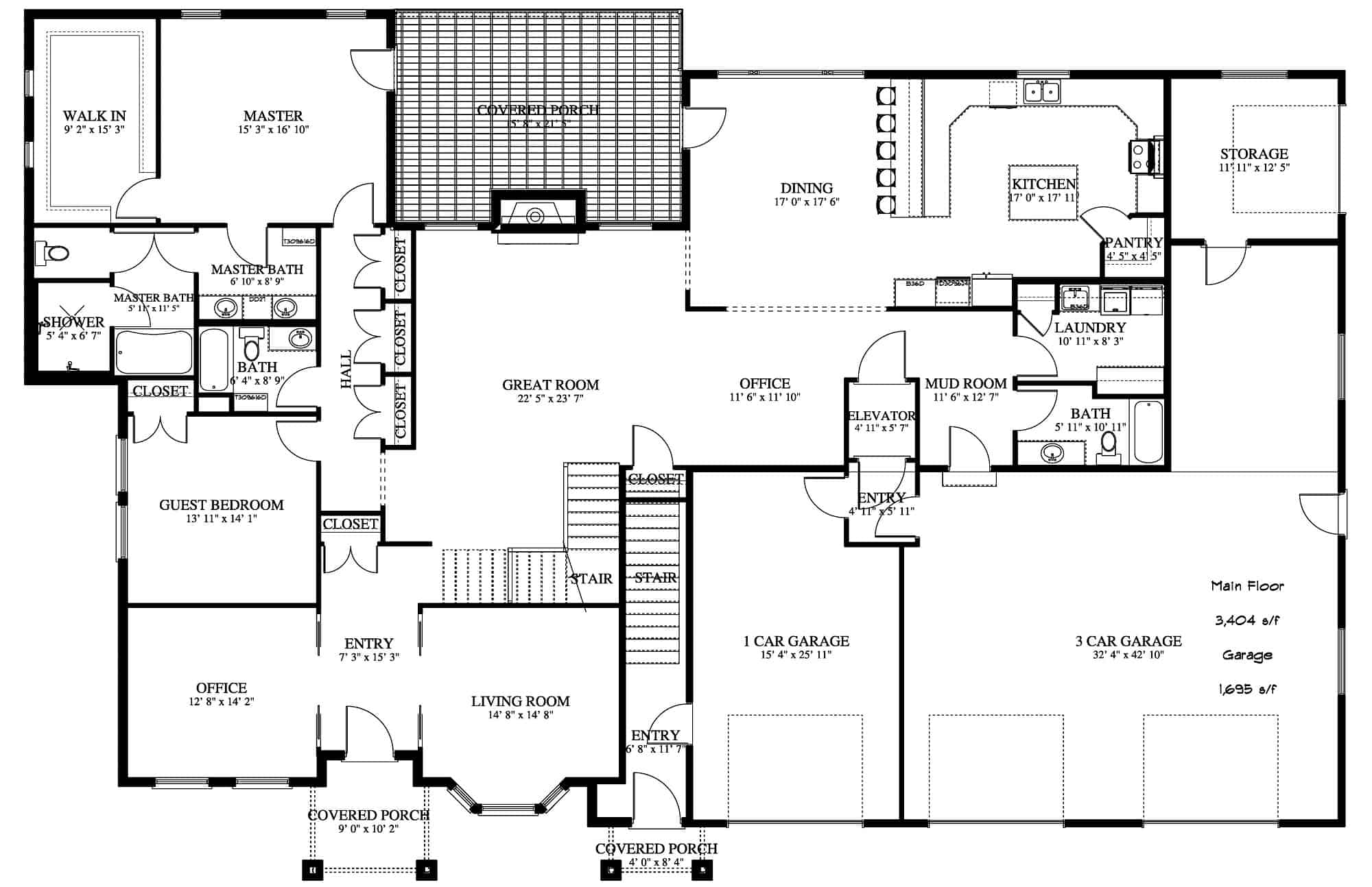
Main Level
Main Level
Main Level
Main Level
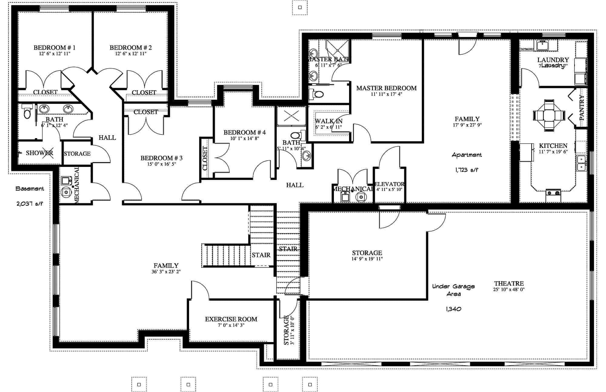
Basement
Basement
Plan Collection

Can I modify this plan?

Yes! This plan can be customized—contact us for a free quote.

Additional Notes from Designer

PLEASE NOTE! On some plans, alternate foundations could take up to ONE WEEK to produce. NOTE FROM DESIGNER: If you purchase a CAD, you will automatically receive the unlimited build license!

Note: Porch sq ft figures may include any deck sq ft as well.

House Plan Description

This beautiful Rustic Ranch with Contemporary influences is 4,744 square feet with 2 bedrooms, 3 baths, and a 3-car garage. Among the fantastic amenities you'll find in this lovely home are:

  • Family Room, Exercise Room, Living Room, Great Room, Home Office
  • Dining Room, Kitchen with Walk-in Pantry
  • Guest Room, Elevator
  • Master Bedroom with Walk-in Closet, Master Bathroom

The optional finished basement includes an additional 3,760 square feet, 5 more bedrooms, 3 more baths, and a theatre room.

Home Details

Summary
Plan #:187-1184
Starting at:$1450.00
Floors:1
Bedrooms:2
Full Baths:3
Half Baths:0
Garage:
Square Footage
Heated Area:4744 Sq. Ft.
First Floor:3404 Sq. Ft.
Bonus Room:1340 Sq. Ft.
Unheated Area:
Basement:3760 Sq. Ft.
Garage:1695 Sq. Ft.
Porch:460 Sq. Ft.
Dimensions
Width:91' 6''
Depth:64' 5''
Architectural Styles
Exterior Wall Material
StuccoRock/StoneBoard and Batten
Roofing Type
GableHip
Roofing Material
Asphalt Shingles
Roof Pitch
7/129/12
Ceiling Height
10 Foot Ceiling
Special Feature
FireplaceDining RoomGuest RoomHome OfficeMud RoomBonus RoomFamily RoomMain Level LaundryStorageElevatorExercise RoomOpen Floor Plan
Garage Type
Attached GarageFront Entry
Fireplaces
One Fireplace
Exterior Wall Framing
2x6
Building Lot Type
Down Site
Kitchen Features
Walk-in PantryPeninsula/Eating Bar
Porches and Exterior Features
Covered Front PorchCovered Rear Porch
Master Suite Features
Main Floor MasterTwo or More Master SuitesMaster BathroomWalk In Closet

What’s Included

Most plan sets include the following:

icon text-secondary-400 includedFloor plans

icon text-secondary-400 includedFloor framing plans

icon text-secondary-400 includedRoof framing plan

icon text-secondary-400 includedAll 4 elevations

icon text-secondary-400 includedCross-sections

icon text-secondary-400 includedElectrical layout

icon text-secondary-400 included3-4 sheets of details

What’s Not Included

These items are  NOT included:

icon text-secondary-400 includedMechanical Drawings (location of heating and air equipment and ductwork) - your subcontractors handle this.

icon text-secondary-400 includedSite Plan - handled locally when required. Architectural or Engineering Stamp - handled locally if required.

icon text-secondary-400 includedPlumbing Drawings (drawings showing the actual plumbing pipe sizes and locations) - your subcontractors handle this.

icon text-secondary-400 includedEnergy calculations - handled locally when required.

Related House Plans

Plan Collection
Plan Collection
Plan Collection
Plan#161-1082
Starting at$3400
4774
Sq Ft
1
Story
2
Bed
3.5
Bath
6
Car
Plan Collection
Plan Collection
Plan Collection
Plan#156-1701
Starting at$1150
4328
Sq Ft
1
Story
2
Bed
3.5
Bath
2
Car
View All

Other Plans By This Designer

Plan Collection
Plan Collection
Plan Collection
Plan#187-1210
Starting at$650
900
Sq Ft
1
Story
2
Bed
1.5
Bath
2
Car
Plan Collection
Plan Collection
Plan Collection
Plan#187-1206
Starting at$1150
1096
Sq Ft
2
Story
2
Bed
2
Bath
6
Car
Plan Collection
Plan Collection
Plan Collection
Plan#187-1069
Starting at$1050
1595
Sq Ft
1
Story
3
Bed
2
Bath
4
Car