3-5 Bedroom, 2734-5710 Sq Ft Contemporary Plan with Vaulted Ceilings

Front elevation of Contemporary home (ThePlanCollection: House Plan #187-1203)

Images/Plans copyrighted by designer. Photos may reflect homeowner modifications.

About House Plan #187-1203

Sq Ft
2734
Sq Ft
Bedrooms
3
Bedrooms
Bathroom
2
Baths
Half Baths
1
Half Baths
Bedrooms
3
Cars
Bedrooms
1
Stories
Bedrooms
95' 6'
Width
Bedrooms
63
Depth
Starting at$1350.00What's included
STEP 1Bedrooms
STEP 2Bedrooms
STEP 3Bedrooms

Subtotal:$0
Plan Collection

How much will it cost to build?

Estimate your costs based on your location and materials.

Free Cost Instant Estimator

Floor Plans

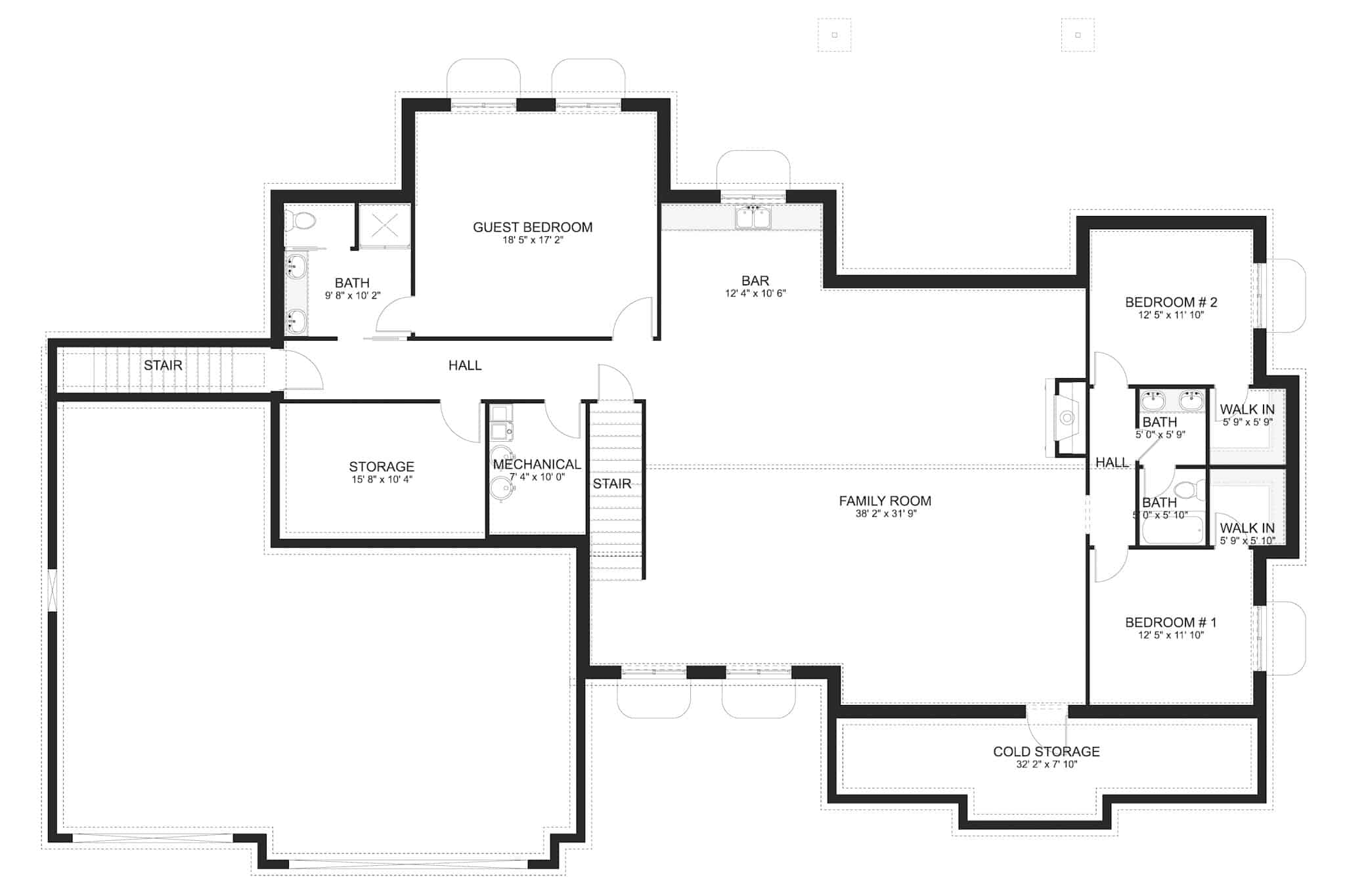
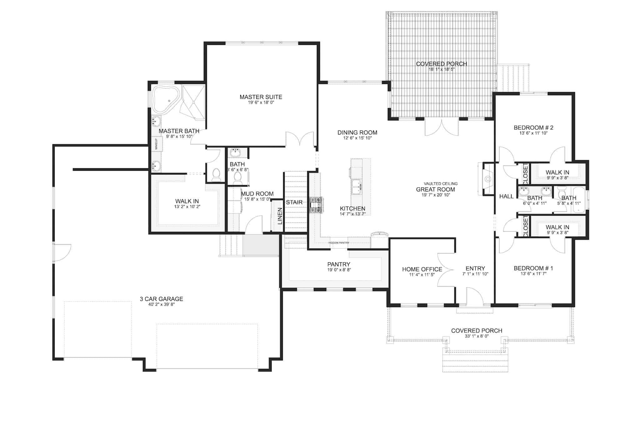
Main Level
Main Level
Basement
Basement
Plan Collection

Can I modify this plan?

Yes! This plan can be customized—contact us for a free quote.

Additional Notes from Designer

PLEASE NOTE! On some plans, alternate foundations could take up to ONE WEEK to produce. NOTE FROM DESIGNER: If you purchase a CAD, you will automatically receive the unlimited build license!

Note: Porch sq ft figures may include any deck sq ft as well.

House Plan Description

This lovely Contemporary Ranch is 2,734 square feet with 3 bedrooms, 2.5 baths, and a 3-car garage. Also included  in this astonishing home are the following amenities:

  • Great Room, Home Office
  • Kitchen with Walk-in Pantry
  • Main Floor Master Suite with Walk-in Closet, Master Bedroom

The optional finished basement includes an additional 2,976 square feet, 2 more bedrooms, 2 more baths, and a guest bedroom.

Home Details

Summary
Plan #:187-1203
Starting at:$1350.00
Floors:1
Bedrooms:3
Full Baths:2
Half Baths:1
Garage:
Square Footage
Heated Area:2734 Sq. Ft.
First Floor:2734 Sq. Ft.
Unheated Area:
Basement:2976 Sq. Ft.
Garage:1238 Sq. Ft.
Porch:553 Sq. Ft.
Dimensions
Width:95' 6''
Depth:63' 10''
Architectural Styles
Exterior Wall Material
Vinyl SidingBrickWood Siding
Roofing Type
Gable
Roofing Material
Asphalt ShinglesMetal
Roof Pitch
6/12
Special Feature
Dining RoomGuest RoomHome OfficeMud RoomFamily RoomMain Level LaundryStorageVaulted CeilingsOpen Floor PlanInterior Photos
Garage Type
Attached GarageFront Entry
Fireplaces
One Fireplace
Exterior Wall Framing
2x6
Building Lot Type
Down Site
Kitchen Features
Kitchen IslandWalk-in PantryEat-In Kitchen
Porches and Exterior Features
Covered Front PorchCovered Rear Porch
Master Suite Features
Main Floor MasterMaster BathroomWalk In ClosetSplit Master Bedroom

What’s Included

Most plan sets include the following:

icon text-secondary-400 includedFloor plans

icon text-secondary-400 includedFloor framing plans

icon text-secondary-400 includedRoof framing plan

icon text-secondary-400 includedAll 4 elevations

icon text-secondary-400 includedCross-sections

icon text-secondary-400 includedElectrical layout

icon text-secondary-400 included3-4 sheets of details

What’s Not Included

These items are  NOT included:

icon text-secondary-400 includedMechanical Drawings (location of heating and air equipment and ductwork) - your subcontractors handle this.

icon text-secondary-400 includedSite Plan - handled locally when required. Architectural or Engineering Stamp - handled locally if required.

icon text-secondary-400 includedPlumbing Drawings (drawings showing the actual plumbing pipe sizes and locations) - your subcontractors handle this.

icon text-secondary-400 includedEnergy calculations - handled locally when required.

Related House Plans

Plan Collection
Plan Collection
Plan Collection
Plan#142-1168
Starting at$1395
2597
Sq Ft
1
Story
3
Bed
2.5
Bath
2
Car
Plan Collection
Plan Collection
Plan Collection
Plan#117-1092
Starting at$1095
2091
Sq Ft
1
Story
3
Bed
2.5
Bath
2
Car
Plan Collection
Plan Collection
Plan Collection
Plan#106-1276
Starting at$1295
2344
Sq Ft
1
Story
3
Bed
2.5
Bath
2
Car
View All

Other Plans By This Designer

Plan Collection
Plan Collection
Plan Collection
Plan#187-1210
Starting at$650
900
Sq Ft
1
Story
2
Bed
1.5
Bath
2
Car
Plan Collection
Plan Collection
Plan Collection
Plan#187-1206
Starting at$1150
1096
Sq Ft
2
Story
2
Bed
2
Bath
6
Car
Plan Collection
Plan Collection
Plan Collection
Plan#187-1069
Starting at$1050
1595
Sq Ft
1
Story
3
Bed
2
Bath
4
Car