6-Car Contemporary Garage with Apartment Plan, 1096 Sq Ft with Great Room

Front elevation of Garage with an Apartment home (ThePlanCollection: House Plan #187-1206)

Images/Plans copyrighted by designer. Photos may reflect homeowner modifications.

About House Plan #187-1206

Sq Ft
1096
Sq Ft
Bedrooms
2
Bedrooms
Bathroom
2
Baths
Half Baths
0
Half Baths
Bedrooms
6
Cars
Bedrooms
2
Stories
Bedrooms
30' 4'
Width
Bedrooms
60
Depth
Starting at$1150.00What's included
STEP 1Bedrooms
STEP 2Bedrooms
STEP 3Bedrooms

Subtotal:$0
Plan Collection

How much will it cost to build?

Estimate your costs based on your location and materials.

Free Cost Instant Estimator

Floor Plans

Main Level
Main Level
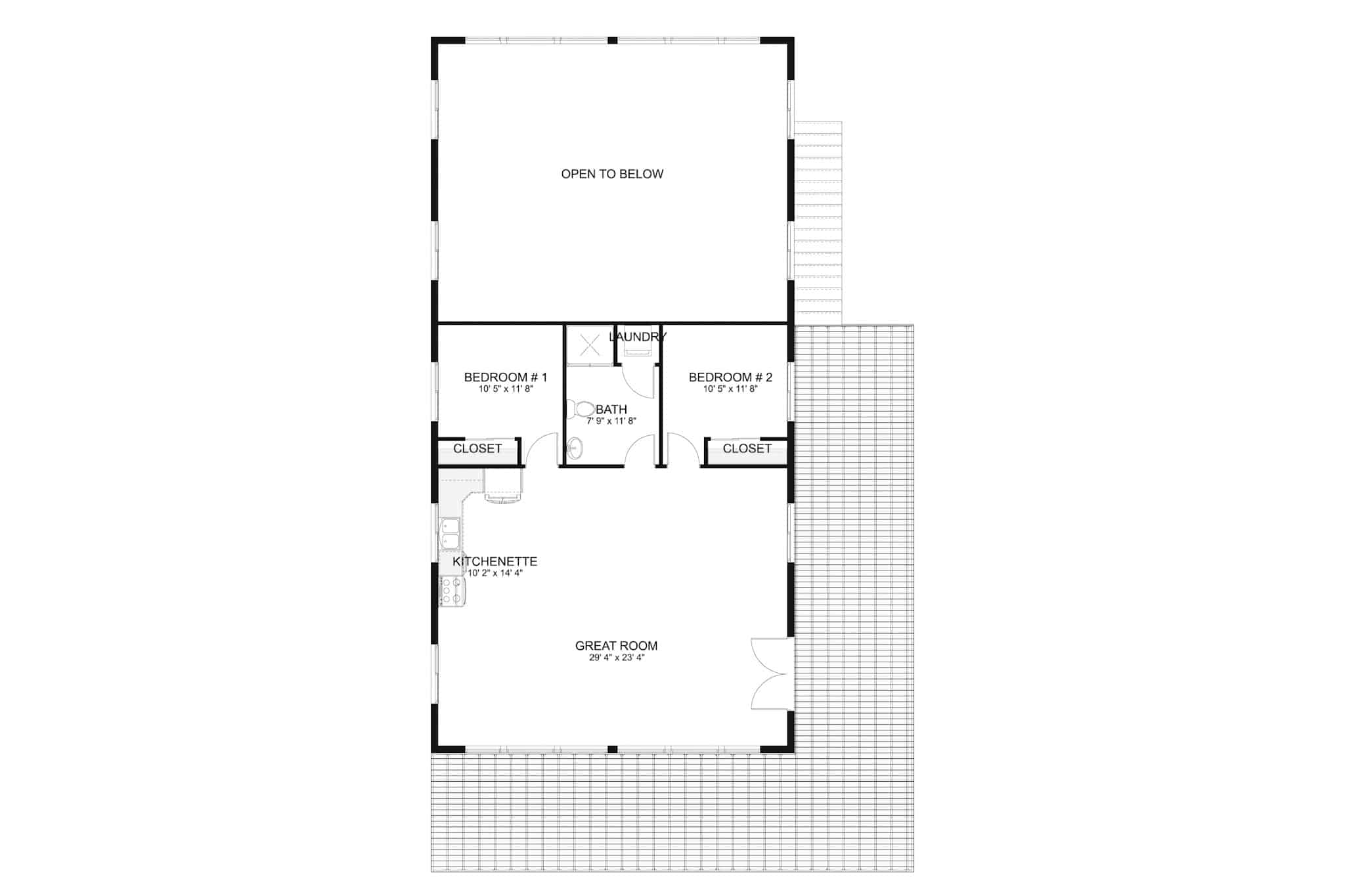
Upper Level
Upper Level
Plan Collection

Can I modify this plan?

Yes! This plan can be customized—contact us for a free quote.

Additional Notes from Designer

PLEASE NOTE! On some plans, alternate foundations could take up to ONE WEEK to produce. NOTE FROM DESIGNER: If you purchase a CAD, you will automatically receive the unlimited build license!

House Plan Description

This 1,819 square feet 6-car garage with Contemporary attributes is so simple but accommodates your needs in a smart way with enough extra space to walk around and store a few additional things. The garage has 1.096 living square feet with 2 bedrooms, full bath, great room, and a kitchenette.

Home Details

Summary
Plan #:187-1206
Starting at:$1150.00
Floors:2
Bedrooms:2
Full Baths:2
Half Baths:0
Garage:
Square Footage
Heated Area:1096 Sq. Ft.
Second Floor:1096 Sq. Ft.
Unheated Area:
Garage:1819 Sq. Ft.
Dimensions
Width:30' 4''
Architectural Styles
Exterior Wall Material
Vinyl SidingBrickWood SidingBoard and Batten
Roofing Type
Gable
Roofing Material
Metal
Roof Pitch
4/12
Ceiling Height
8 Foot Ceiling
Special Feature
Family RoomColor PhotosSecond Level LaundryInterior Photos
Exterior Wall Framing
2x6
Building Lot Type
Flat SiteNarrow Lot Design
Porches and Exterior Features
Sundeck

What’s Included

Most plan sets include the following:

icon text-secondary-400 includedFloor plans

icon text-secondary-400 includedFloor framing plans

icon text-secondary-400 includedRoof framing plan

icon text-secondary-400 includedAll 4 elevations

icon text-secondary-400 includedCross-sections

icon text-secondary-400 includedElectrical layout

icon text-secondary-400 included3-4 sheets of details

What’s Not Included

These items are  NOT included:

icon text-secondary-400 includedMechanical Drawings (location of heating and air equipment and ductwork) - your subcontractors handle this.

icon text-secondary-400 includedSite Plan - handled locally when required. Architectural or Engineering Stamp - handled locally if required.

icon text-secondary-400 includedPlumbing Drawings (drawings showing the actual plumbing pipe sizes and locations) - your subcontractors handle this.

icon text-secondary-400 includedEnergy calculations - handled locally when required.

Related House Plans

Plan Collection
Plan Collection
Plan Collection
Plan#211-1091
Starting at$1065
899
Sq Ft
2
Story
2
Bed
2
Bath
3
Car
Plan Collection
Plan Collection
Plan Collection
Plan#211-1090
Starting at$1065
968
Sq Ft
2
Story
2
Bed
2
Bath
4
Car
View All

Other Plans By This Designer

Plan Collection
Plan Collection
Plan Collection
Plan#187-1210
Starting at$650
900
Sq Ft
1
Story
2
Bed
1.5
Bath
2
Car
Plan Collection
Plan Collection
Plan Collection
Plan#187-1069
Starting at$1050
1595
Sq Ft
1
Story
3
Bed
2
Bath
4
Car
Plan Collection
Plan Collection
Plan Collection
Plan#187-1164
Starting at$950
1069
Sq Ft
1
Story
2
Bed
2
Bath
2
Car