2–5-Bedroom, 4774 Sq Ft Tudor Plan with Butler's Pantry

Tudor home (ThePlanCollection: Plan #161-1082)

Images/Plans copyrighted by designer. Photos may reflect homeowner modifications.

About House Plan #161-1082

Sq Ft
4774
Sq Ft
Bedrooms
2
Bedrooms
Bathroom
3
Baths
Half Baths
1
Half Baths
Bedrooms
6
Cars
Bedrooms
1
Stories
Bedrooms
129' 6'
Width
Bedrooms
109
Depth
Starting at$3400.00What's included
STEP 1Bedrooms
STEP 2Bedrooms
STEP 3Bedrooms

Subtotal:$0
Plan Collection

How much will it cost to build?

Estimate your costs based on your location and materials.

Free Cost Instant Estimator

Floor Plans

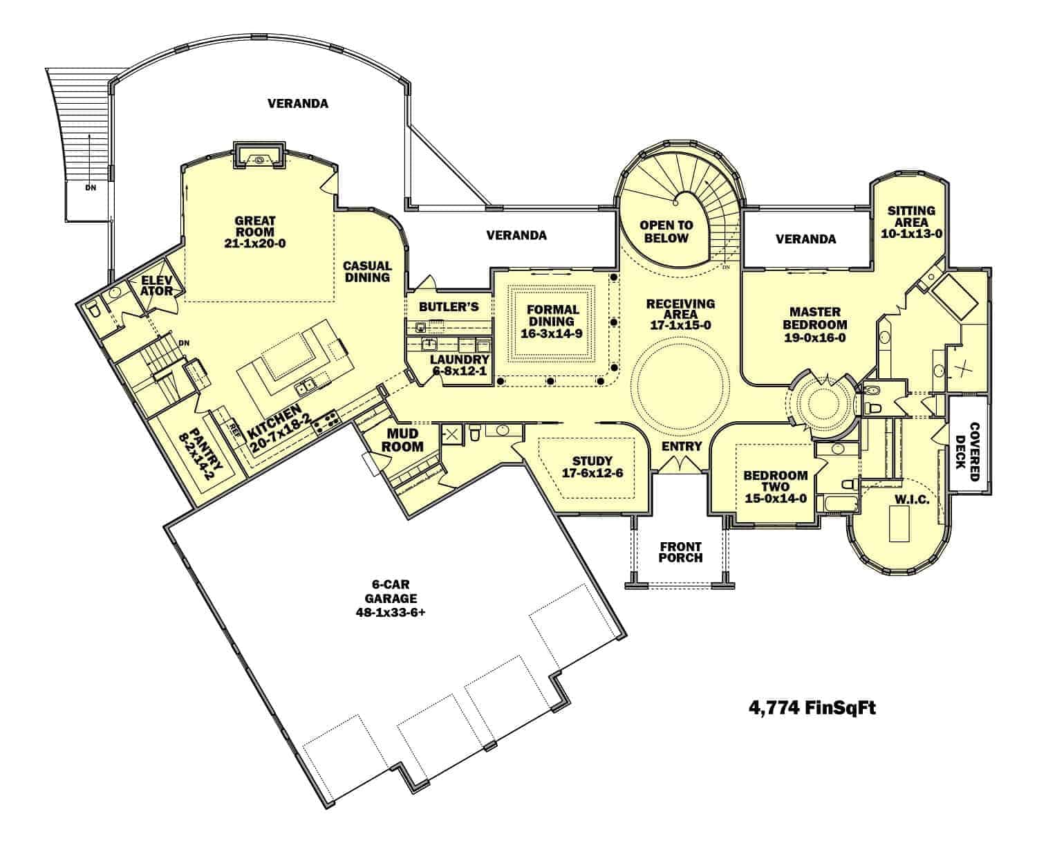
Main Level
Main Level
Lower Level
Lower Level
Plan Collection

Can I modify this plan?

Yes! This plan can be customized—contact us for a free quote.

Additional Notes from Designer

PLEASE NOTE! This designer's plans do NOT come with framing!

House Plan Description

This inviting Tudor style home with European characteristics (Plan #161-1082) has 4774 square feet of heated and cooled living space. The 1 story floor plan includes 2 to 5 bedrooms. The basement, which can be finished at your option, nearly doubles the square footage and adds 3 bedrooms with ensuite bathrooms – plus other amenities – if completed according to the suggested floor plan.

Home Details

Summary
Plan #:161-1082
Starting at:$3400.00
Floors:1
Bedrooms:2
Full Baths:3
Half Baths:1
Garage:
Square Footage
Heated Area:4774 Sq. Ft.
Basement:4137 Sq. Ft.
First Floor:4774 Sq. Ft.
Unheated Area:
Basement:1270 Sq. Ft.
Garage:2030 Sq. Ft.
Porch:1625 Sq. Ft.
Dimensions
Width:129' 6''
Depth:109' 4''
Architectural Styles
Exterior Wall Material
StuccoRock/Stone
Roofing Type
GableHip
Roofing Material
Tiles
Roof Pitch
12/1214/12
Ceiling Height
10 Foot Ceiling
Special Feature
FireplaceDining RoomMud RoomFamily RoomGame RoomMain Level LaundryLibraryHome TheaterMedia RoomStorageWine CellarElevatorOpen Floor Plan
Garage Type
Attached GarageCourtyard Entry
Fireplaces
Two Fireplaces
Exterior Wall Framing
2x6
Kitchen Features
Kitchen IslandButler's PantryWalk-in PantryPeninsula/Eating BarEat-In Kitchen
Porches and Exterior Features
Covered Front PorchSundeckPatio
Master Suite Features
Main Floor MasterMaster BathroomWalk In ClosetSitting AreaPrivate Deck

What’s Included

Most plan sets include the following:

icon text-secondary-400 includedExterior elevations

icon text-secondary-400 includedMain Floor plan

icon text-secondary-400 includedArchitectural’ Foundation Plan

icon text-secondary-400 includedArchitectural’ Roof Plan

icon text-secondary-400 includedSections

icon text-secondary-400 includedMain Floor Electrical Plan

icon text-secondary-400 includedNo Framing

What’s Not Included

These items are  NOT included:

icon text-secondary-400 includedArchitectural or Engineering Stamp - handled locally if required.

icon text-secondary-400 includedSite Plan - handled locally when required.

icon text-secondary-400 includedPlumbing Drawings (drawings showing the actual plumbing pipe sizes and locations) - your subcontractors handle this.

icon text-secondary-400 includedEnergy calculations - handled locally when required.

Related House Plans

Plan Collection
Plan Collection
Plan Collection
Plan#187-1184
Starting at$1450
4744
Sq Ft
1
Story
2
Bed
3
Bath
3
Car
View All

Other Plans By This Designer

Plan Collection
Plan Collection
Plan Collection
Plan#161-1145
Starting at$2650
3907
Sq Ft
2
Story
4
Bed
3.5
Bath
3
Car
Plan Collection
Plan Collection
Plan Collection
Plan#161-1077
Starting at$4500
6563
Sq Ft
2
Story
5
Bed
5.5
Bath
5
Car
Plan Collection
Plan Collection
Plan Collection
Plan#161-1084
Starting at$4200
5170
Sq Ft
2
Story
5
Bed
5.5
Bath
3
Car