2-5 Bedroom, 3557-6047 Sq Ft Luxury Contemporary Rustic Plan with a Study

Front elevation of Luxury home (ThePlanCollection: House Plan #161-1180)

Images/Plans copyrighted by designer. Photos may reflect homeowner modifications.

About House Plan #161-1180

Sq Ft
3557
Sq Ft
Bedrooms
2
Bedrooms
Bathroom
2
Baths
Half Baths
1
Half Baths
Bedrooms
3
Cars
Bedrooms
2
Stories
Bedrooms
120' 0'
Width
Bedrooms
69
Depth
Starting at$2200.00What's included
STEP 1Bedrooms
STEP 2Bedrooms
STEP 3Bedrooms

Subtotal:$0
Plan Collection

How much will it cost to build?

Estimate your costs based on your location and materials.

Free Cost Instant Estimator

Floor Plans

Main Level
Main Level
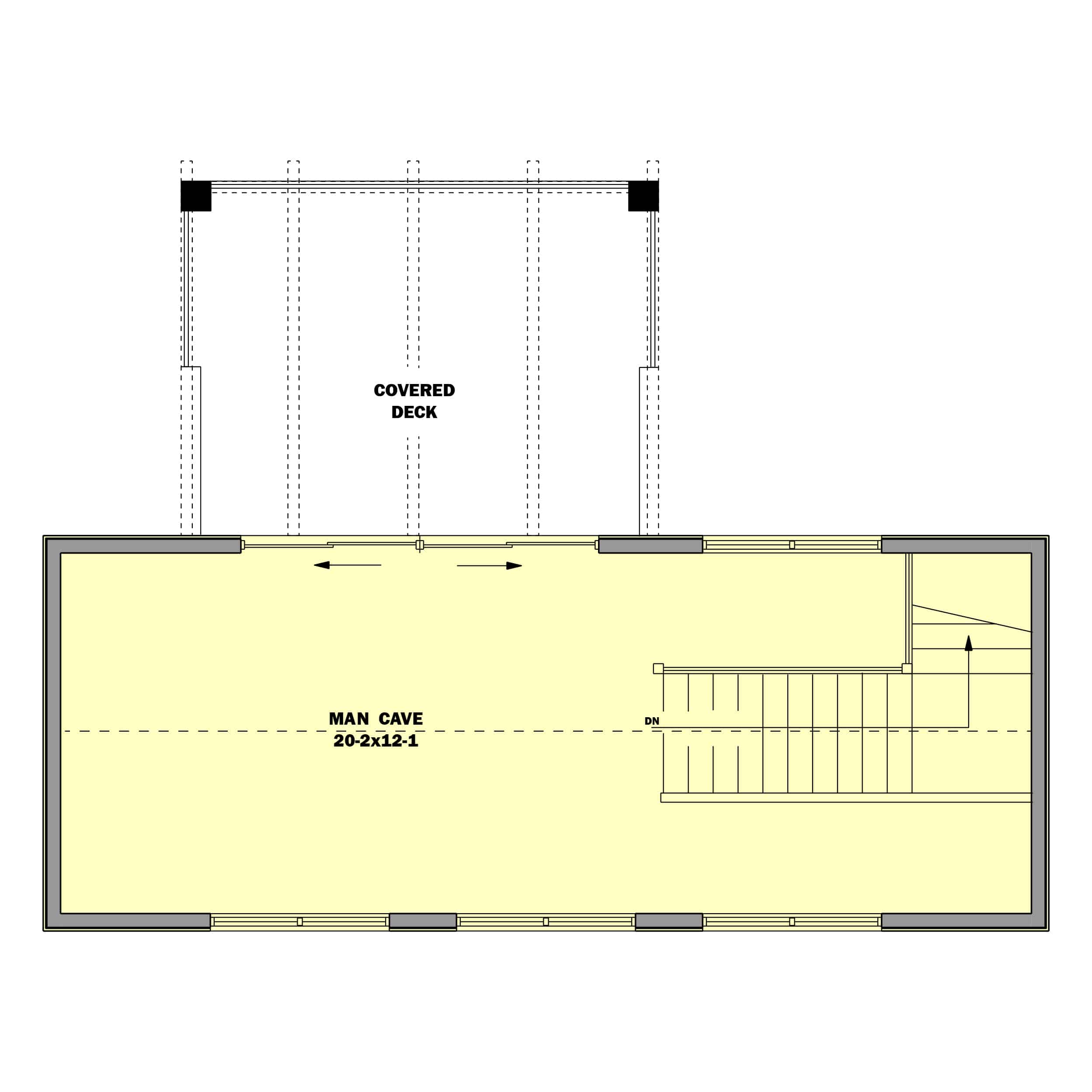
Upper Level
Upper Level
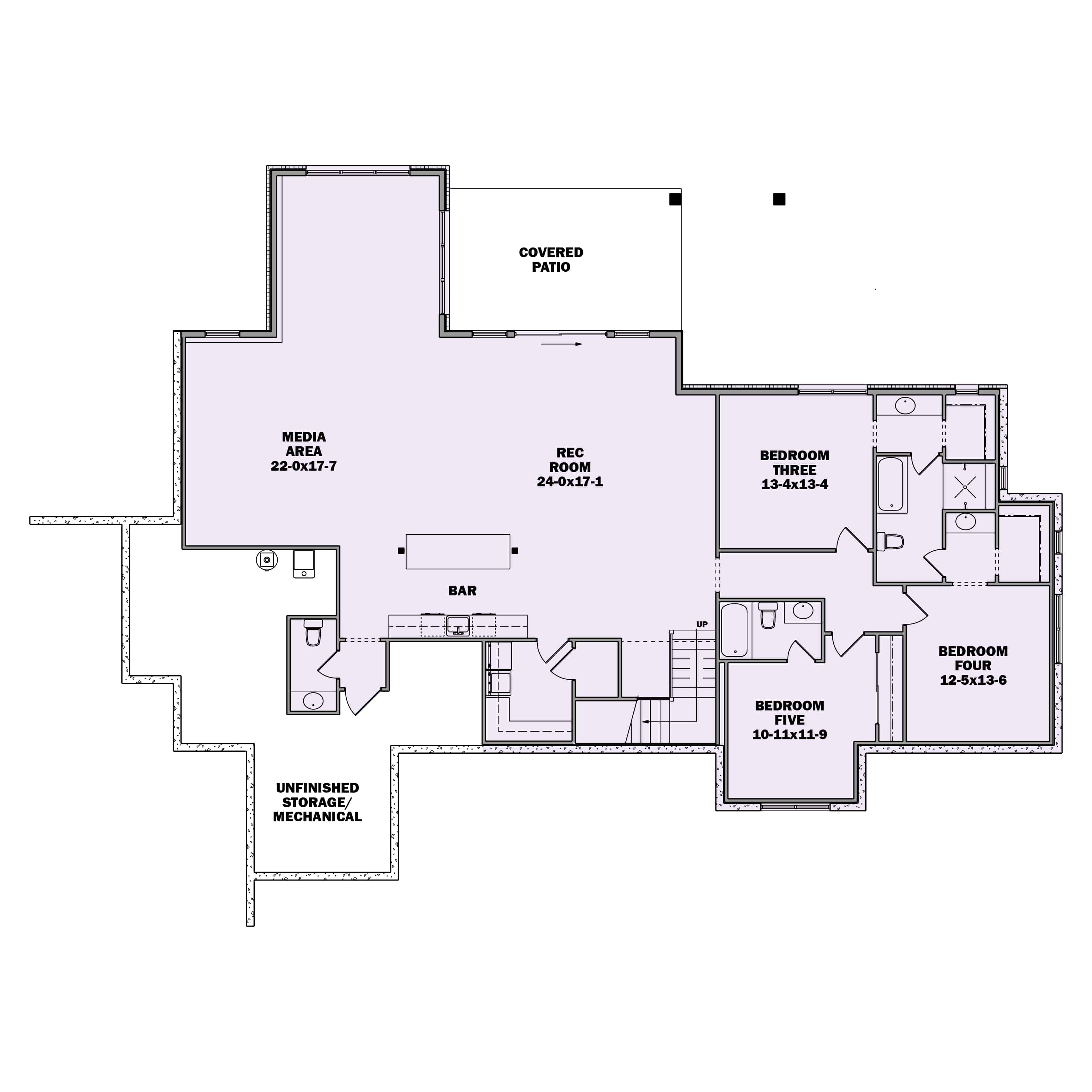
Basement Option Layout
Basement Option Layout
Plan Collection

Can I modify this plan?

Yes! This plan can be customized—contact us for a free quote.

Additional Notes from Designer

PLEASE NOTE! This designer's plans do NOT come with framing!

House Plan Description

This amazing luxury home with a Modern-Contemporary vibe is 3,557 square feet with 2 bedrooms, 2.5 baths, and a 3-car garage. This stunning home also features the following wonderful amenities:

  • Great Room
  • Mudroom
  • Study Room
  • Guest Room
  • Master Bedroom with His and Her Walk-in Closet
  • Walk-in Pantry

The optional finished basement includes an additional 2,490 square feet, 3 more bedrooms, 2 more baths, and a rec room.

Home Details

Summary
Plan #:161-1180
Starting at:$2200.00
Floors:2
Bedrooms:2
Full Baths:2
Half Baths:1
Garage:
Square Footage
Heated Area:3557 Sq. Ft.
Basement:2490 Sq. Ft.
First Floor:3041 Sq. Ft.
Second Floor:516 Sq. Ft.
Unheated Area:
Basement:551 Sq. Ft.
Garage:1297 Sq. Ft.
Dimensions
Architectural Styles
Exterior Wall Material
Vinyl SidingRock/StoneWood Siding
Roofing Type
GableGable/Shed Dormer
Roofing Material
Asphalt ShinglesMetal
Roof Pitch
9/12
Ceiling Height
10 Foot Ceiling8 Foot Ceiling
Special Feature
FireplaceGuest RoomMud RoomFamily RoomMain Level LaundryLibraryColor PhotosSplit BathroomOpen Floor PlanInterior Photos
Garage Type
Attached GarageSide EntryFront Entry
Fireplaces
One Fireplace
Exterior Wall Framing
2x6
Kitchen Features
Kitchen IslandWalk-in Pantry
Porches and Exterior Features
Covered Front PorchSundeck
Master Suite Features
Main Floor MasterMaster BathroomWalk In ClosetSplit Master Bedroom

What’s Included

Most plan sets include the following:

icon text-secondary-400 includedExterior elevations

icon text-secondary-400 includedMain Floor plan

icon text-secondary-400 includedArchitectural’ Foundation Plan

icon text-secondary-400 includedArchitectural’ Roof Plan

icon text-secondary-400 includedSections

icon text-secondary-400 includedMain Floor Electrical Plan

icon text-secondary-400 includedNo Framing

What’s Not Included

These items are  NOT included:

icon text-secondary-400 includedArchitectural or Engineering Stamp - handled locally if required.

icon text-secondary-400 includedSite Plan - handled locally when required.

icon text-secondary-400 includedPlumbing Drawings (drawings showing the actual plumbing pipe sizes and locations) - your subcontractors handle this.

icon text-secondary-400 includedEnergy calculations - handled locally when required.

Related House Plans

Plan Collection
Plan Collection
Plan Collection
Plan#115-1156
Starting at$2400
4000
Sq Ft
2
Story
2
Bed
2
Bath
4
Car
Plan Collection
Plan Collection
Plan Collection
Plan#108-1972
Starting at$1200
3120
Sq Ft
2
Story
2
Bed
2
Bath
3
Car
Plan Collection
Plan Collection
Plan Collection
Plan#135-1095
Starting at$1840
3309
Sq Ft
2
Story
2
Bed
2.5
Bath
4
Car
View All

Other Plans By This Designer

Plan Collection
Plan Collection
Plan Collection
Plan#161-1145
Starting at$2650
3907
Sq Ft
2
Story
4
Bed
3.5
Bath
3
Car
Plan Collection
Plan Collection
Plan Collection
Plan#161-1077
Starting at$4500
6563
Sq Ft
2
Story
5
Bed
5.5
Bath
5
Car
Plan Collection
Plan Collection
Plan Collection
Plan#161-1084
Starting at$4200
5170
Sq Ft
2
Story
5
Bed
5.5
Bath
3
Car