5-Bedroom, 5170 Sq Ft Rustic Contemporary Plan with Oversized Kitchen Island

Front elevation of contemporary luxury home (ThePlanCollection: House Plan #161-1084)

Images/Plans copyrighted by designer. Photos may reflect homeowner modifications.

About House Plan #161-1084

Sq Ft
5170
Sq Ft
Bedrooms
5
Bedrooms
Bathroom
5
Baths
Half Baths
1
Half Baths
Bedrooms
3
Cars
Bedrooms
2
Stories
Bedrooms
104' 3'
Width
Bedrooms
93
Depth
Starting at$4200.00What's included
STEP 1Bedrooms
STEP 2Bedrooms
STEP 3Bedrooms

Subtotal:$0
Plan Collection

How much will it cost to build?

Estimate your costs based on your location and materials.

Free Cost Instant Estimator

Floor Plans

Floor Plan Main Level
Floor Plan Main Level
Floor Plan Upper Level
Floor Plan Upper Level
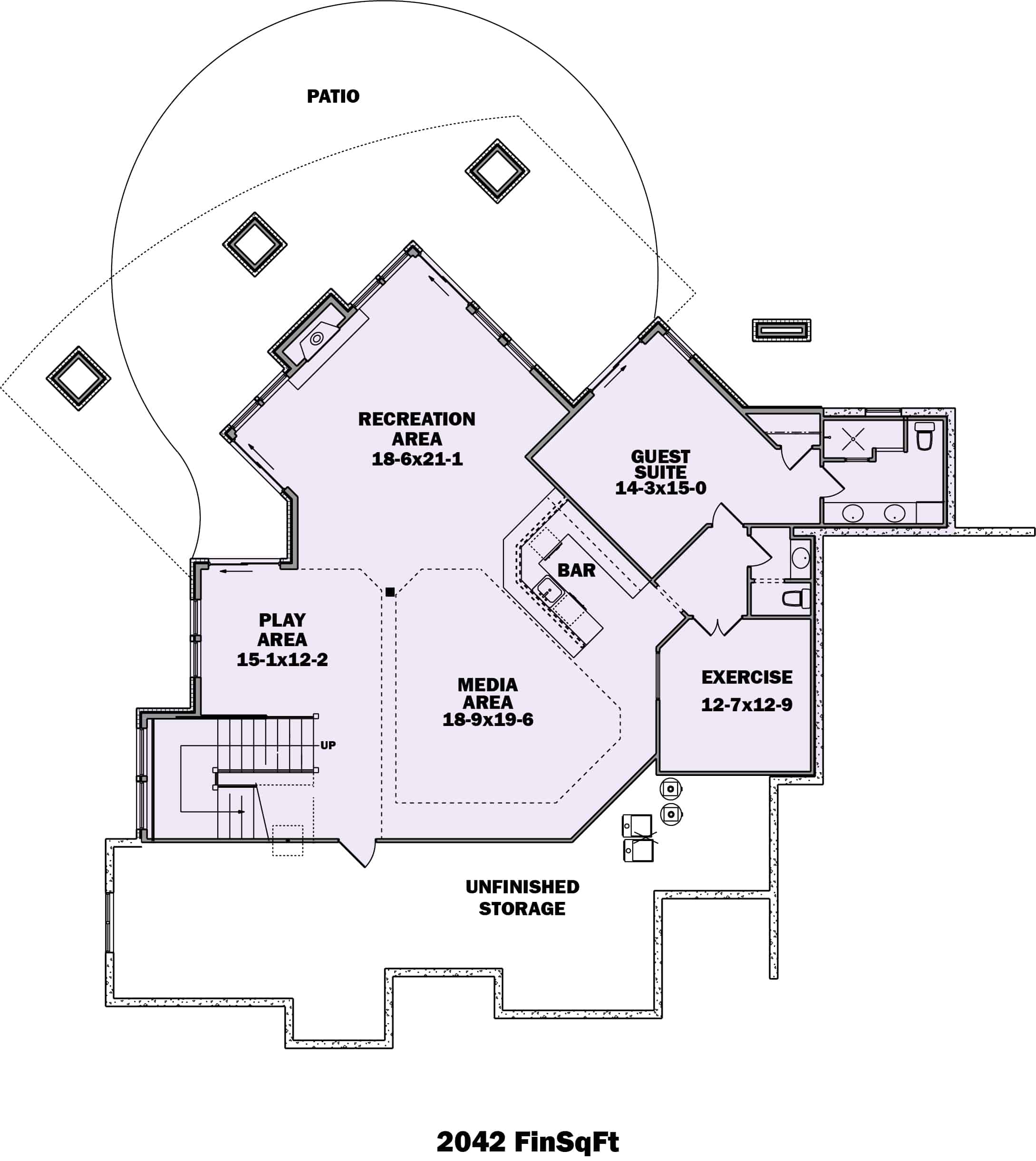
Lower Level
Lower Level
Plan Collection

Can I modify this plan?

Yes! This plan can be customized—contact us for a free quote.

Additional Notes from Designer

PLEASE NOTE! This designer's plans do NOT come with framing!

House Plan Description

With a rustic contemporary vibe, this impressive home stands out from the crowd. Pass under the curved-roof porch and into the foyer, which is flanked by the music room or study. Beyond the main staircase are the dining area, vaulted Great Room, and open-concept kitchen. The hearth room completes the space. Tucked away is a home office. Special features of note on the main level are the oversized kitchen island, a huge walk-in pantry, mudroom with its walk-in closet, and a guest bedroom with a bath.

Head to the upper level to find the master bedroom suite with its vaulted...

Home Details

Summary
Plan #:161-1084
Starting at:$4200.00
Floors:2
Bedrooms:5
Full Baths:5
Half Baths:1
Garage:
Square Footage
Heated Area:5170 Sq. Ft.
Basement:2039 Sq. Ft.
First Floor:2946 Sq. Ft.
Second Floor:2224 Sq. Ft.
Unheated Area:
Basement:907 Sq. Ft.
Garage:1637 Sq. Ft.
Dimensions
Width:104' 3''
Architectural Styles
Exterior Wall Material
Vinyl SidingRock/StoneWood Siding
Roofing Type
Hip
Roofing Material
MetalTiles
Roof Pitch
5/12
Ceiling Height
10 Foot Ceiling9 Foot Ceiling
Special Feature
FireplaceGuest RoomHome OfficeMud RoomFamily RoomGame RoomMedia RoomColor PhotosLoftStorageVaulted CeilingsSecond Level LaundryExercise RoomOpen Floor PlanInterior Photos
Garage Type
Attached GarageSide EntryFront Entry
Fireplaces
Four Fireplaces
Exterior Wall Framing
2x6
Building Lot Type
Down SiteView Lot
Kitchen Features
Kitchen IslandButler's PantryWalk-in PantryPeninsula/Eating Bar
Porches and Exterior Features
Covered Front PorchSundeckPatio
Master Suite Features
Fireplace in MasterMaster BathroomWalk In ClosetPrivate DeckSecond Floor Master

What’s Included

Most plan sets include the following:

icon text-secondary-400 includedExterior elevations

icon text-secondary-400 includedMain Floor plan

icon text-secondary-400 includedArchitectural’ Foundation Plan

icon text-secondary-400 includedArchitectural’ Roof Plan

icon text-secondary-400 includedSections

icon text-secondary-400 includedMain Floor Electrical Plan

icon text-secondary-400 includedNo Framing

What’s Not Included

These items are  NOT included:

icon text-secondary-400 includedArchitectural or Engineering Stamp - handled locally if required.

icon text-secondary-400 includedSite Plan - handled locally when required.

icon text-secondary-400 includedPlumbing Drawings (drawings showing the actual plumbing pipe sizes and locations) - your subcontractors handle this.

icon text-secondary-400 includedEnergy calculations - handled locally when required.

Related House Plans

Plan Collection
Plan Collection
Plan Collection
Plan#116-1106
Starting at$0
5165
Sq Ft
2
Story
5
Bed
5.5
Bath
3
Car
Plan Collection
Plan Collection
Plan Collection
Plan#190-1014
Starting at$3150
6462
Sq Ft
2
Story
5
Bed
5.5
Bath
4
Car
Plan Collection
Plan Collection
Plan Collection
Plan#175-1243
Starting at$4100
5653
Sq Ft
2
Story
5
Bed
5.5
Bath
3
Car
View All

Other Plans By This Designer

Plan Collection
Plan Collection
Plan Collection
Plan#161-1145
Starting at$2650
3907
Sq Ft
2
Story
4
Bed
3.5
Bath
3
Car
Plan Collection
Plan Collection
Plan Collection
Plan#161-1077
Starting at$4500
6563
Sq Ft
2
Story
5
Bed
5.5
Bath
5
Car
Plan Collection
Plan Collection
Plan Collection
Plan#161-1151
Starting at$1950
3149
Sq Ft
2
Story
4
Bed
3.5
Bath
3
Car