Estimate your costs based on your location and materials.
Yes! This plan can be customized—contact us for a free quote.
Yes! This plan can be customized—contact us for a free quote.
PLEASE NOTE! This designer's plans do NOT come with framing!
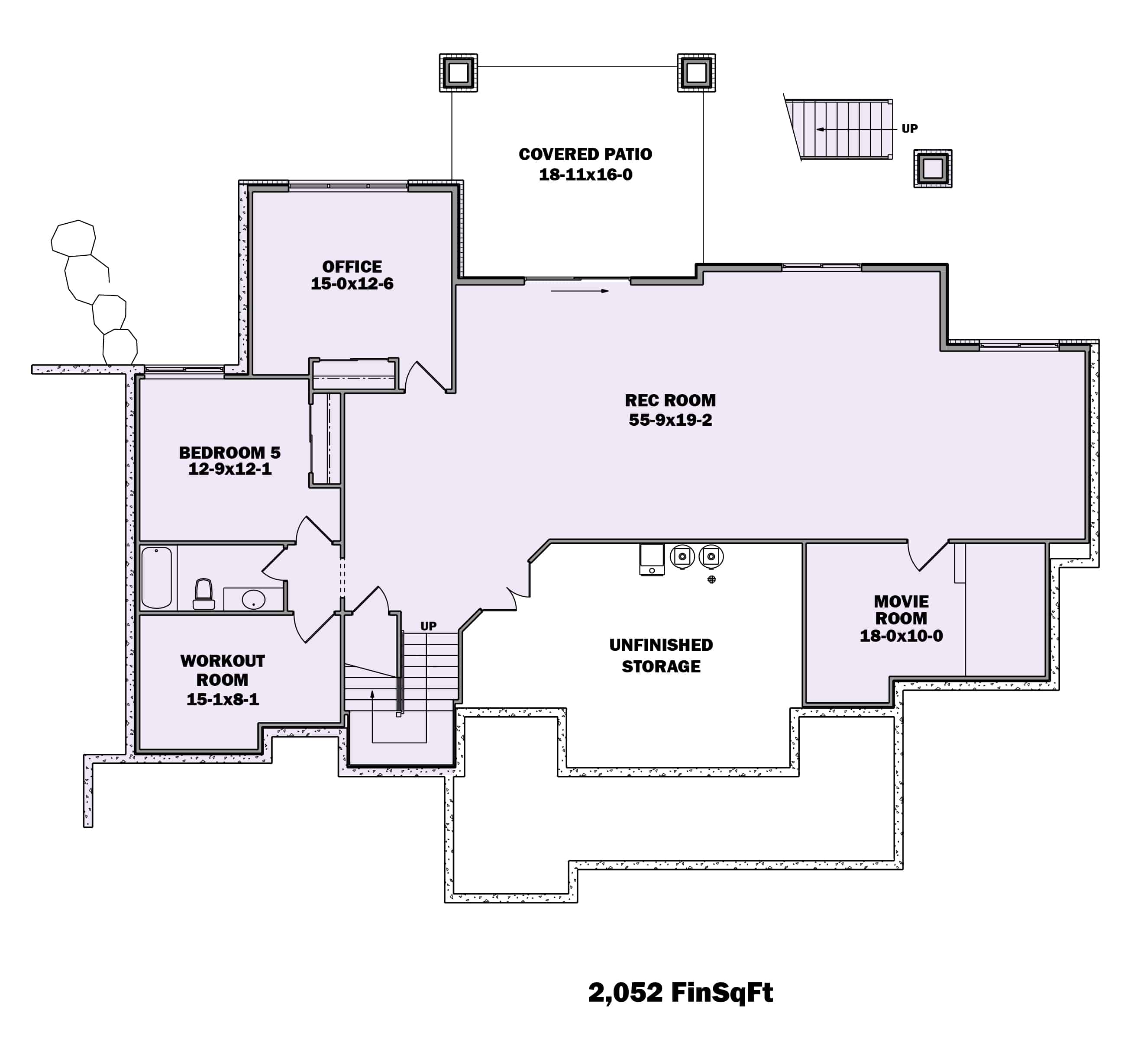
This Texas Style country home has a great idea of luxury and convenience in its design and is sure to be among the "most-liked" on your dream-home checklist. The house has a comfortable floor plan of 3907 square feet of heated and cooled living space with a 2552-square-foot unfinished walkout basement that you may finish at your option according to the suggested floor plan. The finished basement would add 2 bedrooms (or a bedroom and an office), a bathroom, a rec room, and a home theater in 2052 square feet, plus 500 square feet of unfinished storage space.
The...
Estimate your costs based on your location and materials.
All sales of house plans, modifications, and other products found on this site are final. No refunds or exchanges can be given once your order has begun the fulfillment process. Please see our Policies for additional information.
All plans offered on ThePlanCollection.com are designed to conform to the local building codes when and where the original plan was drawn.
The homes as shown in photographs and renderings may differ from the actual blueprints. For more detailed information, please review the floor plan images herein carefully.
Estimate your costs based on your location and materials.