2-4 Bedroom, 3240-5351 Sq Ft Contemporary Plan with Vaulted Ceilings

Front elevation of Contemporary home (ThePlanCollection: House Plan #161-1202)

Images/Plans copyrighted by designer. Photos may reflect homeowner modifications.

About House Plan #161-1202

Sq Ft
3240
Sq Ft
Bedrooms
2
Bedrooms
Bathroom
2
Baths
Half Baths
1
Half Baths
Bedrooms
4
Cars
Bedrooms
2
Stories
Bedrooms
142' 6'
Width
Bedrooms
71
Depth
Starting at$2200.00What's included
STEP 1Bedrooms
STEP 2Bedrooms
STEP 3Bedrooms

Subtotal:$0
Plan Collection

How much will it cost to build?

Estimate your costs based on your location and materials.

Free Cost Instant Estimator

Floor Plans

Main Level
Main Level
Upper Level
Upper Level
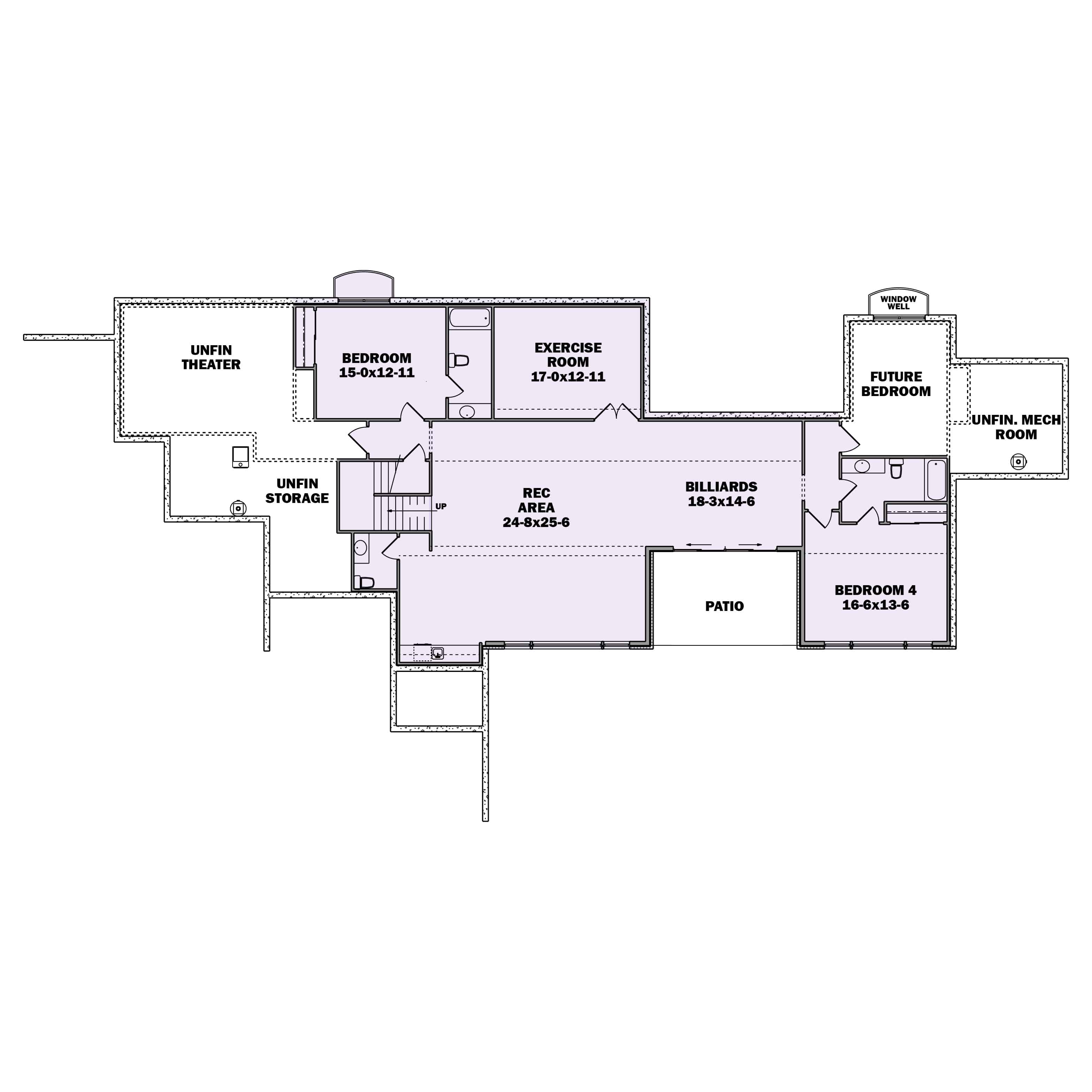
Basement Option Layout
Basement Option Layout
Plan Collection

Can I modify this plan?

Yes! This plan can be customized—contact us for a free quote.

Additional Notes from Designer

PLEASE NOTE! This designer's plans do NOT come with framing!

The optional finished basement includes an additional 2,111 square feet, 2 more bedrooms, 2.5 more baths, and a rec area.

Note: Porch sq ft figures may include any deck sq ft as well.

House Plan Description

This beautiful Contemporary home with Craftsman influences is 3,240 square feet with 2 bedrooms, 2.5 baths, and a 4-car garage. Among the other features of this stunning home are:

  • Mudroom
  • Living Room
  • Office
  • Walk-in Pantry
  • Master Bedroom with Walk-in Closet
  • Bonus Room

The optional finished basement includes an additional 2,111 square feet, 2 more bedrooms, 2.5 more baths, and a rec area.

Home Details

Summary
Plan #:161-1202
Starting at:$2200.00
Floors:2
Bedrooms:2
Full Baths:2
Half Baths:1
Garage:
Square Footage
Heated Area:3240 Sq. Ft.
Basement:2111 Sq. Ft.
First Floor:3240 Sq. Ft.
Unheated Area:
Basement:1129 Sq. Ft.
Garage:1607 Sq. Ft.
Dimensions
Width:142' 6''
Depth:71' 3''
Architectural Styles
Exterior Wall Material
Vinyl SidingBrickWood Siding
Roofing Type
Gable
Roofing Material
Asphalt Shingles
Roof Pitch
12/129/12
Ceiling Height
10 Foot Ceiling
Special Feature
FireplaceHome OfficeMud RoomBonus RoomFamily RoomMain Level LaundryColor PhotosSplit BathroomVaulted CeilingsOpen Floor Plan
Garage Type
Attached GarageCourtyard EntrySide EntryFront Entry
Fireplaces
One Fireplace
Exterior Wall Framing
2x6
Building Lot Type
Side Slope Site
Kitchen Features
Kitchen Island
Porches and Exterior Features
Covered Front PorchCovered Rear Patio
Master Suite Features
Main Floor MasterMaster BathroomWalk In ClosetSplit Master Bedroom

What’s Included

Most plan sets include the following:

icon text-secondary-400 includedExterior elevations

icon text-secondary-400 includedMain Floor plan

icon text-secondary-400 includedArchitectural’ Foundation Plan

icon text-secondary-400 includedArchitectural’ Roof Plan

icon text-secondary-400 includedSections

icon text-secondary-400 includedMain Floor Electrical Plan

icon text-secondary-400 includedNo Framing

What’s Not Included

These items are  NOT included:

icon text-secondary-400 includedArchitectural or Engineering Stamp - handled locally if required.

icon text-secondary-400 includedSite Plan - handled locally when required.

icon text-secondary-400 includedPlumbing Drawings (drawings showing the actual plumbing pipe sizes and locations) - your subcontractors handle this.

icon text-secondary-400 includedEnergy calculations - handled locally when required.

Related House Plans

Plan Collection
Plan Collection
Plan Collection
Plan#116-1086
Starting at$0
2616
Sq Ft
2
Story
2
Bed
2.5
Bath
0
Car
Plan Collection
Plan Collection
Plan Collection
Plan#108-1972
Starting at$1200
3120
Sq Ft
2
Story
2
Bed
2
Bath
3
Car
Plan Collection
Plan Collection
Plan Collection
Plan#135-1095
Starting at$1840
3309
Sq Ft
2
Story
2
Bed
2.5
Bath
4
Car
View All

Other Plans By This Designer

Plan Collection
Plan Collection
Plan Collection
Plan#161-1145
Starting at$2650
3907
Sq Ft
2
Story
4
Bed
3.5
Bath
3
Car
Plan Collection
Plan Collection
Plan Collection
Plan#161-1077
Starting at$4500
6563
Sq Ft
2
Story
5
Bed
5.5
Bath
5
Car
Plan Collection
Plan Collection
Plan Collection
Plan#161-1084
Starting at$4200
5170
Sq Ft
2
Story
5
Bed
5.5
Bath
3
Car