Estimate your costs based on your location and materials.
Yes! This plan can be customized—contact us for a free quote.
Yes! This plan can be customized—contact us for a free quote.
PLEASE NOTE: Materials Lists are based on the STOCK plan ONLY without modifications! Custom materials lists are available if you modify a plan. Please ask for a quote.
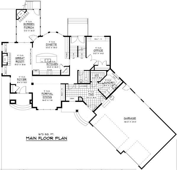
With its carefully designed entrances and smart angles, this home is a great fit for an unconventional lot. Spacious without being overdone, the floor plan provides plenty of practical yet beautiful features. For example, built-in shelves and niches can be found in the living areas, including the Great Room, dining room, office and mudroom, offering attractive and accessible storage. The living space in this home, while open and flowing, is nicely divided to create a cozy, intimate feel. For real privacy, step out to the screen porch, where you can relax before the fire. Two sizable...
Estimate your costs based on your location and materials.
All sales of house plans, modifications, and other products found on this site are final. No refunds or exchanges can be given once your order has begun the fulfillment process. Please see our Policies for additional information.
All plans offered on ThePlanCollection.com are designed to conform to the local building codes when and where the original plan was drawn.
The homes as shown in photographs and renderings may differ from the actual blueprints. For more detailed information, please review the floor plan images herein carefully.
Estimate your costs based on your location and materials.