3-Bedroom, 2442 Sq Ft Ranch Plan with Tray Ceilings

Ranch home (ThePlanCollection: Plan #161-1103)

Images/Plans copyrighted by designer. Photos may reflect homeowner modifications.

About House Plan #161-1103

Sq Ft
2442
Sq Ft
Bedrooms
3
Bedrooms
Bathroom
2
Baths
Half Baths
1
Half Baths
Bedrooms
3
Cars
Bedrooms
1
Stories
Bedrooms
69' 6'
Width
Bedrooms
83
Depth
Starting at$1750.00What's included
STEP 1Bedrooms
STEP 2Bedrooms
STEP 3Bedrooms

Subtotal:$0
Plan Collection

How much will it cost to build?

Estimate your costs based on your location and materials.

Free Cost Instant Estimator

Floor Plans

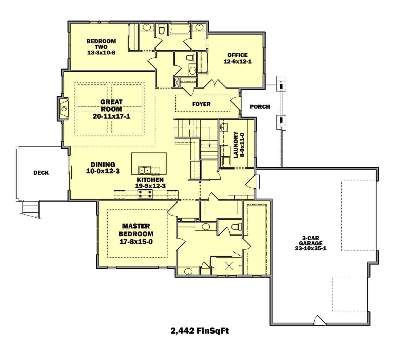
Floor Plan Main Level
Floor Plan Main Level
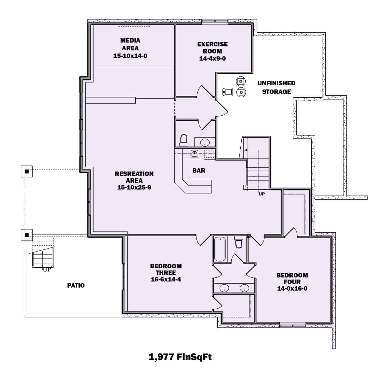
Floor Plan Basement
Floor Plan Basement
Plan Collection

Can I modify this plan?

Yes! This plan can be customized—contact us for a free quote.

Additional Notes from Designer

PLEASE NOTE! This designer's plans do NOT come with framing!

House Plan Description

This Southern-style Ranch home is sure to rate high on your list of dream houses. It has a total heated area of 2,442 square feet with 465-square-foot unfinished basement. The 880-square-foot 3-car garage sits at the front with extra space for perhaps a workshop area.

The covered front porch will welcome you when you step up to the house. The grand entrance door leads you to the open plan of the foyer, Great Room, dining area, and kitchen. The intricate vaulted design of the ceiling identifies each area of these living spaces. A fireplace is...

Home Details

Summary
Plan #:161-1103
Starting at:$1750.00
Floors:1
Bedrooms:3
Full Baths:2
Half Baths:1
Garage:
Square Footage
Heated Area:2442 Sq. Ft.
Basement:1977 Sq. Ft.
First Floor:2442 Sq. Ft.
Unheated Area:
Basement:465 Sq. Ft.
Garage:880 Sq. Ft.
Porch:570 Sq. Ft.
Dimensions
Width:69' 6''
Architectural Styles
Exterior Wall Material
Vinyl SidingRock/StoneWood Siding
Roofing Type
GableHip
Roofing Material
Asphalt Shingles
Roof Pitch
7/12
Ceiling Height
9 Foot Ceiling
Special Feature
FireplaceDining RoomFamily RoomMain Level LaundryColor PhotosSplit BathroomOpen Floor PlanInterior Photos
Garage Type
Attached GarageFront Entry
Fireplaces
One Fireplace
Exterior Wall Framing
2x6
Kitchen Features
Kitchen IslandWalk-in PantryPeninsula/Eating Bar
Porches and Exterior Features
Covered Front PorchSundeck
Master Suite Features
Main Floor MasterMaster BathroomWalk In ClosetSplit Master Bedroom

What’s Included

Most plan sets include the following:

icon text-secondary-400 includedExterior elevations

icon text-secondary-400 includedMain Floor plan

icon text-secondary-400 includedArchitectural’ Foundation Plan

icon text-secondary-400 includedArchitectural’ Roof Plan

icon text-secondary-400 includedSections

icon text-secondary-400 includedMain Floor Electrical Plan

icon text-secondary-400 includedNo Framing

What’s Not Included

These items are  NOT included:

icon text-secondary-400 includedArchitectural or Engineering Stamp - handled locally if required.

icon text-secondary-400 includedSite Plan - handled locally when required.

icon text-secondary-400 includedPlumbing Drawings (drawings showing the actual plumbing pipe sizes and locations) - your subcontractors handle this.

icon text-secondary-400 includedEnergy calculations - handled locally when required.

Related House Plans

Plan Collection
Plan Collection
Plan Collection
Plan#142-1168
Starting at$1395
2597
Sq Ft
1
Story
3
Bed
2.5
Bath
2
Car
Plan Collection
Plan Collection
Plan Collection
Plan#117-1092
Starting at$1095
2091
Sq Ft
1
Story
3
Bed
2.5
Bath
2
Car
Plan Collection
Plan Collection
Plan Collection
Plan#106-1276
Starting at$1295
2344
Sq Ft
1
Story
3
Bed
2.5
Bath
2
Car
View All

Other Plans By This Designer

Plan Collection
Plan Collection
Plan Collection
Plan#161-1145
Starting at$2650
3907
Sq Ft
2
Story
4
Bed
3.5
Bath
3
Car
Plan Collection
Plan Collection
Plan Collection
Plan#161-1077
Starting at$4500
6563
Sq Ft
2
Story
5
Bed
5.5
Bath
5
Car
Plan Collection
Plan Collection
Plan Collection
Plan#161-1084
Starting at$4200
5170
Sq Ft
2
Story
5
Bed
5.5
Bath
3
Car