3-Bedroom, 1879 Sq Ft Craftsman Plan with Main Floor Primary Suite

Photo-realistic rendering of Craftsman home plan (ThePlanCollection: House Plan #117-1095)
Plan Collection View Video

Images/Plans copyrighted by designer. Photos may reflect homeowner modifications.

About House Plan #117-1095

Sq Ft
1879
Sq Ft
Bedrooms
3
Bedrooms
Bathroom
2
Baths
Half Baths
0
Half Baths
Bedrooms
2
Cars
Bedrooms
1
Stories
Bedrooms
78' 11'
Width
Bedrooms
57
Depth
Starting at$1095.00What's included
STEP 1Bedrooms
STEP 2Bedrooms
STEP 3Bedrooms

Subtotal:$0
Plan Collection

How much will it cost to build?

Estimate your costs based on your location and materials.

Free Cost Instant Estimator

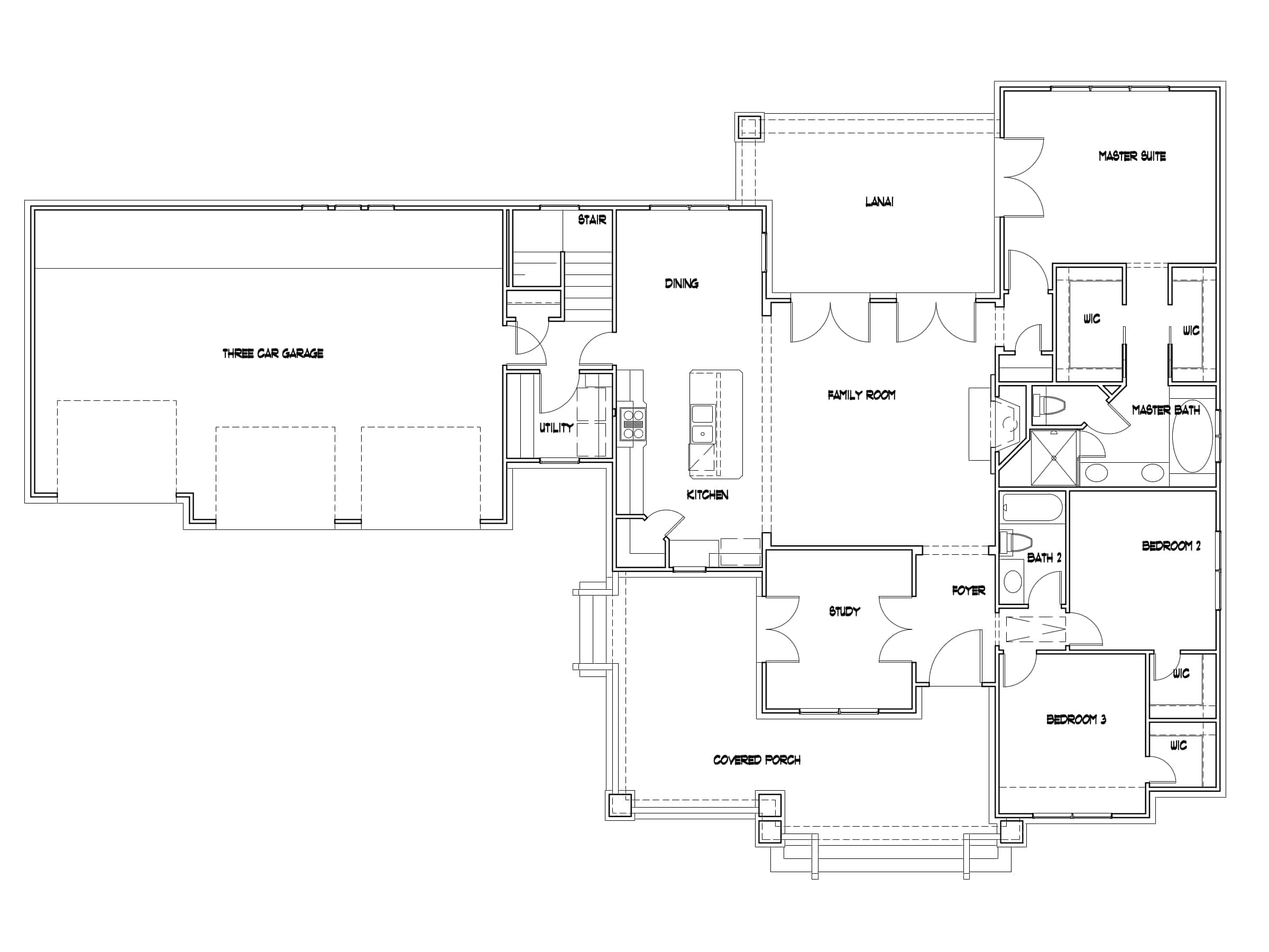
Floor Plans

Floor Plan Main Level
Floor Plan Main Level
3-Car Garage Option Layout
3-Car Garage Option Layout
Plan Collection

Can I modify this plan?

Yes! This plan can be customized—contact us for a free quote.

Additional Notes from Designer

Optional basement plans will make use of the stair in the rear adjacent the utility to access the lower level. For those with no basement needs, this space can be used for storage.

House Plan Description

A wide, wraparound porch. Classic tapered columns. A side "swing" porch to pass the time. Welcoming gabled rooflines. A shed dormer to the side. These elements combine beautifully in this classic Craftsman home design with three bedrooms and two bathrooms.

As you enter the foyer from the front porch, a study with double doors is to your left (which could also be a fourth bedroom or a guest room). Ahead is the spacious family room with its 11-foot ceiling, a fireplace, and French doors leading out to the lanai. The open-concept kitchen enjoys a large...

Home Details

Summary
Plan #:117-1095
Starting at:$1095.00
Floors:1
Bedrooms:3
Full Baths:2
Half Baths:0
Garage:
Square Footage
Heated Area:1879 Sq. Ft.
First Floor:1879 Sq. Ft.
Unheated Area:
Garage:573 Sq. Ft.
Porch:644 Sq. Ft.
Dimensions
Width:78' 11''
Depth:57' 11''
Ridge Height:24' 0''
Architectural Styles
Exterior Wall Material
Wood Siding
Roofing Type
Gable
Roofing Material
Asphalt Shingles
Roof Pitch
3/128/12
Ceiling Height
10 Foot Ceiling11 Foot Ceiling
Special Feature
FireplaceFamily RoomMain Level LaundryDenOpen Floor Plan
Garage Type
Attached GarageFront Entry
Fireplaces
One Fireplace
Exterior Wall Framing
2x4
Building Lot Type
Flat Site
Kitchen Features
Kitchen IslandNook/Breakfast AreaWalk-in PantryPeninsula/Eating BarEat-In Kitchen
Porches and Exterior Features
Wrap Around PorchCovered Front PorchCovered Rear PorchCovered Lanai
Master Suite Features
Main Floor MasterMaster BathroomWalk In Closet

What’s Included

Most plan sets include the following:

icon text-secondary-400 includedDetailed floor plans

icon text-secondary-400 includedExterior elevations

icon text-secondary-400 includedCabinet elevations

icon text-secondary-400 includedSections/Details

icon text-secondary-400 includedFraming plans

icon text-secondary-400 includedFoundation plans

icon text-secondary-400 includedElectrical layout

What’s Not Included

These items are  NOT included:

icon text-secondary-400 includedArchitectural or Engineering Stamp - handled locally if required.

icon text-secondary-400 includedSite Plan - handled locally when required.

icon text-secondary-400 includedMechanical Drawings (location of heating and air equipment and ductwork) - your subcontractors handle this.

icon text-secondary-400 includedPlumbing Drawings (drawings showing the actual plumbing pipe sizes and locations) - your subcontractors handle this.

icon text-secondary-400 includedEnergy calculations - handled locally when required.

Related House Plans

Plan Collection
Plan Collection
Plan Collection
Plan#117-1092
Starting at$1095
2091
Sq Ft
1
Story
3
Bed
2.5
Bath
2
Car
Plan Collection
Plan Collection
Plan Collection
Plan#106-1276
Starting at$1295
2344
Sq Ft
1
Story
3
Bed
2.5
Bath
2
Car
Plan Collection
Plan Collection
Plan Collection
Plan#141-1243
Starting at$1485
1640
Sq Ft
1
Story
3
Bed
2
Bath
2
Car
View All

Other Plans By This Designer

Plan Collection
Plan Collection
Plan Collection
Plan#117-1141
Starting at$895
1742
Sq Ft
1.5
Story
3
Bed
2.5
Bath
2
Car
Plan Collection
Plan Collection
Plan Collection
Plan#117-1104
Starting at$895
1421
Sq Ft
2
Story
3
Bed
2
Bath
2
Car
Plan Collection
Plan Collection
Plan Collection
Plan#117-1139
Starting at$1095
1988
Sq Ft
1
Story
3
Bed
2.5
Bath
2
Car