Estimate your costs based on your location and materials.
Yes! This plan can be customized—contact us for a free quote.
Yes! This plan can be customized—contact us for a free quote.
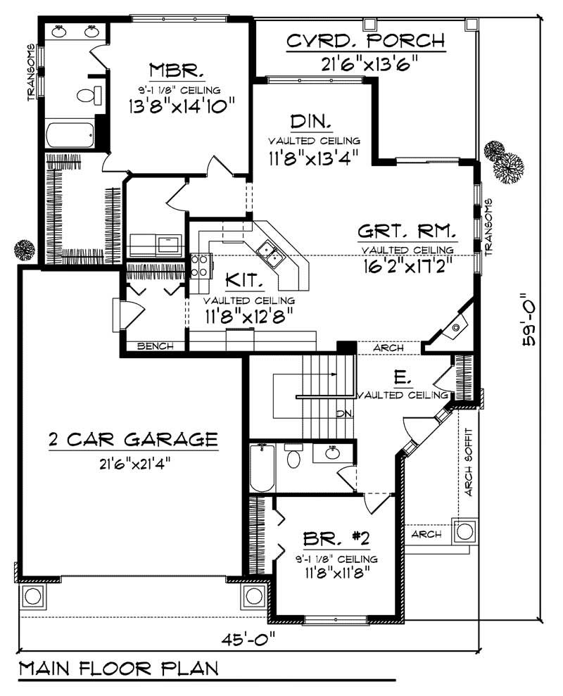
This cute ranch was designed with craftsman details for a unique curb appeal that’s rare in a home that’s just over 1500 square feet. From the moment you enter this charmer, you’ll be amazed by the vaulted ceilings throughout the main living area as well as the arched openings that great you from the entry to the great room. A corner fireplace warms the great room while a wall of windows let’s in plenty of natural sunlight. The kitchen overlooks the dining room and great room so that mom can stay in touch with the family as she cooks dinner. The master suite is located behind the garage and...
Estimate your costs based on your location and materials.
All sales of house plans, modifications, and other products found on this site are final. No refunds or exchanges can be given once your order has begun the fulfillment process. Please see our Policies for additional information.
All plans offered on ThePlanCollection.com are designed to conform to the local building codes when and where the original plan was drawn.
The homes as shown in photographs and renderings may differ from the actual blueprints. For more detailed information, please review the floor plan images herein carefully.
Estimate your costs based on your location and materials.