4-Bedroom, 4083 Sq Ft Craftsman Plan with Peninsula/Eating Bar

101-1874 front photo

Images/Plans copyrighted by designer. Photos may reflect homeowner modifications.

About House Plan #101-1874

Sq Ft
4083
Sq Ft
Bedrooms
4
Bedrooms
Bathroom
3
Baths
Half Baths
2
Half Baths
Bedrooms
3
Cars
Bedrooms
1
Stories
Bedrooms
55' 6'
Width
Bedrooms
94
Depth
Starting at$1837.35What's included
STEP 1Bedrooms
STEP 2Bedrooms
STEP 3Bedrooms

Subtotal:$0
Plan Collection

How much will it cost to build?

Estimate your costs based on your location and materials.

Free Cost Instant Estimator

Floor Plans

Floor Plan Main Level
Floor Plan Main Level
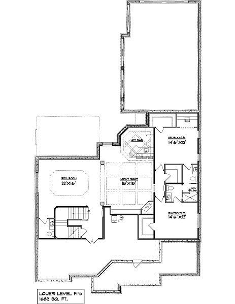
Floor Plan Basement
Floor Plan Basement
Plan Collection

Can I modify this plan?

Yes! This plan can be customized—contact us for a free quote.

Additional Notes from Designer

Designer's notes: If you would like to see this plan without a basement see plan 101-1873 http://www.theplancollection.com/house-plans/home-plan-26361.

House Plan Description

Rustic beamed and vaulted ceilings, interior and exterior fireplaces and an open floor plan are just some of the exceptional details found in this craftsman house plan. The main level is 2,394 square feet with a great room, kitchen, dining room and screened porch work together to create a living space that’s large enough for entertaining the entire family. The 1689 SF finished basement has space for 2 bedroom and rec room. This plan is also designed with a rear load garage. 

Home Details

Summary
Plan #:101-1874
Starting at:$1837.35
Floors:1
Bedrooms:4
Full Baths:3
Half Baths:2
Garage:
Square Footage
Heated Area:4083 Sq. Ft.
Basement:1689 Sq. Ft.
First Floor:2394 Sq. Ft.
Unheated Area:
Garage:962 Sq. Ft.
Dimensions
Width:55' 6''
Depth:94' 4''
Ridge Height:25' 0''
Architectural Styles
Exterior Wall Material
Rock/StoneShakes
Roofing Type
Gable
Roofing Material
Asphalt Shingles
Roof Pitch
8/12
Special Feature
FireplaceDining RoomMain Level LaundryColor PhotosColor PhotosDen
Garage Type
Attached GarageRear Entry
Fireplaces
Three Fireplaces
Exterior Wall Framing
2x6
Building Lot Type
Flat Site
Kitchen Features
Kitchen Island
Porches and Exterior Features
Covered Front Porch
Master Suite Features
Main Floor MasterMaster BathroomWalk In Closet

What’s Included

Most plan sets include the following:

icon text-secondary-400 includedFront, Back & Side Elevations

icon text-secondary-400 includedFloor Plans

icon text-secondary-400 includedElectrical Layout (location of outlets, switches, etc. - it does not have wiring schematics)

icon text-secondary-400 includedRoof Plan (Birdseye view)

icon text-secondary-400 includedFoundation Layout

icon text-secondary-400 includedWall & Stair Sections

icon text-secondary-400 includedCross Section

icon text-secondary-400 includedKitchen Layout

icon text-secondary-400 includedGeneral Notes

What’s Not Included

These items are  NOT included:

icon text-secondary-400 includedArchitectural or Engineering Stamp - handled locally if required.

icon text-secondary-400 includedSite Plan - handled locally when required.

icon text-secondary-400 includedMechanical Drawings (location of heating and air equipment and ductwork) - your subcontractors handle this.

icon text-secondary-400 includedPlumbing Drawings (drawings showing the actual plumbing pipe sizes and locations) - your subcontractors handle this.

icon text-secondary-400 includedFraming layouts with beam sizes and locations.

icon text-secondary-400 includedEnergy calculations - handled locally when required.

Related House Plans

Plan Collection
Plan Collection
Plan Collection
Plan#101-1873
Starting at$1075
2394
Sq Ft
1
Story
2
Bed
2.5
Bath
3
Car
View All

Other Plans By This Designer

Plan Collection
Plan Collection
Plan Collection
Plan#101-2006
Starting at$0
4724
Sq Ft
2
Story
4
Bed
4.5
Bath
4
Car
Plan Collection
Plan Collection
Plan Collection
Plan#101-2024
Starting at$1180
3235
Sq Ft
1
Story
5
Bed
3.5
Bath
3
Car
Plan Collection
Plan Collection
Plan Collection
Plan#101-2028
Starting at$0
4406
Sq Ft
2
Story
4
Bed
3.5
Bath
4
Car