2-Bedroom, 1922 Sq Ft Lake Plan with Vaulted Great Room

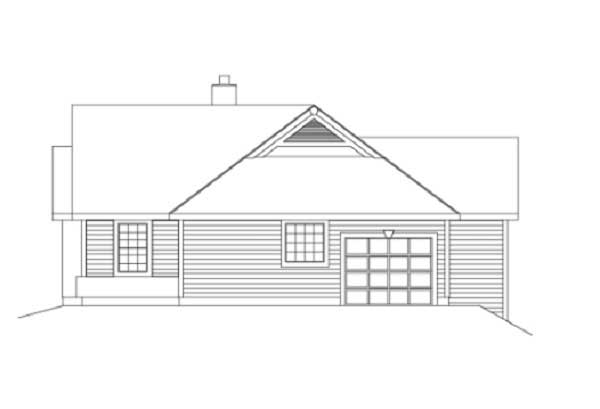
Front elevation of Lake home (ThePlanCollection: House Plan #138-1003)

Images/Plans copyrighted by designer. Photos may reflect homeowner modifications.

About House Plan #138-1003

Sq Ft
1922
Sq Ft
Bedrooms
2
Bedrooms
Bathroom
2
Baths
Half Baths
0
Half Baths
Bedrooms
1
Cars
Bedrooms
1
Stories
Bedrooms
55' 8'
Width
Bedrooms
46
Depth
Starting at$1050.00What's included
STEP 1Bedrooms
STEP 2Bedrooms
STEP 3Bedrooms

Subtotal:$0
Plan Collection

How much will it cost to build?

Estimate your costs based on your location and materials.

Free Cost Instant Estimator

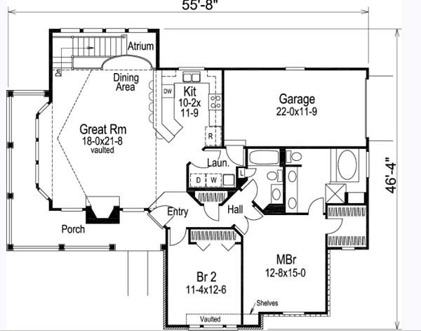
Floor Plans

Floor Plan First Story
Floor Plan First Story
Plan Collection

Can I modify this plan?

Yes! This plan can be customized—contact us for a free quote.

Additional Notes from Designer

PLEASE NOTE: Not all plans from this designer can be modified! Please check before sending in a mod request. Thank you!

House Plan Description

This pleasing Country style home with Cottage expressions is like a storybook home, with its corner wrap-around porch, stacked-stone chimney and partial siding, and vaulted Great Room with large bay window. The atrium at the rear of the house has large windows for an awesome view and stairs that lead down to the walkout/daylight basement. The basement is unfinished, but you can finish it as you like if desired. The home (Plan #138-1003) has 1922 square feet of living space., and the 1-story floor plan includes 2 bedrooms.

Home Details

Summary
Plan #:138-1003
Starting at:$1050.00
Floors:1
Bedrooms:2
Full Baths:2
Half Baths:0
Garage:
Square Footage
Heated Area:1922 Sq. Ft.
First Floor:1415 Sq. Ft.
Unheated Area:
Basement:507 Sq. Ft.
Garage:259 Sq. Ft.
Dimensions
Width:55' 8''
Depth:46' 4''
Ridge Height:20' 0''
Architectural Styles
Exterior Wall Material
Vinyl SidingRock/Stone
Roofing Type
Gable
Roofing Material
Asphalt Shingles
Roof Pitch
9/1210/12
Ceiling Height
8 Foot Ceiling
Special Feature
FireplaceFamily RoomMain Level LaundryOpen Floor Plan
Garage Type
Attached GarageSide Entry
Construction Methods
Structural Insulated
Fireplaces
One Fireplace
Exterior Wall Framing
2x4
Building Lot Type
Down SiteSide Slope Site
Kitchen Features
Peninsula/Eating BarEat-In Kitchen
Porches and Exterior Features
Wrap Around PorchScreened Porch/Sunroom
Master Suite Features
Main Floor MasterMaster BathroomWalk In Closet

What’s Included

Most plan sets include the following:

icon text-secondary-400 includedCover sheet

icon text-secondary-400 includedFoundation plan

icon text-secondary-400 includedFloor plans

icon text-secondary-400 includedExterior elevations

icon text-secondary-400 includedRoof plan

icon text-secondary-400 includedDetails Sheet

icon text-secondary-400 includedSections

icon text-secondary-400 includedInterior elevations

What’s Not Included

These items are  NOT included:

icon text-secondary-400 includedArchitectural or Engineering Stamp - handled locally if required.

icon text-secondary-400 includedSite Plan - handled locally when required.

icon text-secondary-400 includedMechanical Drawings (location of heating and air equipment and ductwork) - your subcontractors handle this.

icon text-secondary-400 includedPlumbing Drawings (drawings showing the actual plumbing pipe sizes and locations) - your subcontractors handle this.

icon text-secondary-400 includedEnergy calculations - handled locally when required.

Related House Plans

Plan Collection
Plan Collection
Plan Collection
Plan#142-1265
Starting at$1245
1448
Sq Ft
1
Story
2
Bed
2
Bath
1
Car
Plan Collection
Plan Collection
Plan Collection
Plan#146-2812
Starting at$1015
2030
Sq Ft
1
Story
2
Bed
2
Bath
3
Car
Plan Collection
Plan Collection
Plan Collection
Plan#202-1011
Starting at$1000
2331
Sq Ft
1
Story
2
Bed
2
Bath
2
Car
View All

Other Plans By This Designer

Plan Collection
Plan Collection
Plan Collection
Plan#138-1209
Starting at$450
421
Sq Ft
1
Story
1
Bed
1
Bath
1
Car
Plan Collection
Plan Collection
Plan Collection
Plan#138-1314
Starting at$1050
1536
Sq Ft
1
Story
4
Bed
2
Bath
0
Car
Plan Collection
Plan Collection
Plan Collection
Plan#138-1315
Starting at$1050
1536
Sq Ft
1
Story
4
Bed
2
Bath
0
Car