5-Bedroom, 4853 Sq Ft Luxury Plan with Interior Photos

Luxury Country house design (ThePlanCollection: Plan #101-2020)
Plan Collection View Video

Images/Plans copyrighted by designer. Photos may reflect homeowner modifications.

About House Plan #101-2020

Sq Ft
4853
Sq Ft
Bedrooms
5
Bedrooms
Bathroom
4
Baths
Half Baths
3
Half Baths
Bedrooms
4
Cars
Bedrooms
2
Stories
Bedrooms
80' 0'
Width
Bedrooms
60
Depth
Starting at$2183.85What's included
STEP 1Bedrooms
STEP 2Bedrooms
STEP 3Bedrooms

Subtotal:$0
Plan Collection

How much will it cost to build?

Estimate your costs based on your location and materials.

Free Cost Instant Estimator

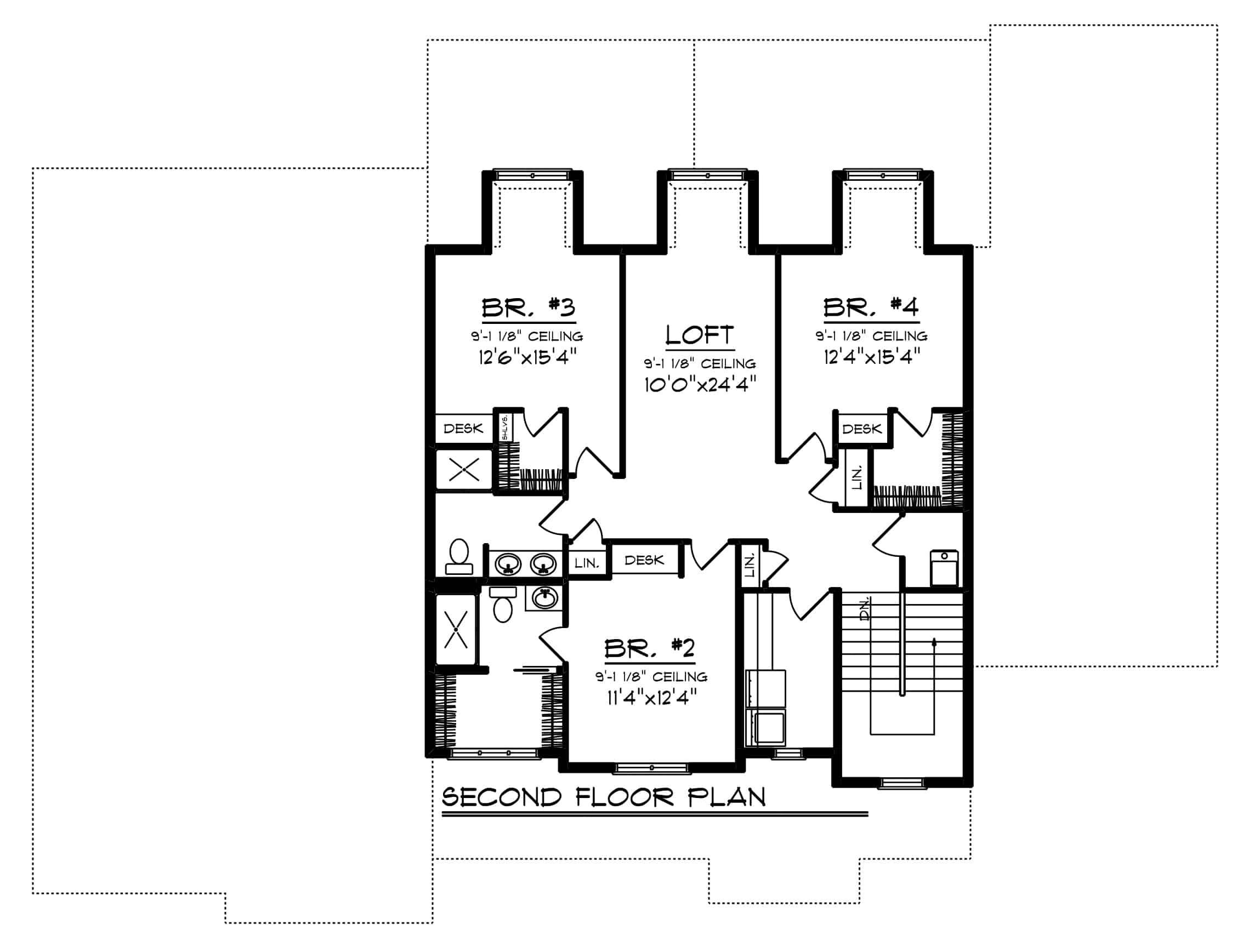
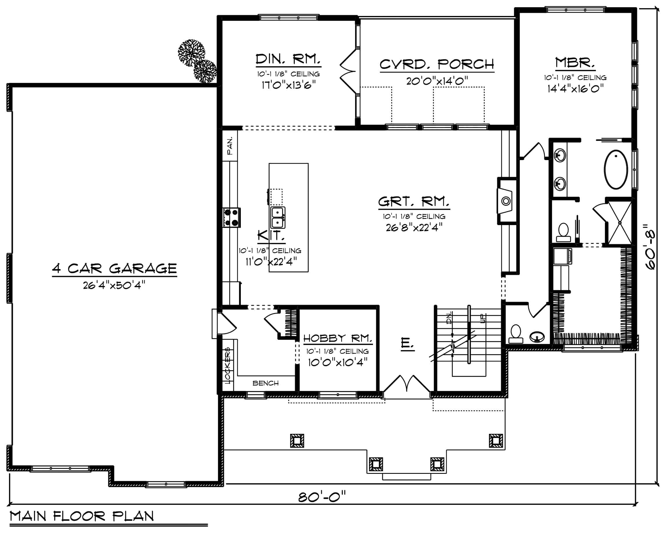
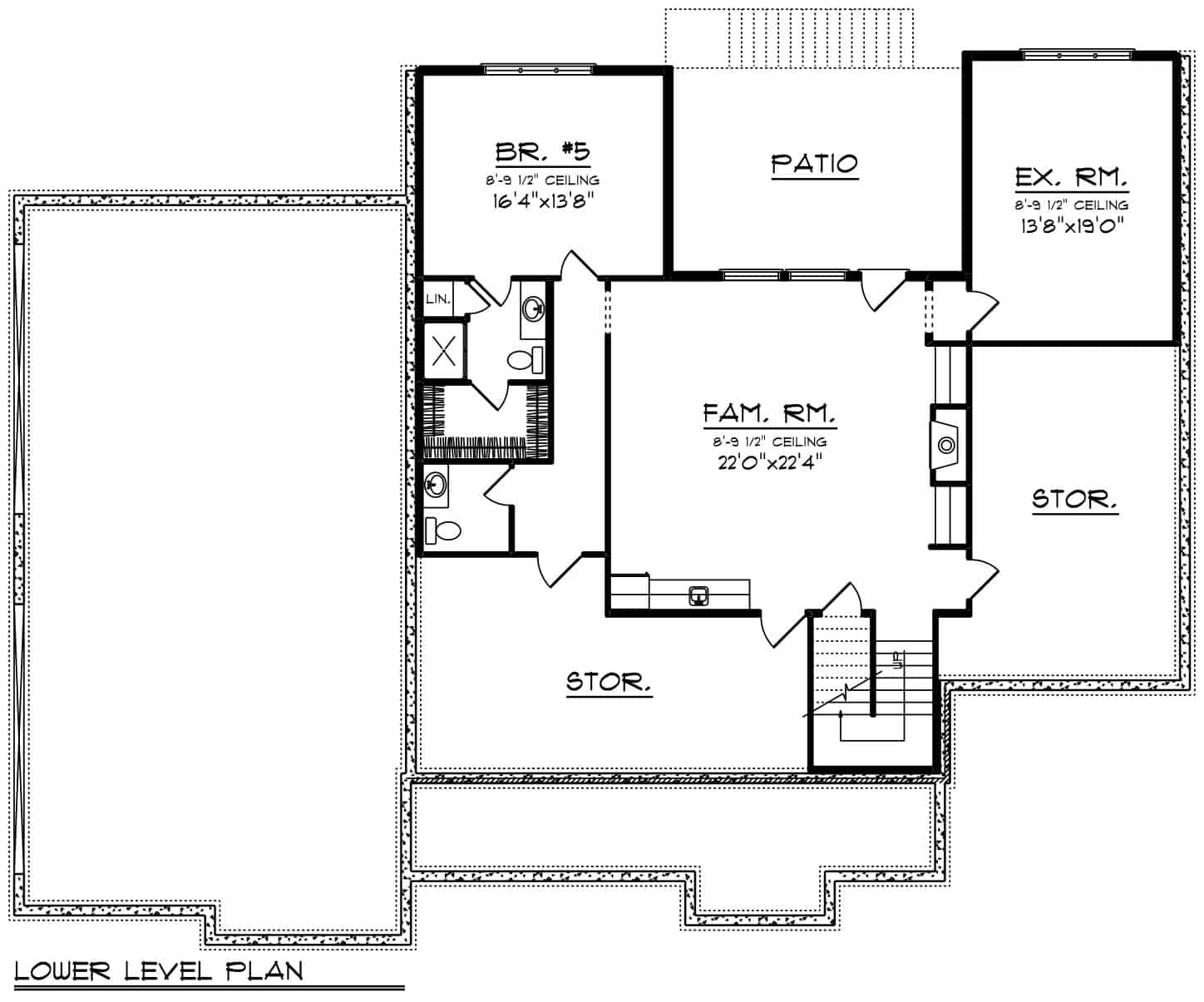
Floor Plans

Main Level
Main Level
Upper Level
Upper Level
Lower Level
Lower Level
Plan Collection

Can I modify this plan?

Yes! This plan can be customized—contact us for a free quote.

House Plan Description

This Luxury Traditional Colonial style home conjures the feeling of being in a magnificent living space – everyone will be impressed by its superb open planning and its well-balanced material combination. The luxurious 2-story floor plan has 4853 square feet of heated and cooled finished living space with finished basement level. It also features a covered front porch area with stately columns and generous width, which could be an area for gathering on warm evenings.

The lovely front covered porch will welcome you upon arrival, and the...

Home Details

Summary
Plan #:101-2020
Starting at:$2183.85
Floors:2
Bedrooms:5
Full Baths:4
Half Baths:3
Garage:
Square Footage
Heated Area:4853 Sq. Ft.
Basement:1368 Sq. Ft.
First Floor:2213 Sq. Ft.
Second Floor:1272 Sq. Ft.
Unheated Area:
Garage:1337 Sq. Ft.
Porch:280 Sq. Ft.
Dimensions
Depth:60' 8''
Ridge Height:29' 0''
Architectural Styles
Exterior Wall Material
Vinyl SidingRock/StoneWood SidingShakes
Roofing Type
GableHip
Roofing Material
Asphalt Shingles
Roof Pitch
6/128/12
Ceiling Height
10 Foot Ceiling9 Foot Ceiling
Special Feature
FireplaceDining RoomMud RoomFamily RoomColor PhotosColor PhotosLoftSplit BathroomStorageExercise RoomVideoOpen Floor PlanInterior PhotosInterior PhotosL-Shaped
Garage Type
Attached GarageSide Entry
Fireplaces
Two Fireplaces
Exterior Wall Framing
2x6
Building Lot Type
Down SiteCorner Lot
Kitchen Features
Kitchen IslandPeninsula/Eating Bar
Porches and Exterior Features
Covered Front PorchCovered Rear PorchPatio
Master Suite Features
Main Floor MasterMaster BathroomWalk In Closet

What’s Included

Most plan sets include the following:

icon text-secondary-400 includedFront, Back & Side Elevations

icon text-secondary-400 includedFloor Plans

icon text-secondary-400 includedElectrical Layout (location of outlets, switches, etc. - it does not have wiring schematics)

icon text-secondary-400 includedRoof Plan (Birdseye view)

icon text-secondary-400 includedFoundation Layout

icon text-secondary-400 includedWall & Stair Sections

icon text-secondary-400 includedCross Section

icon text-secondary-400 includedKitchen Layout

icon text-secondary-400 includedGeneral Notes

What’s Not Included

These items are  NOT included:

icon text-secondary-400 includedArchitectural or Engineering Stamp - handled locally if required.

icon text-secondary-400 includedSite Plan - handled locally when required.

icon text-secondary-400 includedMechanical Drawings (location of heating and air equipment and ductwork) - your subcontractors handle this.

icon text-secondary-400 includedPlumbing Drawings (drawings showing the actual plumbing pipe sizes and locations) - your subcontractors handle this.

icon text-secondary-400 includedFraming layouts with beam sizes and locations.

icon text-secondary-400 includedEnergy calculations - handled locally when required.

Related House Plans

Plan Collection
Plan Collection
Plan Collection
Plan#161-1022
Starting at$2650
5711
Sq Ft
2
Story
5
Bed
4.5
Bath
3
Car
Plan Collection
Plan Collection
Plan Collection
Plan#161-1075
Starting at$3400
4784
Sq Ft
2
Story
5
Bed
4.5
Bath
3
Car
Plan Collection
Plan Collection
Plan Collection
Plan#134-1339
Starting at$0
4434
Sq Ft
2
Story
5
Bed
4.5
Bath
3
Car
View All

Other Plans By This Designer

Plan Collection
Plan Collection
Plan Collection
Plan#101-2006
Starting at$0
4724
Sq Ft
2
Story
4
Bed
4.5
Bath
4
Car
Plan Collection
Plan Collection
Plan Collection
Plan#101-2024
Starting at$1180
3235
Sq Ft
1
Story
5
Bed
3.5
Bath
3
Car
Plan Collection
Plan Collection
Plan Collection
Plan#101-2028
Starting at$0
4406
Sq Ft
2
Story
4
Bed
3.5
Bath
4
Car