Estimate your costs based on your location and materials.
Yes! This plan can be customized—contact us for a free quote.
Yes! This plan can be customized—contact us for a free quote.
Optional Foundations are considered modifications so please send us a modification request if you would like a free quote. Thank you! PLEASE NOTE! Any options that are ordered such as RRR or 2x6 conversion will each take 4-7 business days to complete BEFORE the plans are sent. Materials Lists can take up to 14 business days to complete BEFORE plans are sent.
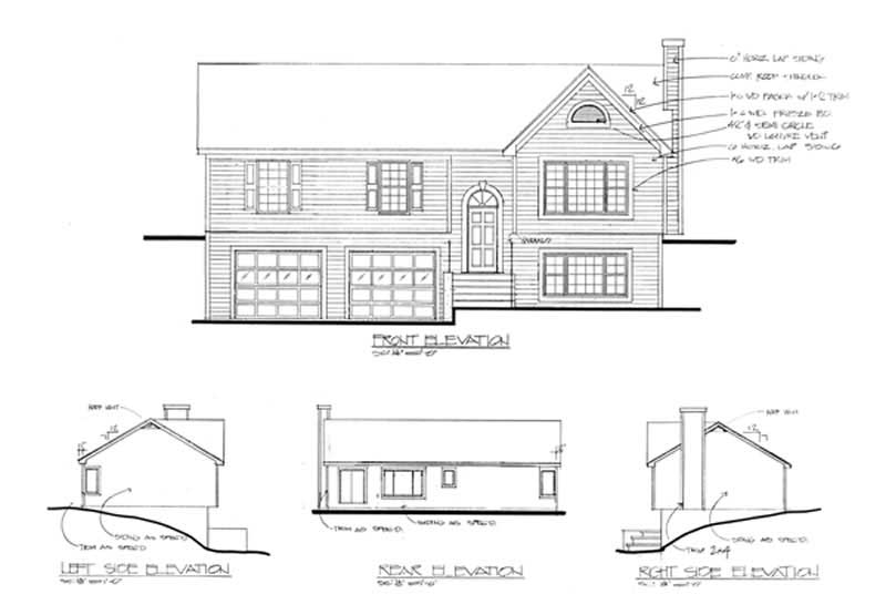
This increasingly popular split-foyer design features 1,496 sq. ft. of living space. Highlighting both the living room and dining room is a vaulted ceiling. A fireplace in the living room adds warmth to the open living/dining area. The efficient kitchen features an angled countertop, pantry and eat-in breakfast nook. Measuring 12'x16', the master suite features, separate his and hers closets and a spacious master bath with separate step-up tub and shower. The remaining two bedrooms share a conveniently located hall bath.
Estimate your costs based on your location and materials.
All sales of house plans, modifications, and other products found on this site are final. No refunds or exchanges can be given once your order has begun the fulfillment process. Please see our Policies for additional information.
All plans offered on ThePlanCollection.com are designed to conform to the local building codes when and where the original plan was drawn.
The homes as shown in photographs and renderings may differ from the actual blueprints. For more detailed information, please review the floor plan images herein carefully.
Estimate your costs based on your location and materials.