3-Bedroom, 1334 Sq Ft Country Plan with Covered Porches

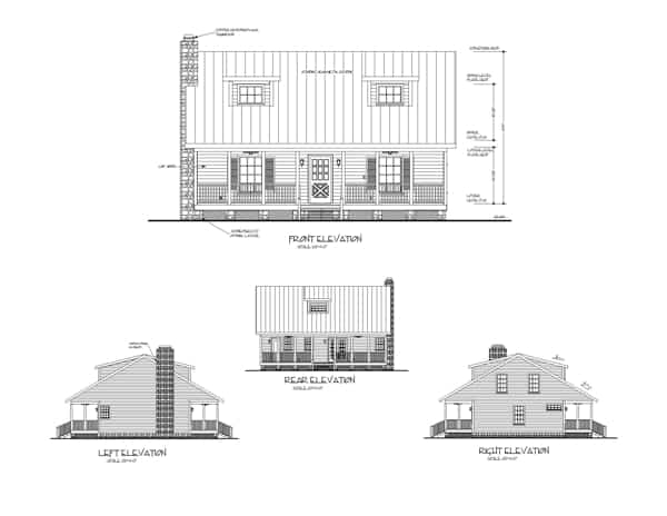
Front elevation of small country home (ThePlanCollection: House Plan #109-1029)

Images/Plans copyrighted by designer. Photos may reflect homeowner modifications.

About House Plan #109-1029

Sq Ft
1334
Sq Ft
Bedrooms
3
Bedrooms
Bathroom
2
Baths
Half Baths
1
Half Baths
Bedrooms
0
Cars
Bedrooms
2
Stories
Bedrooms
38' 2'
Width
Bedrooms
42
Depth
Starting at$1195.00What's included
STEP 1Bedrooms
STEP 2Bedrooms
STEP 3Bedrooms

Subtotal:$0
Plan Collection

How much will it cost to build?

Estimate your costs based on your location and materials.

Free Cost Instant Estimator

Floor Plans

First Floor
First Floor
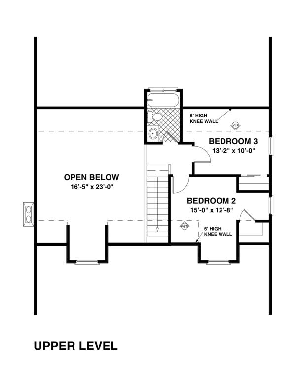
Floor Plan Second Story
Floor Plan Second Story
Plan Collection

Can I modify this plan?

Yes! This plan can be customized—contact us for a free quote.

Additional Notes from Designer

Optional Foundations are considered modifications so please send us a modification request if you would like a free quote. Thank you! PLEASE NOTE! Any options that are ordered such as RRR or 2x6 conversion will each take 4-7 business days to complete BEFORE the plans are sent. Materials Lists can take up to 14 business days to complete BEFORE plans are sent.

House Plan Description

This small and well-designed, 3-bedroom, rustic country home offers far more inside than initially meets the eye! Even before entering, the home's exterior is a pleasant surprise. The wide, front porch is welcoming. The double shed dormers in the roofline at further intrigue. After relaxing on the front porch for a bit, step inside the front door and into the family room. The vaulted ceiling immediately creates a sense of a much larger space. The shed dormer adds more light to the room. The fireplace adds both warmth and comfort. With an open floor plan, the open-concept country...

Home Details

Summary
Plan #:109-1029
Starting at:$1195.00
Floors:2
Bedrooms:3
Full Baths:2
Half Baths:1
Garage:
Square Footage
Heated Area:1334 Sq. Ft.
First Floor:953 Sq. Ft.
Second Floor:381 Sq. Ft.
Unheated Area:
Porch:540 Sq. Ft.
Dimensions
Width:38' 2''
Depth:42' 4''
Ridge Height:21' 0''
Architectural Styles
Exterior Wall Material
Wood Siding
Roofing Type
Gable/Shed Dormer
Roofing Material
Metal
Roof Pitch
7/12
Special Feature
Mother in law apartmentFireplaceDining RoomFamily RoomMain Level LaundryStorageVaulted CeilingsOpen Floor Plan
Fireplaces
One Fireplace
Exterior Wall Framing
2x4
Building Lot Type
Flat SiteNarrow Lot Design
Kitchen Features
Kitchen IslandNook/Breakfast AreaPeninsula/Eating BarEat-In Kitchen
Porches and Exterior Features
Covered Front PorchCovered Rear Porch
Master Suite Features
Main Floor MasterMaster BathroomWalk In ClosetSitting AreaSplit Master Bedroom

What’s Included

Most plan sets include the following:

icon text-secondary-400 includedRendering cover page

icon text-secondary-400 includedElevations

icon text-secondary-400 includedFloor plans

icon text-secondary-400 includedFoundation plan

icon text-secondary-400 includedCabinet/interior elevations

icon text-secondary-400 includedRoof plan

icon text-secondary-400 includedSection

icon text-secondary-400 includedConstruction details

icon text-secondary-400 includedIRC code specifications

What’s Not Included

These items are  NOT included:

icon text-secondary-400 includedArchitectural or Engineering Stamp - handled locally if required.

icon text-secondary-400 includedSite Plan - handled locally when required.

icon text-secondary-400 includedMechanical Drawings (location of heating and air equipment and duct work) - your subcontractors handle this.

icon text-secondary-400 includedPlumbing Drawings (drawings showing the actual plumbing pipe sizes and locations) - your subcontractors handle this.

icon text-secondary-400 includedEnergy calculations - handled locally when required.

Related House Plans

Plan Collection
Plan Collection
Plan Collection
Plan#160-1009
Starting at$945
1235
Sq Ft
2
Story
3
Bed
2
Bath
0
Car
Plan Collection
Plan Collection
Plan Collection
Plan#117-1104
Starting at$895
1421
Sq Ft
2
Story
3
Bed
2
Bath
2
Car
Plan Collection
Plan Collection
Plan Collection
Plan#160-1015
Starting at$945
1370
Sq Ft
2
Story
3
Bed
2
Bath
0
Car
View All

Other Plans By This Designer

Plan Collection
Plan Collection
Plan Collection
Plan#109-1193
Starting at$1395
2156
Sq Ft
1
Story
3
Bed
3
Bath
3
Car
Plan Collection
Plan Collection
Plan Collection
Plan#109-1179
Starting at$1395
2253
Sq Ft
2
Story
4
Bed
3
Bath
2
Car
Plan Collection
Plan Collection
Plan Collection
Plan#109-1013
Starting at$1295
1831
Sq Ft
1
Story
3
Bed
2.5
Bath
2
Car