3-Bedroom, 1390 Sq Ft Country Plan with Peninsula/Eating Bar

Front view of Country home (ThePlanCollection: House Plan #146-1198)

Images/Plans copyrighted by designer. Photos may reflect homeowner modifications.

About House Plan #146-1198

Sq Ft
1390
Sq Ft
Bedrooms
3
Bedrooms
Bathroom
2
Baths
Half Baths
0
Half Baths
Bedrooms
2
Cars
Bedrooms
1
Stories
Bedrooms
46' 0'
Width
Bedrooms
53
Depth
Starting at$885.00What's included
STEP 1Bedrooms
STEP 2Bedrooms
STEP 3Bedrooms

Subtotal:$0
Plan Collection

How much will it cost to build?

Estimate your costs based on your location and materials.

Free Cost Instant Estimator

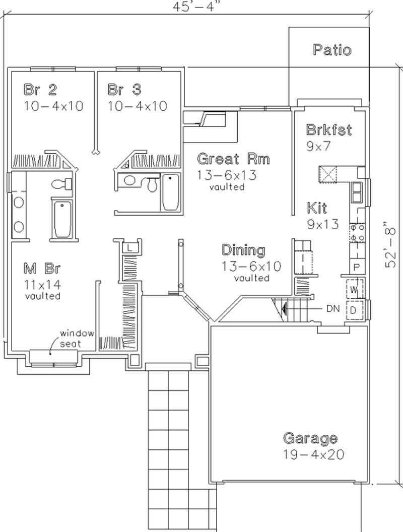
Floor Plans

Floor Plan First Story
Floor Plan First Story
Plan Collection

Can I modify this plan?

Yes! This plan can be customized—contact us for a free quote.

House Plan Description

This country house has a vaulted dining room opening to the Great Room, which boasts a handsome hearth. The galley kitchen has an adjoining laundry room and a serving bar to the sunny breakfast nook, which provides access to a charming rear patio. The master bedroom has a bayed window seat, vaulted ceilings and a private bath.

Home Details

Summary
Plan #:146-1198
Starting at:$885.00
Floors:1
Bedrooms:3
Full Baths:2
Half Baths:0
Garage:
Square Footage
Heated Area:1390 Sq. Ft.
First Floor:1390 Sq. Ft.
Unheated Area:
Dimensions
Architectural Styles
Exterior Wall Material
BrickWood Siding
Roofing Type
Gable
Roofing Material
Asphalt Shingles
Roof Pitch
10/12
Special Feature
FireplaceDining RoomMud RoomMain Level LaundrySplit BathroomVaulted Ceilings
Garage Type
Attached GarageFront Entry
Fireplaces
One Fireplace
Exterior Wall Framing
2x6
Building Lot Type
Flat Site
Kitchen Features
Nook/Breakfast AreaWalk-in PantryPeninsula/Eating BarEat-In Kitchen
Porches and Exterior Features
Covered Front PorchCovered Rear Porch
Master Suite Features
Main Floor MasterMaster BathroomWalk In ClosetSitting Area

What’s Included

Most plan sets include the following:

What’s Not Included

These items are  NOT included:

icon text-secondary-400 includedArchitectural or Engineering Stamp - handled locally if required.

icon text-secondary-400 includedSite Plan - handled locally when required.

icon text-secondary-400 includedMechanical Drawings (location of heating and air equipment and ductwork) - your subcontractors handle this.

icon text-secondary-400 includedPlumbing Drawings (drawings showing the actual plumbing pipe sizes and locations) - your subcontractors handle this.

icon text-secondary-400 includedEnergy calculations - handled locally when required.

Related House Plans

Plan Collection
Plan Collection
Plan Collection
Plan#142-1041
Starting at$1245
1300
Sq Ft
1
Story
3
Bed
2
Bath
2
Car
Plan Collection
Plan Collection
Plan Collection
Plan#141-1243
Starting at$1485
1640
Sq Ft
1
Story
3
Bed
2
Bath
2
Car
Plan Collection
Plan Collection
Plan Collection
Plan#176-1012
Starting at$600
1412
Sq Ft
1
Story
3
Bed
2
Bath
0
Car
View All

Other Plans By This Designer

Plan Collection
Plan Collection
Plan Collection
Plan#146-2806
Starting at$980
1933
Sq Ft
2
Story
3
Bed
2
Bath
0
Car
Plan Collection
Plan Collection
Plan Collection
Plan#146-2810
Starting at$1285
3594
Sq Ft
2
Story
4
Bed
3.5
Bath
2
Car
Plan Collection
Plan Collection
Plan Collection
Plan#146-1917
Starting at$1120
2525
Sq Ft
2
Story
4
Bed
2.5
Bath
3
Car