4-Bedroom, 3594 Sq Ft Transitional Craftsman Plan with Kitchen Island

Front view of Transitional home (ThePlanCollection: House Plan #146-2810)
Plan Collection View Video

Images/Plans copyrighted by designer. Photos may reflect homeowner modifications.

About House Plan #146-2810

Sq Ft
3594
Sq Ft
Bedrooms
4
Bedrooms
Bathroom
3
Baths
Half Baths
1
Half Baths
Bedrooms
2
Cars
Bedrooms
2
Stories
Bedrooms
86' 0'
Width
Bedrooms
38
Depth
Starting at$1285.00What's included
STEP 1Bedrooms
STEP 2Bedrooms
STEP 3Bedrooms

Subtotal:$0
Plan Collection

How much will it cost to build?

Estimate your costs based on your location and materials.

Free Cost Instant Estimator

Floor Plans

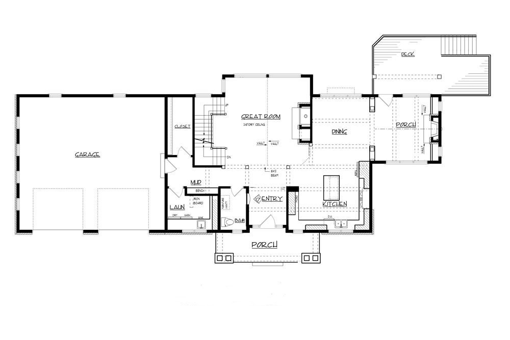
Floor Plan Main Level
Floor Plan Main Level
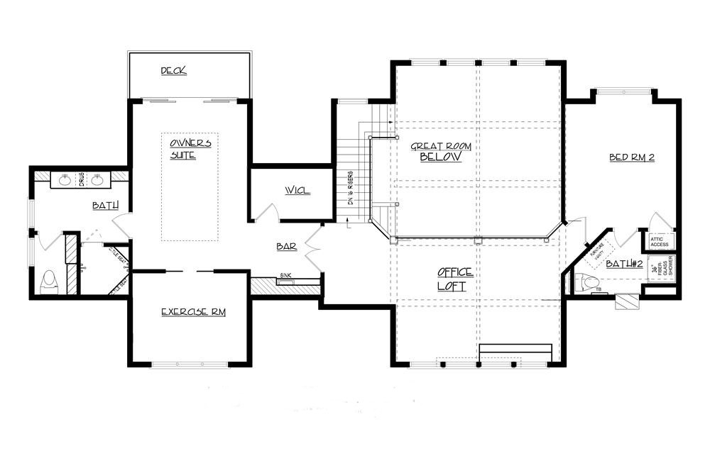
Floor Plan Upper Level
Floor Plan Upper Level
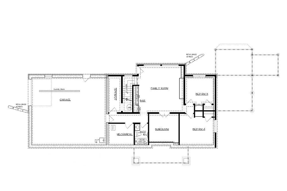
Lower Level
Lower Level
Plan Collection

Can I modify this plan?

Yes! This plan can be customized—contact us for a free quote.

House Plan Description

This handsome Transitional style home with Craftsman influences has 3594 square feet of living space. The 2 story floor plan includes 4 bedrooms, 3 full bathrooms, and 1 half bath.

Home Details

Summary
Plan #:146-2810
Starting at:$1285.00
Floors:2
Bedrooms:4
Full Baths:3
Half Baths:1
Garage:
Square Footage
Heated Area:3594 Sq. Ft.
Basement:976 Sq. Ft.
First Floor:1437 Sq. Ft.
Second Floor:1181 Sq. Ft.
Unheated Area:
Dimensions
Ridge Height:39' 0''
Architectural Styles
Exterior Wall Material
Wood SidingShakes
Roofing Type
Gable
Roofing Material
Asphalt Shingles
Roof Pitch
12/1210/12
Special Feature
FireplaceDining RoomHome OfficeMud RoomFamily RoomMain Level LaundryColor PhotosLoftStorageVaulted CeilingsExercise RoomVideoOpen Floor PlanInterior Photos
Garage Type
Attached GarageFront Entry
Fireplaces
One Fireplace
Exterior Wall Framing
2x6
Building Lot Type
Down Site
Kitchen Features
Kitchen IslandNook/Breakfast AreaEat-In Kitchen
Porches and Exterior Features
Covered Front PorchSundeckScreened Porch/Sunroom
Master Suite Features
Master BathroomWalk In ClosetSitting AreaPrivate DeckSecond Floor Master

What’s Included

Most plan sets include the following:

What’s Not Included

These items are  NOT included:

icon text-secondary-400 includedArchitectural or Engineering Stamp - handled locally if required.

icon text-secondary-400 includedSite Plan - handled locally when required.

icon text-secondary-400 includedMechanical Drawings (location of heating and air equipment and ductwork) - your subcontractors handle this.

icon text-secondary-400 includedPlumbing Drawings (drawings showing the actual plumbing pipe sizes and locations) - your subcontractors handle this.

icon text-secondary-400 includedEnergy calculations - handled locally when required.

Related House Plans

Plan Collection
Plan Collection
Plan Collection
Plan#161-1067
Starting at$2400
3897
Sq Ft
2
Story
4
Bed
3.5
Bath
3
Car
Plan Collection
Plan Collection
Plan Collection
Plan#109-1191
Starting at$1495
2909
Sq Ft
2
Story
4
Bed
3.5
Bath
0
Car
Plan Collection
Plan Collection
Plan Collection
Plan#189-1016
Starting at$1595
2880
Sq Ft
2
Story
4
Bed
3.5
Bath
2
Car
View All

Other Plans By This Designer

Plan Collection
Plan Collection
Plan Collection
Plan#146-2806
Starting at$980
1933
Sq Ft
2
Story
3
Bed
2
Bath
0
Car
Plan Collection
Plan Collection
Plan Collection
Plan#146-1917
Starting at$1120
2525
Sq Ft
2
Story
4
Bed
2.5
Bath
3
Car
Plan Collection
Plan Collection
Plan Collection
Plan#146-2173
Starting at$1015
2464
Sq Ft
1
Story
4
Bed
3
Bath
3
Car