2-Bedroom, 2025 Sq Ft Country Plan with Sitting Area

Front view of Country home (ThePlanCollection: House Plan #146-1630)

Images/Plans copyrighted by designer. Photos may reflect homeowner modifications.

About House Plan #146-1630

Sq Ft
2025
Sq Ft
Bedrooms
2
Bedrooms
Bathroom
2
Baths
Half Baths
0
Half Baths
Bedrooms
2
Cars
Bedrooms
1
Stories
Bedrooms
58' 0'
Width
Bedrooms
55
Depth
Starting at$1015.00What's included
STEP 1Bedrooms
STEP 2Bedrooms
STEP 3Bedrooms

Subtotal:$0
Plan Collection

How much will it cost to build?

Estimate your costs based on your location and materials.

Free Cost Instant Estimator

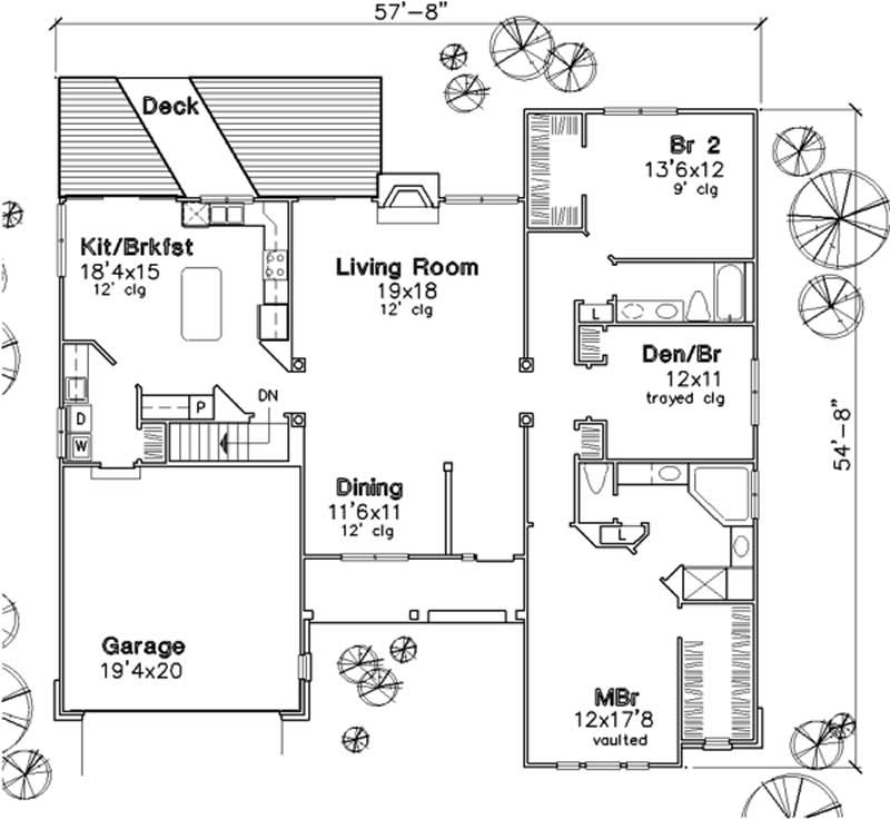
Floor Plans

Floor Plan First Story
Floor Plan First Story
Plan Collection

Can I modify this plan?

Yes! This plan can be customized—contact us for a free quote.

House Plan Description

This ranch usesdecorative dormers, a railed porch and a generous country-style kitchen to give this modern home a traditional feel. Soaring 12-ft.-high ceilings add volume to the expansive combined area of the foyer, living room and dining area. The living room fireplace is flanked by French doors and high transom windows, creating a virtual wall of glass. Elegant columns adorn the entrances to the bedroom hallway and to the exciting kitchen and nook. The roomy island kitchen features a breakfast nook nestled in a panoramic corner of windows that nearly stretch from the floor to the...

Home Details

Summary
Plan #:146-1630
Starting at:$1015.00
Floors:1
Bedrooms:2
Full Baths:2
Half Baths:0
Garage:
Square Footage
Heated Area:2025 Sq. Ft.
First Floor:2025 Sq. Ft.
Unheated Area:
Dimensions
Ridge Height:16' 0''
Architectural Styles
Exterior Wall Material
BrickWood Siding
Roofing Type
Hip
Roofing Material
Asphalt Shingles
Special Feature
FireplaceDining RoomMud RoomMain Level LaundrySplit BathroomDenVaulted Ceilings
Garage Type
Attached GarageFront Entry
Fireplaces
One Fireplace
Exterior Wall Framing
2x4
Building Lot Type
Flat Site
Kitchen Features
Kitchen IslandNook/Breakfast AreaWalk-in PantryEat-In Kitchen
Porches and Exterior Features
Covered Front PorchSundeck
Master Suite Features
Main Floor MasterMaster BathroomWalk In Closet

What’s Included

Most plan sets include the following:

What’s Not Included

These items are  NOT included:

icon text-secondary-400 includedArchitectural or Engineering Stamp - handled locally if required.

icon text-secondary-400 includedSite Plan - handled locally when required.

icon text-secondary-400 includedMechanical Drawings (location of heating and air equipment and ductwork) - your subcontractors handle this.

icon text-secondary-400 includedPlumbing Drawings (drawings showing the actual plumbing pipe sizes and locations) - your subcontractors handle this.

icon text-secondary-400 includedEnergy calculations - handled locally when required.

Related House Plans

Plan Collection
Plan Collection
Plan Collection
Plan#138-1003
Starting at$1050
1922
Sq Ft
1
Story
2
Bed
2
Bath
1
Car
Plan Collection
Plan Collection
Plan Collection
Plan#161-1097
Starting at$1750
2422
Sq Ft
1
Story
2
Bed
2.5
Bath
3
Car
Plan Collection
Plan Collection
Plan Collection
Plan#161-1073
Starting at$1750
2478
Sq Ft
1
Story
2
Bed
2.5
Bath
7
Car
View All

Other Plans By This Designer

Plan Collection
Plan Collection
Plan Collection
Plan#146-2806
Starting at$980
1933
Sq Ft
2
Story
3
Bed
2
Bath
0
Car
Plan Collection
Plan Collection
Plan Collection
Plan#146-2810
Starting at$1285
3594
Sq Ft
2
Story
4
Bed
3.5
Bath
2
Car
Plan Collection
Plan Collection
Plan Collection
Plan#146-1917
Starting at$1120
2525
Sq Ft
2
Story
4
Bed
2.5
Bath
3
Car