Estimate your costs based on your location and materials.
Yes! This plan can be customized—contact us for a free quote.
Yes! This plan can be customized—contact us for a free quote.
Optional Foundations are considered modifications so please send us a modification request if you would like a free quote. Thank you! PLEASE NOTE! Any options that are ordered such as RRR or 2x6 conversion will each take 4-7 business days to complete BEFORE the plans are sent. Materials Lists can take up to 14 business days to complete BEFORE plans are sent.
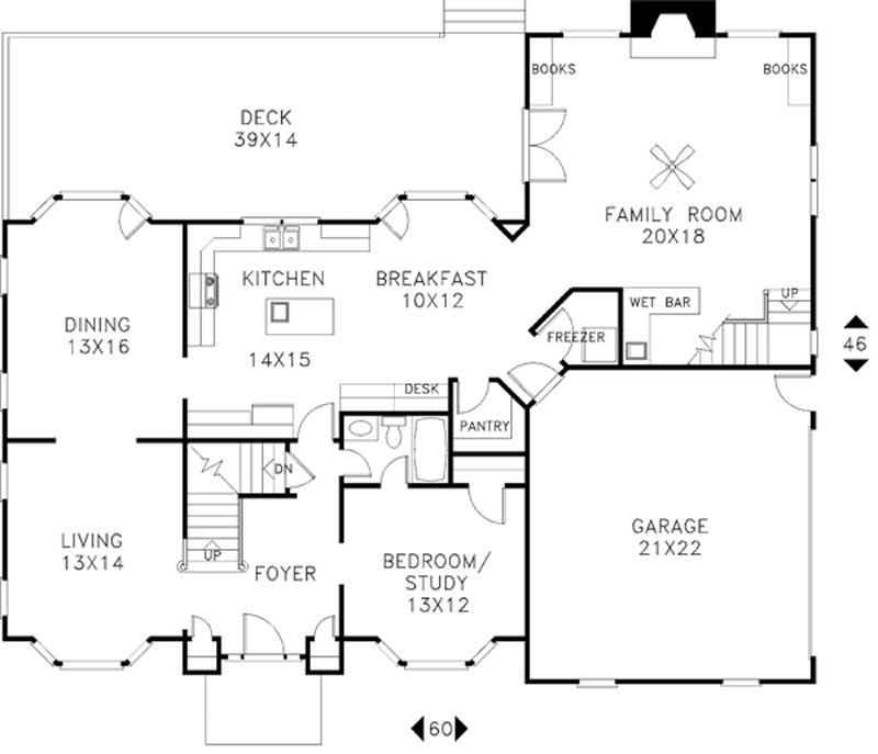
This 3,260 sq.ft. European stucco home features a dramatic two-story foyer with double coat closets. The convenient first floor bedroom with full bath can also be used as a study. The spacious kitchen and breakfast room area features a center island, built-in desk, walk-in pantry and separate freezer room. The large open family room has a fireplace, two built-in bookcases and an L-shaped wet bar. The 39'x14' deck is accessible from the family room as well as the dining and breakfast rooms. The upper level is accessible by front or back stairs. The master suite with trey ceiling features his...
Estimate your costs based on your location and materials.
All sales of house plans, modifications, and other products found on this site are final. No refunds or exchanges can be given once your order has begun the fulfillment process. Please see our Policies for additional information.
All plans offered on ThePlanCollection.com are designed to conform to the local building codes when and where the original plan was drawn.
The homes as shown in photographs and renderings may differ from the actual blueprints. For more detailed information, please review the floor plan images herein carefully.
Estimate your costs based on your location and materials.