4-Bedroom, 3944 Sq Ft European Plan with Main Floor Master

Color photograph of European home plan (ThePlanCollection: House Plan #198-1003)

Images/Plans copyrighted by designer. Photos may reflect homeowner modifications.

About House Plan #198-1003

Sq Ft
3944
Sq Ft
Bedrooms
4
Bedrooms
Bathroom
4
Baths
Half Baths
1
Half Baths
Bedrooms
3
Cars
Bedrooms
2
Stories
Bedrooms
88' 5'
Width
Bedrooms
72
Depth
Starting at$2495.00What's included
STEP 1Bedrooms
STEP 2Bedrooms
STEP 3Bedrooms

Subtotal:$0
Plan Collection

How much will it cost to build?

Estimate your costs based on your location and materials.

Free Cost Instant Estimator

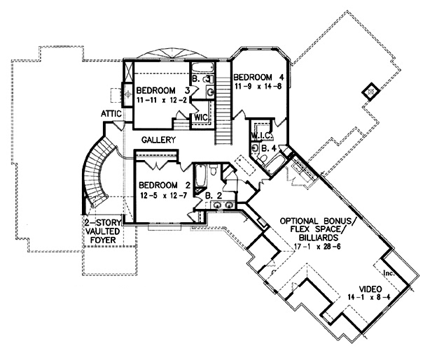
Floor Plans

Floor Plan Main Level
Floor Plan Main Level
Floor Plan Upper Level
Floor Plan Upper Level
Plan Collection

Can I modify this plan?

Yes! This plan can be customized—contact us for a free quote.

Additional Notes from Designer

NO Material lists.

House Plan Description

This lovely European style home plan with French influences (House Plan #198-1003) has 3944 square feet of living space. The 2 story floor plan includes 4 bedrooms.

Home Details

Summary
Plan #:198-1003
Starting at:$2495.00
Floors:2
Bedrooms:4
Full Baths:4
Half Baths:1
Garage:
Square Footage
Heated Area:3944 Sq. Ft.
First Floor:2875 Sq. Ft.
Second Floor:1069 Sq. Ft.
Unheated Area:
Bonus Room:685 Sq. Ft.
Dimensions
Width:88' 5''
Depth:72' 9''
Architectural Styles
Exterior Wall Material
BrickRock/Stone
Roofing Type
Gable
Roofing Material
Asphalt Shingles
Special Feature
FireplaceDining RoomHome OfficeMud RoomBonus RoomFamily RoomMain Level LaundryLibraryColor PhotosStorageVaulted CeilingsOpen Floor Plan
Garage Type
Attached GarageRear Entry
Fireplaces
Two Fireplaces
Kitchen Features
Kitchen IslandButler's PantryNook/Breakfast AreaPeninsula/Eating BarEat-In Kitchen
Porches and Exterior Features
Covered Front PorchCovered Rear Patio
Master Suite Features
Main Floor MasterTwo or More Master SuitesMaster BathroomWalk In ClosetSitting AreaSplit Master Bedroom

What’s Included

Most plan sets include the following:

icon text-secondary-400 includedExterior elevations

icon text-secondary-400 includedFoundation plan

icon text-secondary-400 includedDetailed floor plans

icon text-secondary-400 includedInterior details

icon text-secondary-400 includedRoof plan

icon text-secondary-400 includedCross-section details

icon text-secondary-400 includedElectrical layout

What’s Not Included

These items are  NOT included:

icon text-secondary-400 includedArchitectural or Engineering Stamp - handled locally if required.

icon text-secondary-400 includedSite Plan - handled locally when required.

icon text-secondary-400 includedMechanical Drawings (location of heating and air equipment and ductwork) - your subcontractors handle this.

icon text-secondary-400 includedPlumbing Drawings (drawings showing the actual plumbing pipe sizes and locations) - your subcontractors handle this.

icon text-secondary-400 includedEnergy calculations - handled locally when required.

Related House Plans

Plan Collection
Plan Collection
Plan Collection
Plan#161-1017
Starting at$3400
4587
Sq Ft
2
Story
4
Bed
4.5
Bath
4
Car
Plan Collection
Plan Collection
Plan Collection
Plan#180-1020
Starting at$1800
4304
Sq Ft
2
Story
4
Bed
4.5
Bath
3
Car
Plan Collection
Plan Collection
Plan Collection
Plan#142-1140
Starting at$1545
3360
Sq Ft
2
Story
4
Bed
4.5
Bath
3
Car
View All

Other Plans By This Designer

Plan Collection
Plan Collection
Plan Collection
Plan#198-1053
Starting at$2195
2498
Sq Ft
1.5
Story
3
Bed
3
Bath
3
Car
Plan Collection
Plan Collection
Plan Collection
Plan#198-1054
Starting at$2630
4376
Sq Ft
2
Story
4
Bed
4.5
Bath
3
Car
Plan Collection
Plan Collection
Plan Collection
Plan#198-1060
Starting at$1985
3970
Sq Ft
2
Story
5
Bed
4.5
Bath
2
Car