Estimate your costs based on your location and materials.
Yes! This plan can be customized—contact us for a free quote.
Yes! This plan can be customized—contact us for a free quote.
Optional Foundations are considered modifications so please send us a modification request if you would like a free quote. Thank you! PLEASE NOTE! Any options that are ordered such as RRR or 2x6 conversion will each take 4-7 business days to complete BEFORE the plans are sent. Materials Lists can take up to 14 business days to complete BEFORE plans are sent.
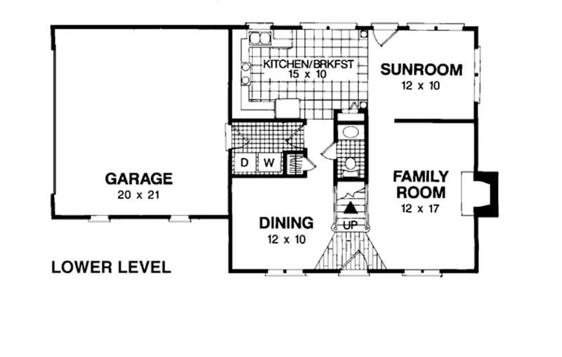
This attractive traditional plan features 1,595 square feet of living space. This distinctive layout welcomes friends and family into a comfortable 12'x17' family room accented by a brick fireplace. An unusual feature in a home this size is a bright and airy 12'x10' sunroom. Decorative columns provide a visual break between the large open 15'x10' kitchen and breakfast area and the sunroom. The 12'x10' dining room is conveniently placed for more formal entertaining. Completing the lower level are a powder room and roomy laundry room.
Estimate your costs based on your location and materials.
All sales of house plans, modifications, and other products found on this site are final. No refunds or exchanges can be given once your order has begun the fulfillment process. Please see our Policies for additional information.
All plans offered on ThePlanCollection.com are designed to conform to the local building codes when and where the original plan was drawn.
The homes as shown in photographs and renderings may differ from the actual blueprints. For more detailed information, please review the floor plan images herein carefully.
Estimate your costs based on your location and materials.