3-Bedroom, 1675 Sq Ft Country Plan with Wraparound Porch

Front elevation of Country home (ThePlanCollection: House Plan #178-1079)

Images/Plans copyrighted by designer. Photos may reflect homeowner modifications.

About House Plan #178-1079

Sq Ft
1675
Sq Ft
Bedrooms
3
Bedrooms
Bathroom
2
Baths
Half Baths
1
Half Baths
Bedrooms
2
Cars
Bedrooms
2
Stories
Bedrooms
80' 0'
Width
Bedrooms
51
Depth
Starting at$985.00What's included
STEP 1Bedrooms
STEP 2Bedrooms
STEP 3Bedrooms

Subtotal:$0
Plan Collection

How much will it cost to build?

Estimate your costs based on your location and materials.

Free Cost Instant Estimator

Floor Plans

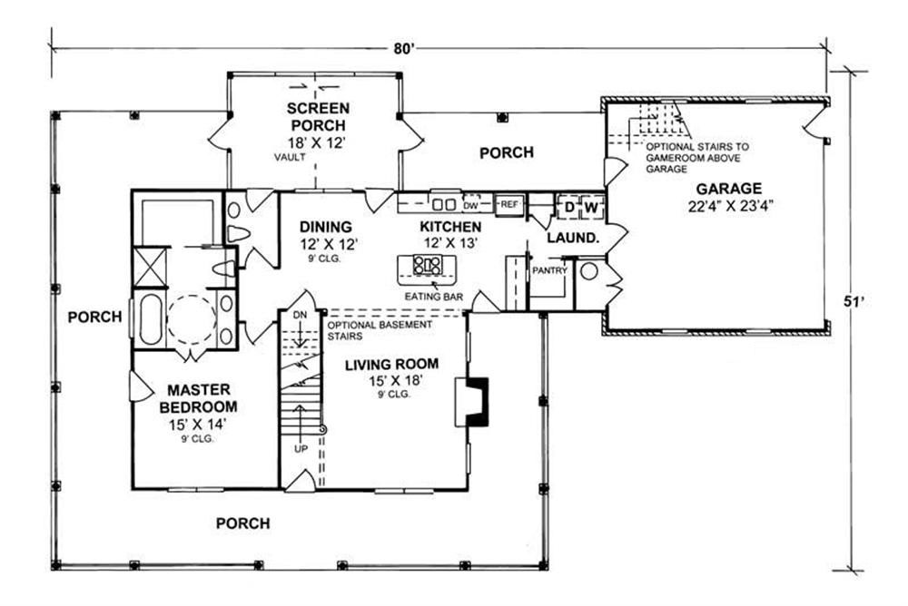
First Story
First Story
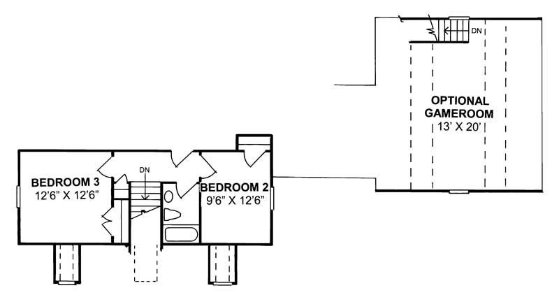
Upper Level Floor Plan
Upper Level Floor Plan
Plan Collection

Can I modify this plan?

Yes! This plan can be customized—contact us for a free quote.

Additional Notes from Designer

Please Note: This plan comes standard with a Construction License that gives the original purchaser the right to build the plan as many times as you like.

House Plan Description

This classic country style house plan boasts a large wrap around porch, side entry garage, open floor plan and an additional screened porch. You'll enjoy lazy summers on the shaded porch from all sides of the home, and enjoy the convenience of a main level master bedroom. Porch Dimensions: - 8' deep all the way around - front of house is 35' wide - right front 18'6 - right side 31' - left rear around 8' - behind kitchen is 21' Approximate total porch SF is 1117.

Home Details

Summary
Plan #:178-1079
Starting at:$985.00
Floors:2
Bedrooms:3
Full Baths:2
Half Baths:1
Garage:
Square Footage
Heated Area:1675 Sq. Ft.
First Floor:1241 Sq. Ft.
Second Floor:434 Sq. Ft.
Unheated Area:
Dimensions
Architectural Styles
Exterior Wall Material
Vinyl Siding
Roofing Type
Gable
Ceiling Height
9 Foot Ceiling
Special Feature
FireplaceBonus RoomMain Level LaundryOpen Floor Plan
Garage Type
Attached GarageSide Entry
Fireplaces
One Fireplace
Kitchen Features
Kitchen IslandWalk-in Pantry
Porches and Exterior Features
Wrap Around PorchCovered Front PorchCovered Rear PorchScreened Porch/Sunroom
Master Suite Features
Main Floor MasterMaster BathroomWalk In Closet

What’s Included

Most plan sets include the following:

icon text-secondary-400 includedFront elevation and construction notes

icon text-secondary-400 includedRear and side elevations

icon text-secondary-400 includedFloor plan, including electrical, window and door sizes, floor joist span directions, and ceiling type notes (9’ ceiling, vault, etc)

icon text-secondary-400 includedSecond-floor plan (if applicable) with the same info as shown on first-floor plan

icon text-secondary-400 includedTypical wall section

icon text-secondary-400 includedTypical foundation details

icon text-secondary-400 includedRoof plan showing roof pitches, ridges & valleys.

icon text-secondary-400 includedFoundation plan

What’s Not Included

These items are  NOT included:

icon text-secondary-400 includedArchitectural or Engineering Stamp - handled locally if required.

icon text-secondary-400 includedSite Plan - handled locally when required.

icon text-secondary-400 includedMechanical Drawings (location of heating and air equipment and duct work) - your subcontractors handle this.

icon text-secondary-400 includedPlumbing Drawings (drawings showing the actual plumbing pipe sizes and locations) - your subcontractors handle this.

icon text-secondary-400 includedEnergy calculations - handled locally when required.

Related House Plans

Plan Collection
Plan Collection
Plan Collection
Plan#109-1029
Starting at$1195
1334
Sq Ft
2
Story
3
Bed
2.5
Bath
0
Car
Plan Collection
Plan Collection
Plan Collection
Plan#169-1146
Starting at$720
1664
Sq Ft
2
Story
3
Bed
2.5
Bath
2
Car
Plan Collection
Plan Collection
Plan Collection
Plan#116-1007
Starting at$0
1586
Sq Ft
2
Story
3
Bed
2.5
Bath
0
Car
View All

Other Plans By This Designer

Plan Collection
Plan Collection
Plan Collection
Plan#178-1345
Starting at$680
395
Sq Ft
1
Story
1
Bed
1
Bath
0
Car
Plan Collection
Plan Collection
Plan Collection
Plan#178-1248
Starting at$945
1277
Sq Ft
1
Story
3
Bed
2
Bath
0
Car
Plan Collection
Plan Collection
Plan Collection
Plan#178-1393
Starting at$965
1558
Sq Ft
1
Story
3
Bed
2
Bath
0
Car