5-Bedroom, 6780 Sq Ft Luxury Plan with Main Floor Master

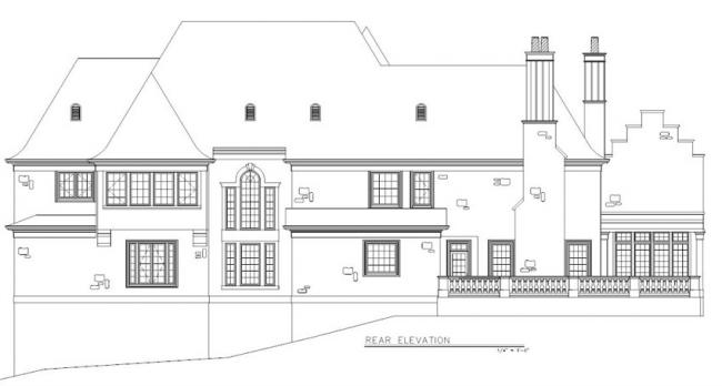
Front elevation of Luxury home (ThePlanCollection: House Plan #106-1318)

Images/Plans copyrighted by designer. Photos may reflect homeowner modifications.

About House Plan #106-1318

Sq Ft
6780
Sq Ft
Bedrooms
5
Bedrooms
Bathroom
5
Baths
Half Baths
2
Half Baths
Bedrooms
4
Cars
Bedrooms
2
Stories
Bedrooms
102' 0'
Width
Bedrooms
50
Depth
Starting at$3295.00What's included
STEP 1Bedrooms
STEP 2Bedrooms
STEP 3Bedrooms

Subtotal:$0
Plan Collection

How much will it cost to build?

Estimate your costs based on your location and materials.

Free Cost Instant Estimator

Floor Plans

Floor Plan Main Level
Floor Plan Main Level
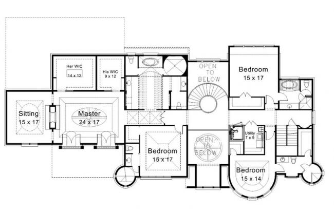
Floor Plan Upper Level
Floor Plan Upper Level
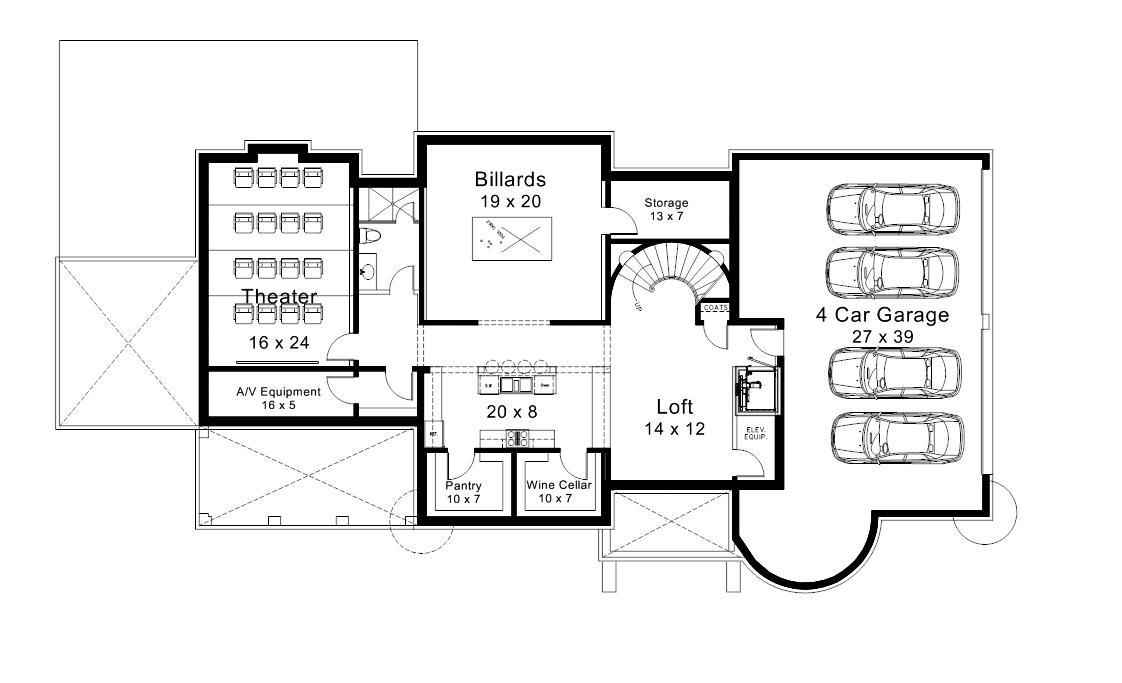
Floor Plan Basement
Floor Plan Basement
Plan Collection

Can I modify this plan?

Yes! This plan can be customized—contact us for a free quote.

Additional Notes from Designer

The plans by this designer do NOT include framing. PLEASE NOTE: An Unlimited Use License is available for purchase through the designer BUT YOU MUST purchase a CAD package!

House Plan Description

This lovely Luxury style home with European influences (House Plan #106-1318) has 6780 square feet of living space. The 2 story floor plan includes 5 bedrooms.

Home Details

Summary
Plan #:106-1318
Starting at:$3295.00
Floors:2
Bedrooms:5
Full Baths:5
Half Baths:2
Garage:
Square Footage
Heated Area:6780 Sq. Ft.
First Floor:3627 Sq. Ft.
Second Floor:3153 Sq. Ft.
Unheated Area:
Basement:2017 Sq. Ft.
Dimensions
Architectural Styles
Exterior Wall Material
BrickStucco
Roofing Material
Asphalt Shingles
Ceiling Height
10 Foot Ceiling9 Foot Ceiling
Special Feature
FireplaceDining RoomMain Level LaundryLibraryHome TheaterLoftSplit BathroomStorageWine CellarOpen Floor Plan
Garage Type
Attached Garage
Fireplaces
Four Fireplaces
Kitchen Features
Kitchen IslandWalk-in PantrySecondary Kitchen
Porches and Exterior Features
Covered Front PorchSundeck
Master Suite Features
Fireplace in MasterMaster BathroomWalk In ClosetSitting AreaSecond Floor Master

What’s Included

Most plan sets include the following:

icon text-secondary-400 includedFoundation Plan

icon text-secondary-400 includedFloor plans

icon text-secondary-400 includedElectrical layout

icon text-secondary-400 includedExterior elevations

icon text-secondary-400 includedCross-section

icon text-secondary-400 includedTypical Call detail

icon text-secondary-400 includedTypical footing detail

icon text-secondary-400 includedMiscellaneous details

icon text-secondary-400 includedWindow/Door sizes

icon text-secondary-400 includedRoof plan

What’s Not Included

These items are  NOT included:

icon text-secondary-400 includedFraming.

icon text-secondary-400 includedArchitectural or Engineering Stamp - handled locally if required.

icon text-secondary-400 includedSite Plan - handled locally when required.

icon text-secondary-400 includedMechanical Drawings (location of heating and air equipment and ductwork) - your subcontractors handle this.

icon text-secondary-400 includedPlumbing Drawings (drawings showing the actual plumbing pipe sizes and locations) - your subcontractors handle this.

icon text-secondary-400 includedEnergy calculations - handled locally when required.

Related House Plans

Plan Collection
Plan Collection
Plan Collection
Plan#116-1106
Starting at$0
5165
Sq Ft
2
Story
5
Bed
5.5
Bath
3
Car
Plan Collection
Plan Collection
Plan Collection
Plan#161-1077
Starting at$4500
6563
Sq Ft
2
Story
5
Bed
5.5
Bath
5
Car
Plan Collection
Plan Collection
Plan Collection
Plan#161-1048
Starting at$2950
6495
Sq Ft
2
Story
5
Bed
5.5
Bath
3
Car
View All

Other Plans By This Designer

Plan Collection
Plan Collection
Plan Collection
Plan#106-1325
Starting at$4095
8628
Sq Ft
2
Story
7
Bed
7.5
Bath
5
Car
Plan Collection
Plan Collection
Plan Collection
Plan#106-1315
Starting at$1695
2830
Sq Ft
1
Story
3
Bed
2.5
Bath
3
Car
Plan Collection
Plan Collection
Plan Collection
Plan#106-1206
Starting at$4095
8210
Sq Ft
2
Story
6
Bed
6.5
Bath
4
Car