5-Bedroom, 6963 Sq Ft Rustic Plan with Peninsula/Eating Bar

Front elevation of Rustic home (ThePlanCollection: House Plan #161-1028)

Images/Plans copyrighted by designer. Photos may reflect homeowner modifications.

About House Plan #161-1028

Sq Ft
6963
Sq Ft
Bedrooms
5
Bedrooms
Bathroom
5
Baths
Half Baths
1
Half Baths
Bedrooms
4
Cars
Bedrooms
2
Stories
Bedrooms
85' 6'
Width
Bedrooms
100
Depth
Starting at$3850.00What's included
STEP 1Bedrooms
STEP 2Bedrooms
STEP 3Bedrooms

Subtotal:$0
Plan Collection

How much will it cost to build?

Estimate your costs based on your location and materials.

Free Cost Instant Estimator

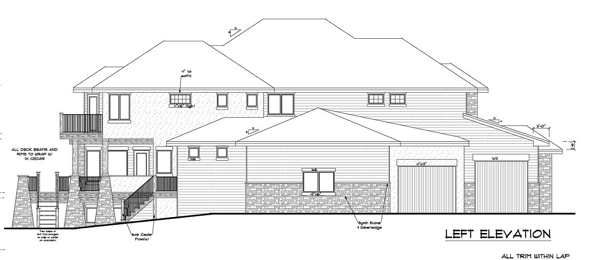
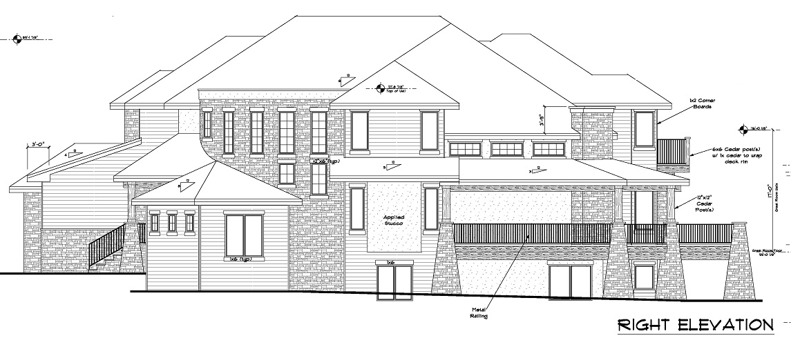
Floor Plans

Floor Plan Basement
Floor Plan Basement
Floor Plan First Story
Floor Plan First Story
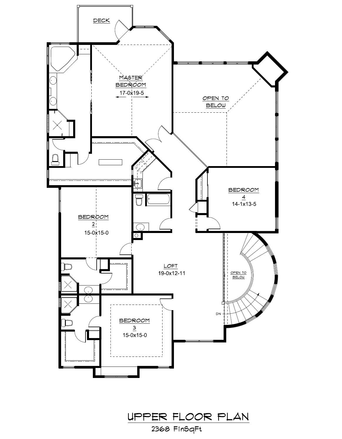
Floor Plan Second Story
Floor Plan Second Story
Plan Collection

Can I modify this plan?

Yes! This plan can be customized—contact us for a free quote.

Additional Notes from Designer

PLEASE NOTE! This designer's plans do NOT come with framing!

House Plan Description

This is a wonderful set of rustic Colorado Mountain House Plans that is intent on providing you and your family with every luxurious amenity possible. It accomplishes this and it does so with the utmost style and curb appeal.

Home Details

Summary
Plan #:161-1028
Starting at:$3850.00
Floors:2
Bedrooms:5
Full Baths:5
Half Baths:1
Garage:
Square Footage
Heated Area:6963 Sq. Ft.
First Floor:2604 Sq. Ft.
Second Floor:2368 Sq. Ft.
Unheated Area:
Basement:1991 Sq. Ft.
Dimensions
Width:85' 6''
Ridge Height:36-4' 0''
Architectural Styles
Exterior Wall Material
StuccoRock/Stone
Roofing Type
Hip
Roofing Material
Asphalt Shingles
Special Feature
Mother in law apartmentFireplaceDining RoomGuest RoomHome OfficeMud RoomGame RoomMain Level LaundryColor PhotosSplit BathroomStorageDenVaulted CeilingsBalconyExercise Room
Garage Type
Attached GarageCourtyard Entry
Exterior Wall Framing
2x4
Building Lot Type
Flat Site
Kitchen Features
Kitchen IslandNook/Breakfast AreaPeninsula/Eating BarEat-In Kitchen
Porches and Exterior Features
Covered Front PorchCovered Rear PorchSundeckScreened Porch/Sunroom
Master Suite Features
Master BathroomWalk In ClosetSitting AreaPrivate DeckSecond Floor Master

What’s Included

Most plan sets include the following:

icon text-secondary-400 includedExterior elevations

icon text-secondary-400 includedMain Floor plan

icon text-secondary-400 includedArchitectural’ Foundation Plan

icon text-secondary-400 includedArchitectural’ Roof Plan

icon text-secondary-400 includedSections

icon text-secondary-400 includedMain Floor Electrical Plan

icon text-secondary-400 includedNo Framing

What’s Not Included

These items are  NOT included:

icon text-secondary-400 includedArchitectural or Engineering Stamp - handled locally if required.

icon text-secondary-400 includedSite Plan - handled locally when required.

icon text-secondary-400 includedPlumbing Drawings (drawings showing the actual plumbing pipe sizes and locations) - your subcontractors handle this.

icon text-secondary-400 includedEnergy calculations - handled locally when required.

Related House Plans

Plan Collection
Plan Collection
Plan Collection
Plan#161-1077
Starting at$4500
6563
Sq Ft
2
Story
5
Bed
5.5
Bath
5
Car
Plan Collection
Plan Collection
Plan Collection
Plan#161-1048
Starting at$2950
6495
Sq Ft
2
Story
5
Bed
5.5
Bath
3
Car
Plan Collection
Plan Collection
Plan Collection
Plan#190-1014
Starting at$3150
6462
Sq Ft
2
Story
5
Bed
5.5
Bath
4
Car
View All

Other Plans By This Designer

Plan Collection
Plan Collection
Plan Collection
Plan#161-1145
Starting at$2650
3907
Sq Ft
2
Story
4
Bed
3.5
Bath
3
Car
Plan Collection
Plan Collection
Plan Collection
Plan#161-1077
Starting at$4500
6563
Sq Ft
2
Story
5
Bed
5.5
Bath
5
Car
Plan Collection
Plan Collection
Plan Collection
Plan#161-1084
Starting at$4200
5170
Sq Ft
2
Story
5
Bed
5.5
Bath
3
Car