6-Bedroom, 6072 Sq Ft French Plan with Covered Rear Porch

Front elevation of French home (ThePlanCollection: House Plan #106-1277)

Images/Plans copyrighted by designer. Photos may reflect homeowner modifications.

About House Plan #106-1277

Sq Ft
6092
Sq Ft
Bedrooms
6
Bedrooms
Bathroom
6
Baths
Half Baths
1
Half Baths
Bedrooms
4
Cars
Bedrooms
2
Stories
Bedrooms
76' 0'
Width
Bedrooms
88
Depth
Starting at$3295.00What's included
STEP 1Bedrooms
STEP 2Bedrooms
STEP 3Bedrooms

Subtotal:$0
Plan Collection

How much will it cost to build?

Estimate your costs based on your location and materials.

Free Cost Instant Estimator

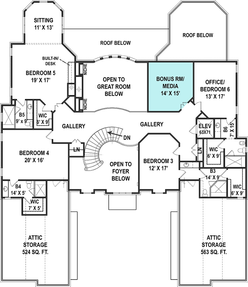
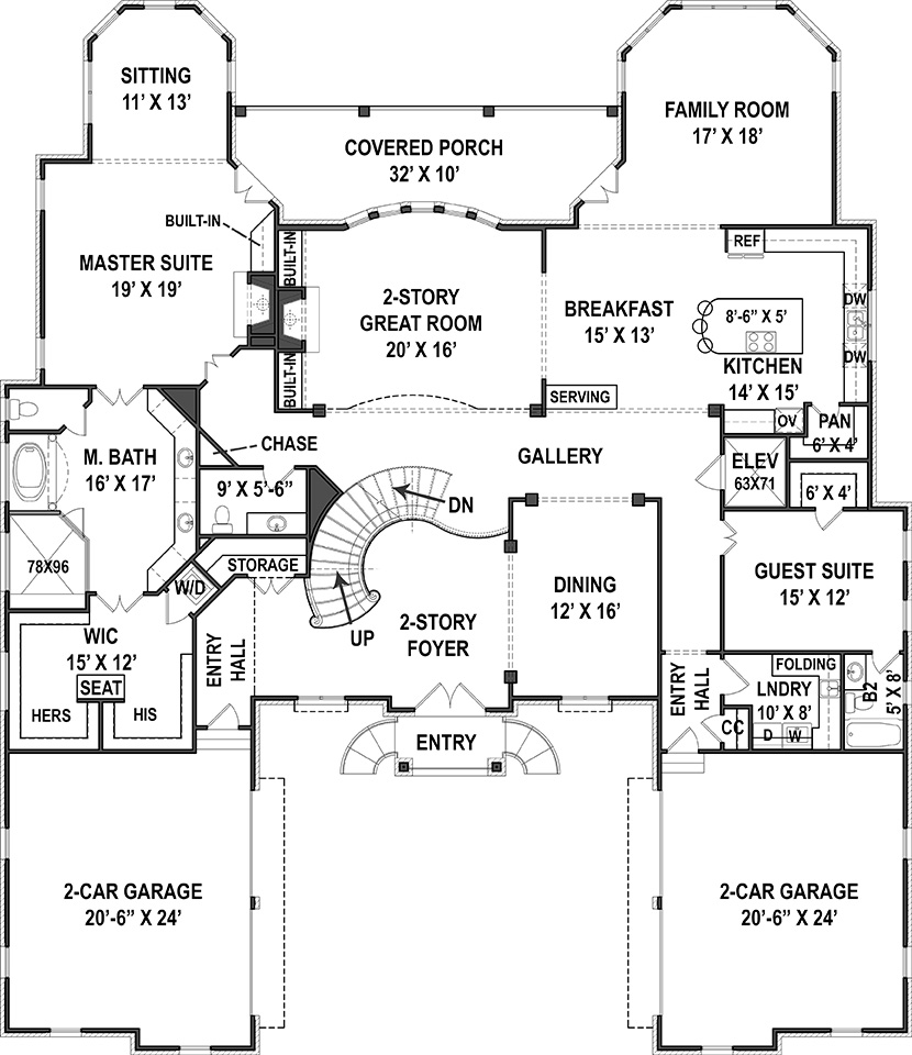
Floor Plans

Floor Plan Main Level
Floor Plan Main Level
Floor Plan Upper Level
Floor Plan Upper Level
Floor Plan Basement
Floor Plan Basement
Plan Collection

Can I modify this plan?

Yes! This plan can be customized—contact us for a free quote.

Additional Notes from Designer

The plans by this designer do NOT include framing. PLEASE NOTE: An Unlimited Use License is available for purchase through the designer BUT YOU MUST purchase a CAD package!

House Plan Description

Beautiful 2 storey French, European style castle.

Home Details

Summary
Plan #:106-1277
Starting at:$3295.00
Floors:2
Bedrooms:6
Full Baths:6
Half Baths:1
Garage:
Square Footage
Heated Area:6092 Sq. Ft.
First Floor:3713 Sq. Ft.
Second Floor:2379 Sq. Ft.
Unheated Area:
Basement:3582 Sq. Ft.
Bonus Room:210 Sq. Ft.
Garage:1028 Sq. Ft.
Porch:339 Sq. Ft.
Dimensions
Architectural Styles
Exterior Wall Material
BrickRock/Stone
Roofing Type
Hip
Roofing Material
Asphalt Shingles
Roof Pitch
7/128/1214/12
Ceiling Height
10 Foot Ceiling9 Foot Ceiling
Special Feature
Mother in law apartmentIn Home GymDining RoomGuest RoomHome OfficeFamily RoomMain Level LaundryLibraryMedia RoomStorageDenElevator
Garage Type
Attached GarageCourtyard Entry
Exterior Wall Framing
2x4
Kitchen Features
Kitchen IslandNook/Breakfast AreaWalk-in PantryPeninsula/Eating BarEat-In Kitchen
Porches and Exterior Features
Covered Rear PorchPatioCovered Rear Patio
Master Suite Features
Main Floor MasterMaster BathroomWalk In ClosetSitting AreaSplit Master Bedroom

What’s Included

Most plan sets include the following:

icon text-secondary-400 includedFoundation Plan

icon text-secondary-400 includedFloor plans

icon text-secondary-400 includedElectrical layout

icon text-secondary-400 includedExterior elevations

icon text-secondary-400 includedCross-section

icon text-secondary-400 includedTypical Call detail

icon text-secondary-400 includedTypical footing detail

icon text-secondary-400 includedMiscellaneous details

icon text-secondary-400 includedWindow/Door sizes

icon text-secondary-400 includedRoof plan

What’s Not Included

These items are  NOT included:

icon text-secondary-400 includedFraming.

icon text-secondary-400 includedArchitectural or Engineering Stamp - handled locally if required.

icon text-secondary-400 includedSite Plan - handled locally when required.

icon text-secondary-400 includedMechanical Drawings (location of heating and air equipment and ductwork) - your subcontractors handle this.

icon text-secondary-400 includedPlumbing Drawings (drawings showing the actual plumbing pipe sizes and locations) - your subcontractors handle this.

icon text-secondary-400 includedEnergy calculations - handled locally when required.

Related House Plans

Plan Collection
Plan Collection
Plan Collection
Plan#153-1945
Starting at$2650
6004
Sq Ft
2
Story
6
Bed
6
Bath
4
Car
Plan Collection
Plan Collection
Plan Collection
Plan#153-1716
Starting at$2850
6696
Sq Ft
2
Story
6
Bed
6.5
Bath
3
Car
Plan Collection
Plan Collection
Plan Collection
Plan#175-1098
Starting at$4000
7592
Sq Ft
2
Story
6
Bed
6.5
Bath
3
Car
View All

Other Plans By This Designer

Plan Collection
Plan Collection
Plan Collection
Plan#106-1325
Starting at$4095
8628
Sq Ft
2
Story
7
Bed
7.5
Bath
5
Car
Plan Collection
Plan Collection
Plan Collection
Plan#106-1315
Starting at$1695
2830
Sq Ft
1
Story
3
Bed
2.5
Bath
3
Car
Plan Collection
Plan Collection
Plan Collection
Plan#106-1206
Starting at$4095
8210
Sq Ft
2
Story
6
Bed
6.5
Bath
4
Car