6-Bedroom, 5421 Sq Ft European Plan with Covered Lanai

Luxury House Plans VH-TS5421 color rendering.

Images/Plans copyrighted by designer. Photos may reflect homeowner modifications.

About House Plan #135-1235

Sq Ft
5421
Sq Ft
Bedrooms
6
Bedrooms
Bathroom
6
Baths
Half Baths
0
Half Baths
Bedrooms
4
Cars
Bedrooms
2
Stories
Bedrooms
134' 5'
Width
Bedrooms
98
Depth
Starting at$6776.25What's included
STEP 1Bedrooms
STEP 2Bedrooms
STEP 3Bedrooms

Subtotal:$0
Plan Collection

How much will it cost to build?

Estimate your costs based on your location and materials.

Free Cost Instant Estimator

Floor Plans

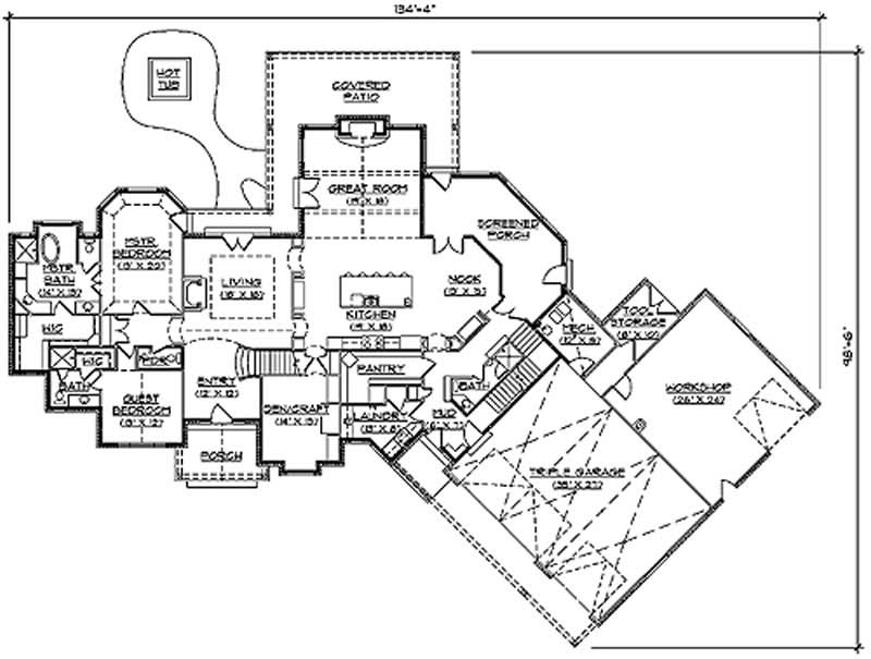
FIRST FLOOR PLAN
FIRST FLOOR PLAN
SECOND FLOOR PLAN
SECOND FLOOR PLAN
Plan Collection

Can I modify this plan?

Yes! This plan can be customized—contact us for a free quote.

House Plan Description

Luxury Houseplans VH-TS5421 have the ultimate rustic European appearance. The floor plan includes a main level master suite, lots of storage space, and plenty of living and dining areas. The upper floor plan can be used as the entertainment retreat, with plenty of room for games and movies.

Home Details

Summary
Plan #:135-1235
Starting at:$6776.25
Floors:2
Bedrooms:6
Full Baths:6
Half Baths:0
Garage:
Square Footage
Heated Area:5421 Sq. Ft.
First Floor:3322 Sq. Ft.
Second Floor:2099 Sq. Ft.
Unheated Area:
Dimensions
Width:134' 5''
Depth:98' 6''
Architectural Styles
Exterior Wall Material
Rock/StoneWood Siding
Special Feature
Guest RoomBonus RoomGame RoomMain Level LaundryMedia RoomStorageDenWorkshop
Garage Type
Attached GarageCourtyard Entry
Kitchen Features
Kitchen IslandNook/Breakfast AreaWalk-in Pantry
Porches and Exterior Features
CourtyardCovered Front PorchCovered Rear PorchScreened Porch/Sunroom
Master Suite Features
Main Floor MasterMaster Bathroom

What’s Included

Most plan sets include the following:

icon text-secondary-400 includedCover

icon text-secondary-400 includedGeneral notes

icon text-secondary-400 includedFoundation/Footing plan

icon text-secondary-400 includedBasement plan

icon text-secondary-400 includedFloor framing plan

icon text-secondary-400 includedMain level plan

icon text-secondary-400 includedUpper-level floor framing (if applicable)

icon text-secondary-400 includedUpper floor plan (if applicable)

icon text-secondary-400 includedRoof framing plan

icon text-secondary-400 includedBuilding sections/details

icon text-secondary-400 includedElectrical layout

What’s Not Included

These items are  NOT included:

icon text-secondary-400 includedArchitectural or Engineering Stamp - handled locally if required.

icon text-secondary-400 includedSite Plan - handled locally when required.

icon text-secondary-400 includedMechanical Drawings (location of heating and air equipment and ductwork) - your subcontractors handle this.

icon text-secondary-400 includedPlumbing Drawings (drawings showing the actual plumbing pipe sizes and locations) - your subcontractors handle this.

icon text-secondary-400 includedEnergy calculations - handled locally when required.

Related House Plans

Plan Collection
Plan Collection
Plan Collection
Plan#153-1945
Starting at$2650
6004
Sq Ft
2
Story
6
Bed
6
Bath
4
Car
Plan Collection
Plan Collection
Plan Collection
Plan#153-1716
Starting at$2850
6696
Sq Ft
2
Story
6
Bed
6.5
Bath
3
Car
Plan Collection
Plan Collection
Plan Collection
Plan#127-1045
Starting at$4000
6140
Sq Ft
2
Story
6
Bed
6.5
Bath
2
Car
View All

Other Plans By This Designer

Plan Collection
Plan Collection
Plan Collection
Plan#135-1015
Starting at$0
5022
Sq Ft
2
Story
5
Bed
5
Bath
4
Car
Plan Collection
Plan Collection
Plan Collection
Plan#135-1081
Starting at$1725
2759
Sq Ft
1
Story
5
Bed
3.5
Bath
3
Car
Plan Collection
Plan Collection
Plan Collection
Plan#135-1018
Starting at$0
3102
Sq Ft
1
Story
5
Bed
3.5
Bath
3
Car