4-Bedroom, 6092 Sq Ft Luxury Plan with Covered Rear Porch

This is a computerized rendering for these Tuscan House Plans.

Images/Plans copyrighted by designer. Photos may reflect homeowner modifications.

About House Plan #161-1043

Sq Ft
6092
Sq Ft
Bedrooms
4
Bedrooms
Bathroom
4
Baths
Half Baths
2
Half Baths
Bedrooms
3
Cars
Bedrooms
1
Stories
Bedrooms
95' 6'
Width
Bedrooms
97
Depth
Starting at$2200.00What's included
STEP 1Bedrooms
STEP 2Bedrooms
STEP 3Bedrooms

Subtotal:$0
Plan Collection

How much will it cost to build?

Estimate your costs based on your location and materials.

Free Cost Instant Estimator

Floor Plans

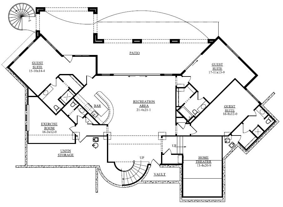
Floor Plan Basement
Floor Plan Basement
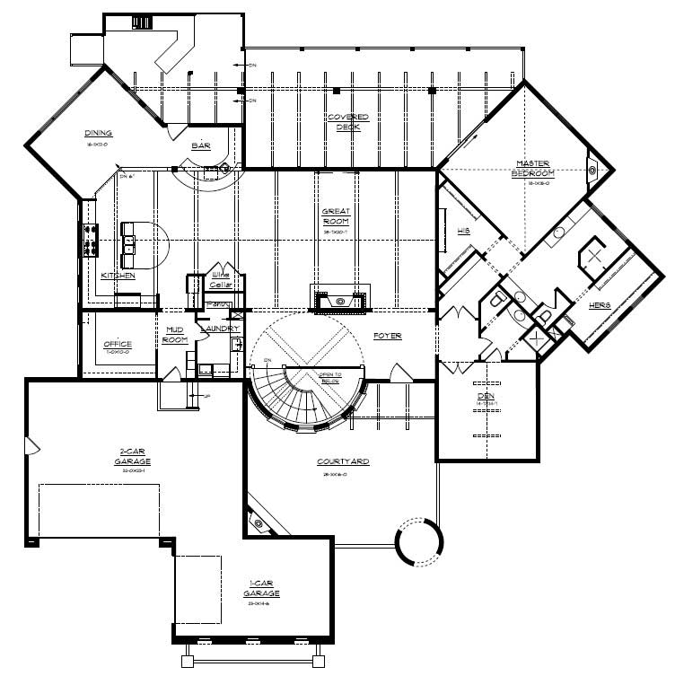
Floor Plan First Story
Floor Plan First Story
Plan Collection

Can I modify this plan?

Yes! This plan can be customized—contact us for a free quote.

Additional Notes from Designer

PLEASE NOTE! This designer's plans do NOT come with framing!

House Plan Description

This lovely Luxury style home with Mediterranean influences (House Plan #161-1043) has 6092 square feet of living space. The 1 story floor plan includes 4 bedrooms.

Home Details

Summary
Plan #:161-1043
Starting at:$2200.00
Floors:1
Bedrooms:4
Full Baths:4
Half Baths:2
Garage:
Square Footage
Heated Area:6092 Sq. Ft.
First Floor:3275 Sq. Ft.
Unheated Area:
Basement:2817 Sq. Ft.
Bonus Room:458 Sq. Ft.
Garage:1151 Sq. Ft.
Dimensions
Width:95' 6''
Depth:97' 9''
Ridge Height:24' 0''
Architectural Styles
Exterior Wall Material
StuccoRock/Stone
Roofing Type
GableHip
Roofing Material
Tiles
Roof Pitch
3/125/12
Ceiling Height
10 Foot Ceiling
Special Feature
Mother in law apartmentFireplaceDining RoomGuest RoomHome OfficeMud RoomGame RoomMain Level LaundryHome TheaterStorageDenVaulted CeilingsWine CellarExercise Room
Garage Type
Attached GarageCourtyard EntryFront Entry
Exterior Wall Framing
2x6
Kitchen Features
Kitchen IslandWalk-in PantryOutdoor KitchenPeninsula/Eating BarEat-In Kitchen
Porches and Exterior Features
CourtyardCovered Rear PorchPatio
Master Suite Features
Main Floor MasterFireplace in MasterMaster BathroomWalk In Closet

What’s Included

Most plan sets include the following:

icon text-secondary-400 includedExterior elevations

icon text-secondary-400 includedMain Floor plan

icon text-secondary-400 includedArchitectural’ Foundation Plan

icon text-secondary-400 includedArchitectural’ Roof Plan

icon text-secondary-400 includedSections

icon text-secondary-400 includedMain Floor Electrical Plan

icon text-secondary-400 includedNo Framing

What’s Not Included

These items are  NOT included:

icon text-secondary-400 includedArchitectural or Engineering Stamp - handled locally if required.

icon text-secondary-400 includedSite Plan - handled locally when required.

icon text-secondary-400 includedPlumbing Drawings (drawings showing the actual plumbing pipe sizes and locations) - your subcontractors handle this.

icon text-secondary-400 includedEnergy calculations - handled locally when required.

Related House Plans

Plan Collection
Plan Collection
Plan Collection
Plan#175-1131
Starting at$3000
4817
Sq Ft
1
Story
4
Bed
4.5
Bath
4
Car
Plan Collection
Plan Collection
Plan Collection
Plan#161-1058
Starting at$3400
4609
Sq Ft
1
Story
4
Bed
4.5
Bath
3
Car
Plan Collection
Plan Collection
Plan Collection
Plan#108-1601
Starting at$1750
4901
Sq Ft
1
Story
4
Bed
4.5
Bath
3
Car
View All

Other Plans By This Designer

Plan Collection
Plan Collection
Plan Collection
Plan#161-1145
Starting at$2650
3907
Sq Ft
2
Story
4
Bed
3.5
Bath
3
Car
Plan Collection
Plan Collection
Plan Collection
Plan#161-1077
Starting at$4500
6563
Sq Ft
2
Story
5
Bed
5.5
Bath
5
Car
Plan Collection
Plan Collection
Plan Collection
Plan#161-1084
Starting at$4200
5170
Sq Ft
2
Story
5
Bed
5.5
Bath
3
Car