Estimate your costs based on your location and materials.
Yes! This plan can be customized—contact us for a free quote.
Yes! This plan can be customized—contact us for a free quote.
The CAD File formats are drawn in SoftPlan. PLEASE NOTE: Plans by this designer do NOT come with FRAMING! This designer does not do ICF.
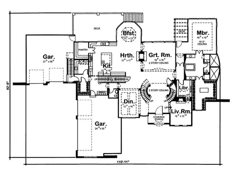
The #100-1113 home plans are extensive luxury, European, two story house plans with 5671 total living square feet. If you are someone that loves luxurious commodities while still having a functional floor plan layout, you will definitely love this plan! The main floor of this house plan is where the master bedroom and bath are as well as the library, living room, great room, breakfast and kitchen area, and the dining room. The stairs leading up to the second floor spiral up on either side of the entry way, providing anyone who enters your beautiful home the view they all wish they had. The...
Estimate your costs based on your location and materials.
All sales of house plans, modifications, and other products found on this site are final. No refunds or exchanges can be given once your order has begun the fulfillment process. Please see our Policies for additional information.
All plans offered on ThePlanCollection.com are designed to conform to the local building codes when and where the original plan was drawn.
The homes as shown in photographs and renderings may differ from the actual blueprints. For more detailed information, please review the floor plan images herein carefully.
Estimate your costs based on your location and materials.