5-Bedroom, 5636 Sq Ft Contemporary Plan with Sun Room

Front elevation of Contemporary home (ThePlanCollection: House Plan #161-1218)

Images/Plans copyrighted by designer. Photos may reflect homeowner modifications.

About House Plan #161-1218

Sq Ft
5636
Sq Ft
Bedrooms
5
Bedrooms
Bathroom
4
Baths
Half Baths
1
Half Baths
Bedrooms
4
Cars
Bedrooms
2
Stories
Bedrooms
118' 3'
Width
Bedrooms
82
Depth
Starting at$4200.00What's included
STEP 1Bedrooms
STEP 2Bedrooms
STEP 3Bedrooms

Subtotal:$0
Plan Collection

How much will it cost to build?

Estimate your costs based on your location and materials.

Free Cost Instant Estimator

Floor Plans

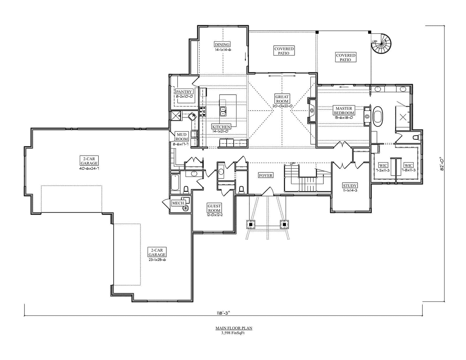
Main Level
Main Level
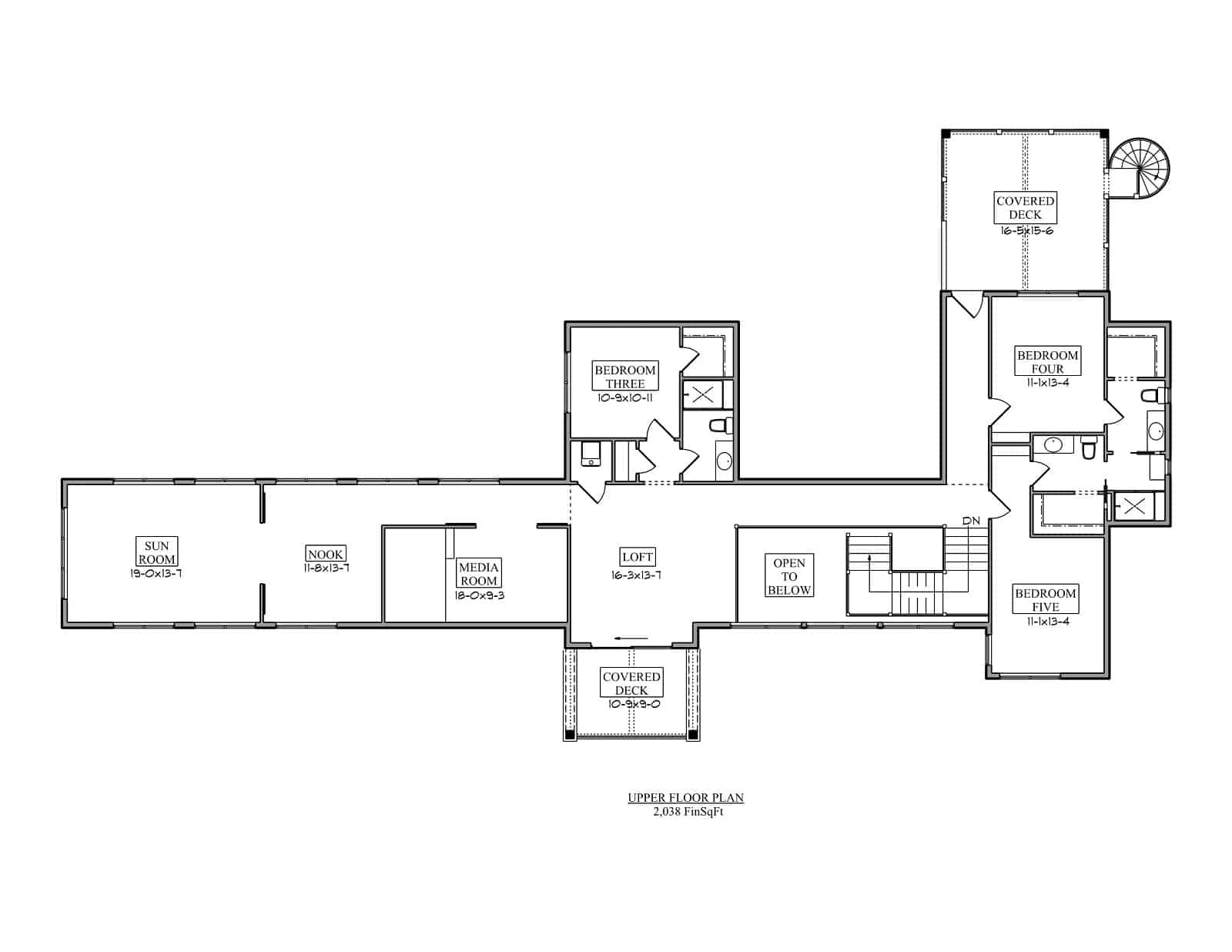
Upper Level
Upper Level
Plan Collection

Can I modify this plan?

Yes! This plan can be customized—contact us for a free quote.

Additional Notes from Designer

PLEASE NOTE! This designer's plans do NOT come with framing!

Note 1: Alternative foundations for this plan may be available as a modification. Please complete and submit our "Modify this Plan" form to get a free quote.

Note 3: Porch sq ft figures may include any deck sq ft as well.

House Plan Description

This luxurious home boasts a spacious 5,636 square feet, featuring 5 bedrooms (including 1 guest room), 4.5 baths, and a 4-car garage. The unique Contemporary design offers a stunning, modern look, with various amenities and features that make it truly one-of-a-kind.

One of the first things you'll notice as you enter the home is the convenient mudroom, the perfect space for removing shoes and hanging up coats. Adjacent to the mudroom is the study room, providing a private and quiet space for work or leisure.

The great room is a spacious and open area, perfect for...

Home Details

Summary
Plan #:161-1218
Starting at:$4200.00
Floors:2
Bedrooms:5
Full Baths:4
Half Baths:1
Garage:
Square Footage
Heated Area:5636 Sq. Ft.
First Floor:3598 Sq. Ft.
Second Floor:2038 Sq. Ft.
Unheated Area:
Garage:1100 Sq. Ft.
Dimensions
Width:118' 3''
Architectural Styles
Exterior Wall Material
Vinyl SidingBrickWood SidingLap Siding
Roofing Type
Gable
Roofing Material
Asphalt Shingles
Roof Pitch
7/128/12
Ceiling Height
10 Foot Ceiling9 Foot Ceiling
Special Feature
FireplaceGuest RoomHome OfficeMud RoomFamily RoomMain Level LaundryMedia RoomColor PhotosLoftStorageOpen Floor Plan
Garage Type
Attached GarageCourtyard Entry
Fireplaces
One Fireplace
Exterior Wall Framing
2x6
Building Lot Type
Flat SiteView Lot
Kitchen Features
Kitchen IslandNook/Breakfast AreaWalk-in PantryEat-In Kitchen
Porches and Exterior Features
Covered Front PorchCovered Rear Patio
Master Suite Features
Main Floor MasterMaster BathroomWalk In ClosetPrivate DeckSplit Master Bedroom

What’s Included

Most plan sets include the following:

icon text-secondary-400 includedExterior elevations

icon text-secondary-400 includedMain Floor plan

icon text-secondary-400 includedArchitectural’ Foundation Plan

icon text-secondary-400 includedArchitectural’ Roof Plan

icon text-secondary-400 includedSections

icon text-secondary-400 includedMain Floor Electrical Plan

icon text-secondary-400 includedNo Framing

What’s Not Included

These items are  NOT included:

icon text-secondary-400 includedArchitectural or Engineering Stamp - handled locally if required.

icon text-secondary-400 includedSite Plan - handled locally when required.

icon text-secondary-400 includedPlumbing Drawings (drawings showing the actual plumbing pipe sizes and locations) - your subcontractors handle this.

icon text-secondary-400 includedEnergy calculations - handled locally when required.

Related House Plans

Plan Collection
Plan Collection
Plan Collection
Plan#161-1030
Starting at$2950
6403
Sq Ft
2
Story
5
Bed
4.5
Bath
4
Car
Plan Collection
Plan Collection
Plan Collection
Plan#116-1010
Starting at$0
6974
Sq Ft
2
Story
5
Bed
4.5
Bath
3
Car
Plan Collection
Plan Collection
Plan Collection
Plan#161-1022
Starting at$2650
5711
Sq Ft
2
Story
5
Bed
4.5
Bath
3
Car
View All

Other Plans By This Designer

Plan Collection
Plan Collection
Plan Collection
Plan#161-1145
Starting at$2650
3907
Sq Ft
2
Story
4
Bed
3.5
Bath
3
Car
Plan Collection
Plan Collection
Plan Collection
Plan#161-1077
Starting at$4500
6563
Sq Ft
2
Story
5
Bed
5.5
Bath
5
Car
Plan Collection
Plan Collection
Plan Collection
Plan#161-1084
Starting at$4200
5170
Sq Ft
2
Story
5
Bed
5.5
Bath
3
Car