3-Bedroom, 5300 Sq Ft Colonial Plan with Fireplace

Front view of Colonial home (ThePlanCollection: House Plan #146-2864)

Images/Plans copyrighted by designer. Photos may reflect homeowner modifications.

About House Plan #146-2864

Sq Ft
5300
Sq Ft
Bedrooms
3
Bedrooms
Bathroom
3
Baths
Half Baths
1
Half Baths
Bedrooms
4
Cars
Bedrooms
2
Stories
Bedrooms
102' 0'
Width
Bedrooms
75
Depth
Starting at$1645.00What's included
STEP 1Bedrooms
STEP 2Bedrooms
STEP 3Bedrooms

Subtotal:$0
Plan Collection

How much will it cost to build?

Estimate your costs based on your location and materials.

Free Cost Instant Estimator

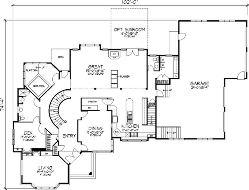
Floor Plans

Main Level
Main Level
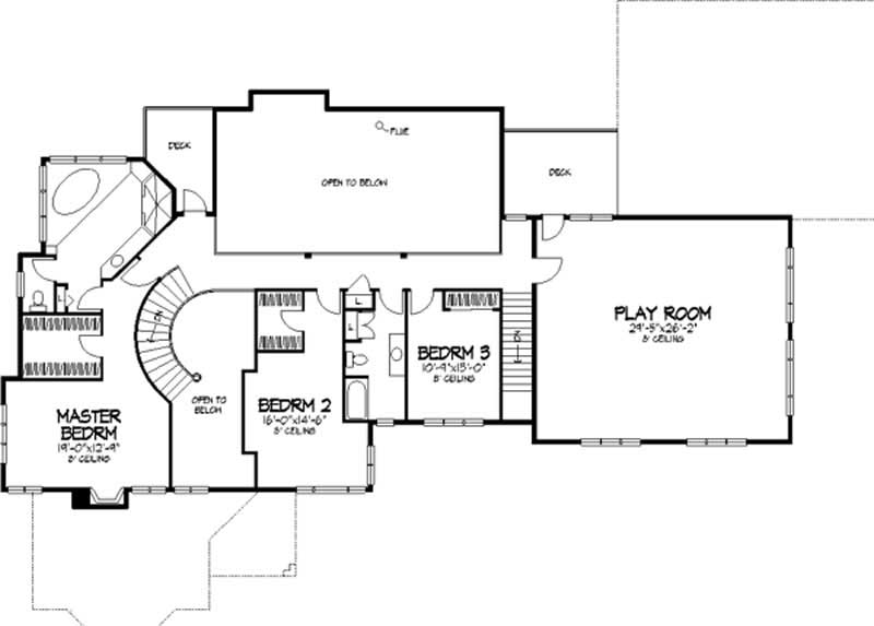
Upper Level
Upper Level
Plan Collection

Can I modify this plan?

Yes! This plan can be customized—contact us for a free quote.

House Plan Description

This exquisite design carries you through the years in style! Double doors open to a foyer where a staircase sweeps up to the second floor. The formal living room and a nearby den are warmed by handsome fireplaces. The central Great Room is warmed by its own fireplace and sports a built-in, ground-level planter that's a luxurious touch. The adjacent kitchen has plenty of room for the family gourmet. The master suite is on the second floor and is warmed by a romantic fireplace. The suite's private bath boasts a huge soaking tub and a separate shower. A balcony overlooks the open Great Room and...

Home Details

Summary
Plan #:146-2864
Starting at:$1645.00
Floors:2
Bedrooms:3
Full Baths:3
Half Baths:1
Garage:
Square Footage
Heated Area:5300 Sq. Ft.
First Floor:2934 Sq. Ft.
Second Floor:2366 Sq. Ft.
Unheated Area:
Basement:2934 Sq. Ft.
Dimensions
Ridge Height:26-0' 0''
Architectural Styles
Exterior Wall Material
BrickWood Siding
Roofing Type
Gable
Special Feature
Fireplace
Garage Type
Attached GarageSide Entry
Fireplaces
Four Fireplaces
Exterior Wall Framing
2x6

What’s Included

Most plan sets include the following:

What’s Not Included

These items are  NOT included:

icon text-secondary-400 includedArchitectural or Engineering Stamp - handled locally if required.

icon text-secondary-400 includedSite Plan - handled locally when required.

icon text-secondary-400 includedMechanical Drawings (location of heating and air equipment and ductwork) - your subcontractors handle this.

icon text-secondary-400 includedPlumbing Drawings (drawings showing the actual plumbing pipe sizes and locations) - your subcontractors handle this.

icon text-secondary-400 includedEnergy calculations - handled locally when required.

Related House Plans

Plan Collection
Plan Collection
Plan Collection
Plan#134-1071
Starting at$0
4756
Sq Ft
2
Story
3
Bed
3.5
Bath
0
Car
Plan Collection
Plan Collection
Plan Collection
Plan#153-1897
Starting at$2250
4121
Sq Ft
2
Story
3
Bed
3.5
Bath
3
Car
Plan Collection
Plan Collection
Plan Collection
Plan#161-1051
Starting at$2650
4190
Sq Ft
2
Story
3
Bed
3.5
Bath
4
Car
View All

Other Plans By This Designer

Plan Collection
Plan Collection
Plan Collection
Plan#146-2806
Starting at$980
1933
Sq Ft
2
Story
3
Bed
2
Bath
0
Car
Plan Collection
Plan Collection
Plan Collection
Plan#146-2810
Starting at$1285
3594
Sq Ft
2
Story
4
Bed
3.5
Bath
2
Car
Plan Collection
Plan Collection
Plan Collection
Plan#146-1917
Starting at$1120
2525
Sq Ft
2
Story
4
Bed
2.5
Bath
3
Car