3-Bedroom, 4544 Sq Ft Cape Cod Plan with Main Floor Master

Front view of Luxury home (ThePlanCollection: House Plan #146-1451)

Images/Plans copyrighted by designer. Photos may reflect homeowner modifications.

About House Plan #146-1451

Sq Ft
4544
Sq Ft
Bedrooms
3
Bedrooms
Bathroom
3
Baths
Half Baths
0
Half Baths
Bedrooms
3
Cars
Bedrooms
2
Stories
Bedrooms
133' 0'
Width
Bedrooms
69
Depth
Starting at$1425.00What's included
STEP 1Bedrooms
STEP 2Bedrooms
STEP 3Bedrooms

Subtotal:$0
Plan Collection

How much will it cost to build?

Estimate your costs based on your location and materials.

Free Cost Instant Estimator

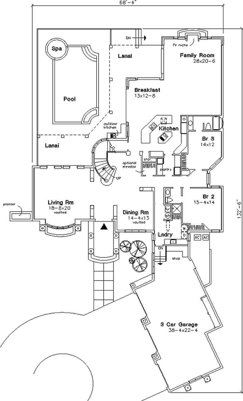
Floor Plans

Floor Plan First Story
Floor Plan First Story
Floor Plan Second Story
Floor Plan Second Story
Plan Collection

Can I modify this plan?

Yes! This plan can be customized—contact us for a free quote.

House Plan Description

With a unique sun-drenched design, this luxury home is constructed using 8-inch concrete blocks for the exterior of the main level. The intriguing exterior coincides with an exciting interior as well. All major living areas are oriented to the rear, overlooking a lanai that wraps an optional pool. The large kitchen, breakfast area and family room combine for a spacious indoor/outdoor setting. A handy cooktop island, peninsula sink and work counter, and a huge walk-through pantry are featured in the kitchen. For open-air dining, the homeowner will enjoy the outdoor kitchen. The curved stairway...

Home Details

Summary
Plan #:146-1451
Starting at:$1425.00
Floors:2
Bedrooms:3
Full Baths:3
Half Baths:0
Garage:
Square Footage
Heated Area:4544 Sq. Ft.
First Floor:3125 Sq. Ft.
Second Floor:1419 Sq. Ft.
Unheated Area:
Dimensions
Architectural Styles
Exterior Wall Material
BrickStucco
Roofing Type
Hip
Roofing Material
Asphalt Shingles
Special Feature
Swimming PoolDining RoomMud RoomFamily RoomMain Level LaundryLoftSplit BathroomVaulted CeilingsElevatorBalconyExercise Room
Garage Type
Attached GarageCourtyard Entry
Exterior Wall Framing
2x4
Building Lot Type
Flat Site
Kitchen Features
Kitchen IslandNook/Breakfast AreaWalk-in PantryPeninsula/Eating BarEat-In Kitchen
Porches and Exterior Features
CourtyardCovered Front PorchSundeckScreened in Lanai
Master Suite Features
Master BathroomWalk In ClosetSitting AreaPrivate DeckSecond Floor Master

What’s Included

Most plan sets include the following:

What’s Not Included

These items are  NOT included:

icon text-secondary-400 includedArchitectural or Engineering Stamp - handled locally if required.

icon text-secondary-400 includedSite Plan - handled locally when required.

icon text-secondary-400 includedMechanical Drawings (location of heating and air equipment and ductwork) - your subcontractors handle this.

icon text-secondary-400 includedPlumbing Drawings (drawings showing the actual plumbing pipe sizes and locations) - your subcontractors handle this.

icon text-secondary-400 includedEnergy calculations - handled locally when required.

Related House Plans

Plan Collection
Plan Collection
Plan Collection
Plan#134-1071
Starting at$0
4756
Sq Ft
2
Story
3
Bed
3.5
Bath
0
Car
Plan Collection
Plan Collection
Plan Collection
Plan#153-1897
Starting at$2250
4121
Sq Ft
2
Story
3
Bed
3.5
Bath
3
Car
Plan Collection
Plan Collection
Plan Collection
Plan#136-1014
Starting at$2250
3639
Sq Ft
2
Story
3
Bed
3
Bath
2
Car
View All

Other Plans By This Designer

Plan Collection
Plan Collection
Plan Collection
Plan#146-2806
Starting at$980
1933
Sq Ft
2
Story
3
Bed
2
Bath
0
Car
Plan Collection
Plan Collection
Plan Collection
Plan#146-2810
Starting at$1285
3594
Sq Ft
2
Story
4
Bed
3.5
Bath
2
Car
Plan Collection
Plan Collection
Plan Collection
Plan#146-1917
Starting at$1120
2525
Sq Ft
2
Story
4
Bed
2.5
Bath
3
Car