4-Bedroom, 4941 Sq Ft Luxury Cottage Plan with Walk-Out Basement

Front elevation of Cottage home (ThePlanCollection: House Plan #198-1074)
Plan Collection View Video

Images/Plans copyrighted by designer. Photos may reflect homeowner modifications.

About House Plan #198-1074

Sq Ft
4941
Sq Ft
Bedrooms
4
Bedrooms
Bathroom
4
Baths
Half Baths
1
Half Baths
Bedrooms
2
Cars
Bedrooms
1
Stories
Bedrooms
98' 0'
Width
Bedrooms
59
Depth
Starting at$1895.00What's included
STEP 1Bedrooms
STEP 2Bedrooms
STEP 3Bedrooms

Subtotal:$0
Plan Collection

How much will it cost to build?

Estimate your costs based on your location and materials.

Free Cost Instant Estimator

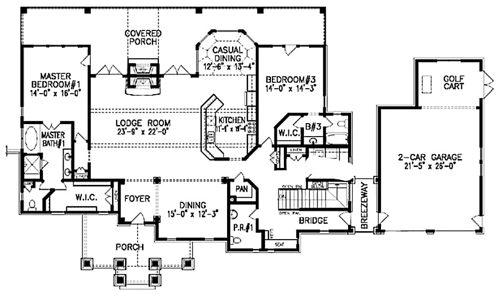
Floor Plans

Floor Plan Main Level
Floor Plan Main Level
Floor Plan Basement
Floor Plan Basement
Plan Collection

Can I modify this plan?

Yes! This plan can be customized—contact us for a free quote.

Additional Notes from Designer

NO Material lists.

House Plan Description

This impressive cottage-inspired Craftsman defines understated luxury. With 4941 living sq ft, four bedrooms, and 4.5 baths, there is plenty of space for entertaining or simply spending time with family. From the front porch, step into the foyer with the semi-open formal dining room just to the right. Straight ahead is the spacious great room (lodge room) with its vaulted ceiling, impressive fireplace, and double french doors leading out to the rear-covered porch. An open-concept kitchen looks out onto the lodge room, divided by a large peninsula with an eating bar. For more informal...

Home Details

Summary
Plan #:198-1074
Starting at:$1895.00
Floors:1
Bedrooms:4
Full Baths:4
Half Baths:1
Garage:
Square Footage
Heated Area:4941 Sq. Ft.
Basement:2361 Sq. Ft.
First Floor:2580 Sq. Ft.
Unheated Area:
Garage:725 Sq. Ft.
Dimensions
Architectural Styles
Exterior Wall Material
Aluminum SidingRock/StoneWood SidingShakes
Roofing Type
HipGable/Dormer
Roofing Material
Asphalt Shingles
Ceiling Height
10 Foot Ceiling
Special Feature
FireplaceDining RoomMud RoomFamily RoomGame RoomMain Level LaundryColor PhotosSplit BathroomVaulted CeilingsGolf Cart StorageWine CellarExercise RoomVideoOpen Floor PlanInterior Photos
Garage Type
Attached GarageDetached GarageFront Entry
Fireplaces
Three Fireplaces
Exterior Wall Framing
2x4
Building Lot Type
Down Site
Kitchen Features
Kitchen IslandNook/Breakfast AreaWalk-in PantryPeninsula/Eating Bar
Porches and Exterior Features
BreezewayCovered Front PorchCovered Rear Porch
Master Suite Features
Main Floor MasterTwo or More Master SuitesMaster BathroomWalk In ClosetSplit Master Bedroom

What’s Included

Most plan sets include the following:

icon text-secondary-400 includedExterior elevations

icon text-secondary-400 includedFoundation plan

icon text-secondary-400 includedDetailed floor plans

icon text-secondary-400 includedInterior details

icon text-secondary-400 includedRoof plan

icon text-secondary-400 includedCross-section details

icon text-secondary-400 includedElectrical layout

What’s Not Included

These items are  NOT included:

icon text-secondary-400 includedArchitectural or Engineering Stamp - handled locally if required.

icon text-secondary-400 includedSite Plan - handled locally when required.

icon text-secondary-400 includedMechanical Drawings (location of heating and air equipment and ductwork) - your subcontractors handle this.

icon text-secondary-400 includedPlumbing Drawings (drawings showing the actual plumbing pipe sizes and locations) - your subcontractors handle this.

icon text-secondary-400 includedEnergy calculations - handled locally when required.

Related House Plans

Plan Collection
Plan Collection
Plan Collection
Plan#153-1095
Starting at$1650
3766
Sq Ft
1
Story
4
Bed
4
Bath
3
Car
Plan Collection
Plan Collection
Plan Collection
Plan#175-1086
Starting at$1900
3800
Sq Ft
1
Story
4
Bed
4
Bath
3
Car
Plan Collection
Plan Collection
Plan Collection
Plan#175-1131
Starting at$3000
4817
Sq Ft
1
Story
4
Bed
4.5
Bath
4
Car
View All

Other Plans By This Designer

Plan Collection
Plan Collection
Plan Collection
Plan#198-1053
Starting at$2195
2498
Sq Ft
1.5
Story
3
Bed
3
Bath
3
Car
Plan Collection
Plan Collection
Plan Collection
Plan#198-1054
Starting at$2630
4376
Sq Ft
2
Story
4
Bed
4.5
Bath
3
Car
Plan Collection
Plan Collection
Plan Collection
Plan#198-1060
Starting at$1985
3970
Sq Ft
2
Story
5
Bed
4.5
Bath
2
Car