5-Bedroom, 3970 Sq Ft Luxury Plan with Porte-Cochere

Luxury Country home (ThePlanCollection: Plan #198-1060)
Plan Collection View Video

Images/Plans copyrighted by designer. Photos may reflect homeowner modifications.

About House Plan #198-1060

Sq Ft
3970
Sq Ft
Bedrooms
5
Bedrooms
Bathroom
4
Baths
Half Baths
1
Half Baths
Bedrooms
2
Cars
Bedrooms
2
Stories
Bedrooms
65' 1'
Width
Bedrooms
59
Depth
Starting at$1985.00What's included
STEP 1Bedrooms
STEP 2Bedrooms
STEP 3Bedrooms

Subtotal:$0
Plan Collection

How much will it cost to build?

Estimate your costs based on your location and materials.

Free Cost Instant Estimator

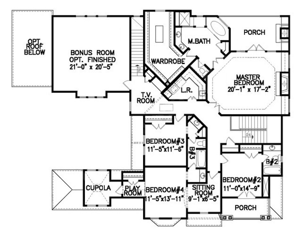
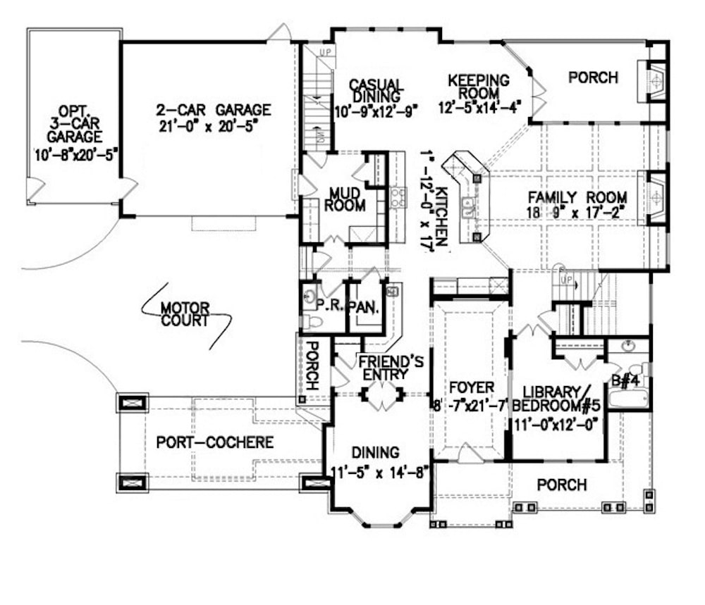
Floor Plans

Floor Plan Main Level
Floor Plan Main Level
Floor Plan Upper Level
Floor Plan Upper Level
Plan Collection

Can I modify this plan?

Yes! This plan can be customized—contact us for a free quote.

Additional Notes from Designer

NO Material lists.

House Plan Description

Talk about curb appeal; this beautiful home screams "come look at me!" From the stonework to the rafter extensions, metal roof accents, meticulous trimwork, and double-decker front porch, the house is pure eye candy. This amazing luxury Country style home with Arts & Crafts expressions (Plan #198-1060) has 3970 square feet of living space. The 2 story floor plan includes 5 bedrooms.

Home Details

Summary
Plan #:198-1060
Starting at:$1985.00
Floors:2
Bedrooms:5
Full Baths:4
Half Baths:1
Garage:
Square Footage
Heated Area:3970 Sq. Ft.
First Floor:1992 Sq. Ft.
Second Floor:1978 Sq. Ft.
Unheated Area:
Dimensions
Width:65' 1''
Depth:59' 9''
Architectural Styles
Exterior Wall Material
Rock/StoneShakes
Roofing Type
GableHip
Roofing Material
Asphalt ShinglesMetal
Ceiling Height
10 Foot Ceiling9 Foot Ceiling
Special Feature
FireplaceDining RoomMud RoomFamily RoomSplit BathroomSecond Level LaundryVideoOpen Floor Plan
Garage Type
Attached GarageFront Entry
Fireplaces
Four Fireplaces
Kitchen Features
Kitchen IslandWalk-in PantryPeninsula/Eating Bar
Porches and Exterior Features
Covered Front PorchCovered Rear PorchFriend's EntryPorte-Cochere
Master Suite Features
Fireplace in MasterMaster BathroomWalk In ClosetPrivate DeckSecond Floor Master

What’s Included

Most plan sets include the following:

icon text-secondary-400 includedExterior elevations

icon text-secondary-400 includedFoundation plan

icon text-secondary-400 includedDetailed floor plans

icon text-secondary-400 includedInterior details

icon text-secondary-400 includedRoof plan

icon text-secondary-400 includedCross-section details

icon text-secondary-400 includedElectrical layout

What’s Not Included

These items are  NOT included:

icon text-secondary-400 includedArchitectural or Engineering Stamp - handled locally if required.

icon text-secondary-400 includedSite Plan - handled locally when required.

icon text-secondary-400 includedMechanical Drawings (location of heating and air equipment and ductwork) - your subcontractors handle this.

icon text-secondary-400 includedPlumbing Drawings (drawings showing the actual plumbing pipe sizes and locations) - your subcontractors handle this.

icon text-secondary-400 includedEnergy calculations - handled locally when required.

Related House Plans

Plan Collection
Plan Collection
Plan Collection
Plan#161-1075
Starting at$3400
4784
Sq Ft
2
Story
5
Bed
4.5
Bath
3
Car
Plan Collection
Plan Collection
Plan Collection
Plan#134-1339
Starting at$0
4434
Sq Ft
2
Story
5
Bed
4.5
Bath
3
Car
Plan Collection
Plan Collection
Plan Collection
Plan#126-1168
Starting at$2230
3126
Sq Ft
2
Story
5
Bed
4.5
Bath
2
Car
View All

Other Plans By This Designer

Plan Collection
Plan Collection
Plan Collection
Plan#198-1053
Starting at$2195
2498
Sq Ft
1.5
Story
3
Bed
3
Bath
3
Car
Plan Collection
Plan Collection
Plan Collection
Plan#198-1054
Starting at$2630
4376
Sq Ft
2
Story
4
Bed
4.5
Bath
3
Car
Plan Collection
Plan Collection
Plan Collection
Plan#198-1133
Starting at$2795
4851
Sq Ft
2
Story
5
Bed
5.5
Bath
3
Car