5-Bedroom, 4900 Sq Ft Luxury Plan with Eat-In Kitchen

Photo of this traditional, luxury home.

Images/Plans copyrighted by designer. Photos may reflect homeowner modifications.

About House Plan #134-1383

Sq Ft
4900
Sq Ft
Bedrooms
5
Bedrooms
Bathroom
4
Baths
Half Baths
1
Half Baths
Bedrooms
3
Cars
Bedrooms
2
Stories
Bedrooms
103' 0'
Width
Bedrooms
68
Depth
Starting at$11760.00What's included
STEP 1Bedrooms
STEP 2Bedrooms
STEP 3Bedrooms

Subtotal:$0
Plan Collection

How much will it cost to build?

Estimate your costs based on your location and materials.

Free Cost Instant Estimator

Floor Plans

Floor Plan First Story
Floor Plan First Story
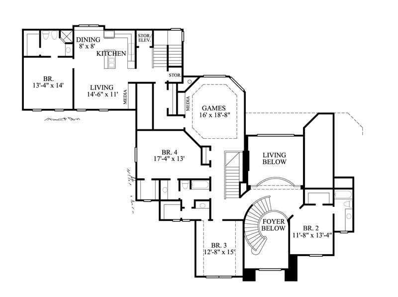
FLOOR PLAN SECOND STORY
FLOOR PLAN SECOND STORY
Plan Collection

Can I modify this plan?

Yes! This plan can be customized—contact us for a free quote.

House Plan Description

Home Details

Summary
Plan #:134-1383
Starting at:$11760.00
Floors:2
Bedrooms:5
Full Baths:4
Half Baths:1
Garage:
Square Footage
Heated Area:4900 Sq. Ft.
First Floor:2592 Sq. Ft.
Second Floor:2308 Sq. Ft.
Unheated Area:
Dimensions
Architectural Styles
Exterior Wall Material
Stucco
Ceiling Height
10 Foot Ceiling9 Foot Ceiling
Special Feature
FireplaceDining RoomMud RoomGame RoomMain Level LaundryApartmentColor PhotosColor PhotosStorageDenElevatorOpen Floor Plan
Garage Type
Attached GarageFront Entry
Exterior Wall Framing
2x4
Building Lot Type
View Lot
Kitchen Features
Kitchen IslandNook/Breakfast AreaWalk-in PantryPeninsula/Eating Bar
Porches and Exterior Features
Covered Rear PorchFriend's EntryCovered Lanai
Master Suite Features
Main Floor MasterMaster BathroomWalk In ClosetSplit Master Bedroom

What’s Included

Most plan sets include the following:

icon text-secondary-400 included1/4 scale elevations

icon text-secondary-400 includedFully dimensioned floor plans

icon text-secondary-400 includedFoundation footprint

icon text-secondary-400 includedRoof plan and section details

What’s Not Included

These items are  NOT included:

icon text-secondary-400 includedArchitectural or Engineering Stamp - handled locally if required.

icon text-secondary-400 includedSite Plan - handled locally when required.

icon text-secondary-400 includedMechanical Drawings (location of heating and air equipment and ductwork) - your subcontractors handle this.

icon text-secondary-400 includedPlumbing Drawings (drawings showing the actual plumbing pipe sizes and locations) - your subcontractors handle this.

icon text-secondary-400 includedEnergy calculations - handled locally when required.

Related House Plans

Plan Collection
Plan Collection
Plan Collection
Plan#161-1022
Starting at$2650
5711
Sq Ft
2
Story
5
Bed
4.5
Bath
3
Car
Plan Collection
Plan Collection
Plan Collection
Plan#161-1075
Starting at$3400
4784
Sq Ft
2
Story
5
Bed
4.5
Bath
3
Car
Plan Collection
Plan Collection
Plan Collection
Plan#134-1339
Starting at$0
4434
Sq Ft
2
Story
5
Bed
4.5
Bath
3
Car
View All

Other Plans By This Designer

Plan Collection
Plan Collection
Plan Collection
Plan#134-1400
Starting at$0
3929
Sq Ft
1
Story
4
Bed
3.5
Bath
3
Car
Plan Collection
Plan Collection
Plan Collection
Plan#134-1027
Starting at$0
6634
Sq Ft
2
Story
4
Bed
5.5
Bath
4
Car
Plan Collection
Plan Collection
Plan Collection
Plan#134-1355
Starting at$0
8617
Sq Ft
2
Story
5
Bed
5.5
Bath
3
Car