4-Bedroom, 3929 Sq Ft Luxurious European Style Home with Walk-in Closets Throughout

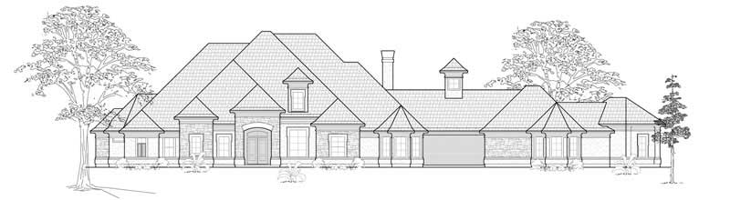
Front elevation of European home (ThePlanCollection: House Plan #134-1400)

Images/Plans copyrighted by designer. Photos may reflect homeowner modifications.

About House Plan #134-1400

Sq Ft
3929
Sq Ft
Bedrooms
4
Bedrooms
Bathroom
3
Baths
Half Baths
2
Half Baths
Bedrooms
3
Cars
Bedrooms
1
Stories
Bedrooms
166' 0'
Width
Bedrooms
63
Depth
Starting at$9429.60What's included
STEP 1Bedrooms
STEP 2Bedrooms
STEP 3Bedrooms

Subtotal:$0
Plan Collection

How much will it cost to build?

Estimate your costs based on your location and materials.

Free Cost Instant Estimator

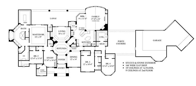
Floor Plans

FLOOR PLAN FIRST STORY
FLOOR PLAN FIRST STORY
Plan Collection

Can I modify this plan?

Yes! This plan can be customized—contact us for a free quote.

House Plan Description

This luxury house plan is a blend of Rustic European with relaxed Mediterranean. The grand entrance includes a rotunda flanked by a formal dining room and a study. The formal living room is straight ahead. The kitchen to the right of the plan is open to the family room, offering great entertaining space, including a bar/pub. The primary bedroom suite is secluded on the other side of the house and features a vast primary bath and two huge walk-in closets. One secondary bedroom is nearby, perfect for a nursery, an office, or an exercise room. The...

Home Details

Summary
Plan #:134-1400
Starting at:$9429.60
Floors:1
Bedrooms:4
Full Baths:3
Half Baths:2
Garage:
Square Footage
Heated Area:3929 Sq. Ft.
First Floor:3929 Sq. Ft.
Unheated Area:
Garage:1119 Sq. Ft.
Dimensions
Architectural Styles
Exterior Wall Material
StuccoRock/Stone
Roofing Type
Hip
Roofing Material
Asphalt Shingles
Ceiling Height
10 Foot Ceiling
Special Feature
FireplaceDining RoomHome OfficeFamily RoomMain Level LaundrySplit BathroomDenVaulted Ceilings
Garage Type
Attached GarageCourtyard Entry
Fireplaces
Two Fireplaces
Building Lot Type
Flat Site
Kitchen Features
Kitchen IslandButler's PantryNook/Breakfast AreaPeninsula/Eating Bar
Porches and Exterior Features
CourtyardCovered Front PorchCovered Rear PorchCovered LanaiPorticoPorte-Cochere
Master Suite Features
Main Floor MasterMaster BathroomWalk In Closet

What’s Included

Most plan sets include the following:

icon text-secondary-400 included1/4 scale elevations

icon text-secondary-400 includedFully dimensioned floor plans

icon text-secondary-400 includedFoundation footprint

icon text-secondary-400 includedRoof plan and section details

What’s Not Included

These items are  NOT included:

icon text-secondary-400 includedArchitectural or Engineering Stamp - handled locally if required.

icon text-secondary-400 includedSite Plan - handled locally when required.

icon text-secondary-400 includedMechanical Drawings (location of heating and air equipment and ductwork) - your subcontractors handle this.

icon text-secondary-400 includedPlumbing Drawings (drawings showing the actual plumbing pipe sizes and locations) - your subcontractors handle this.

icon text-secondary-400 includedEnergy calculations - handled locally when required.

Related House Plans

Plan Collection
Plan Collection
Plan Collection
Plan#142-1244
Starting at$1545
3086
Sq Ft
1
Story
4
Bed
3.5
Bath
3
Car
Plan Collection
Plan Collection
Plan Collection
Plan#142-1167
Starting at$1545
3194
Sq Ft
1
Story
4
Bed
3.5
Bath
3
Car
Plan Collection
Plan Collection
Plan Collection
Plan#125-1025
Starting at$0
3443
Sq Ft
1
Story
4
Bed
3.5
Bath
3
Car
View All

Other Plans By This Designer

Plan Collection
Plan Collection
Plan Collection
Plan#134-1027
Starting at$0
6634
Sq Ft
2
Story
4
Bed
5.5
Bath
4
Car
Plan Collection
Plan Collection
Plan Collection
Plan#134-1355
Starting at$0
8617
Sq Ft
2
Story
5
Bed
5.5
Bath
3
Car
Plan Collection
Plan Collection
Plan Collection
Plan#134-1365
Starting at$0
9166
Sq Ft
2
Story
6
Bed
6.5
Bath
5
Car