3-Bedroom, 4851 Sq Ft Mediterranean Plan with Walk-in Kitchen Pantry

Mediterranean home (ThePlanCollection: Plan #161-1122)

Images/Plans copyrighted by designer. Photos may reflect homeowner modifications.

About House Plan #161-1122

Sq Ft
4851
Sq Ft
Bedrooms
3
Bedrooms
Bathroom
3
Baths
Half Baths
1
Half Baths
Bedrooms
3
Cars
Bedrooms
1.5
Stories
Bedrooms
113' 3'
Width
Bedrooms
82
Depth
Starting at$3850.00What's included
STEP 1Bedrooms
STEP 2Bedrooms
STEP 3Bedrooms

Subtotal:$0
Plan Collection

How much will it cost to build?

Estimate your costs based on your location and materials.

Free Cost Instant Estimator

Floor Plans

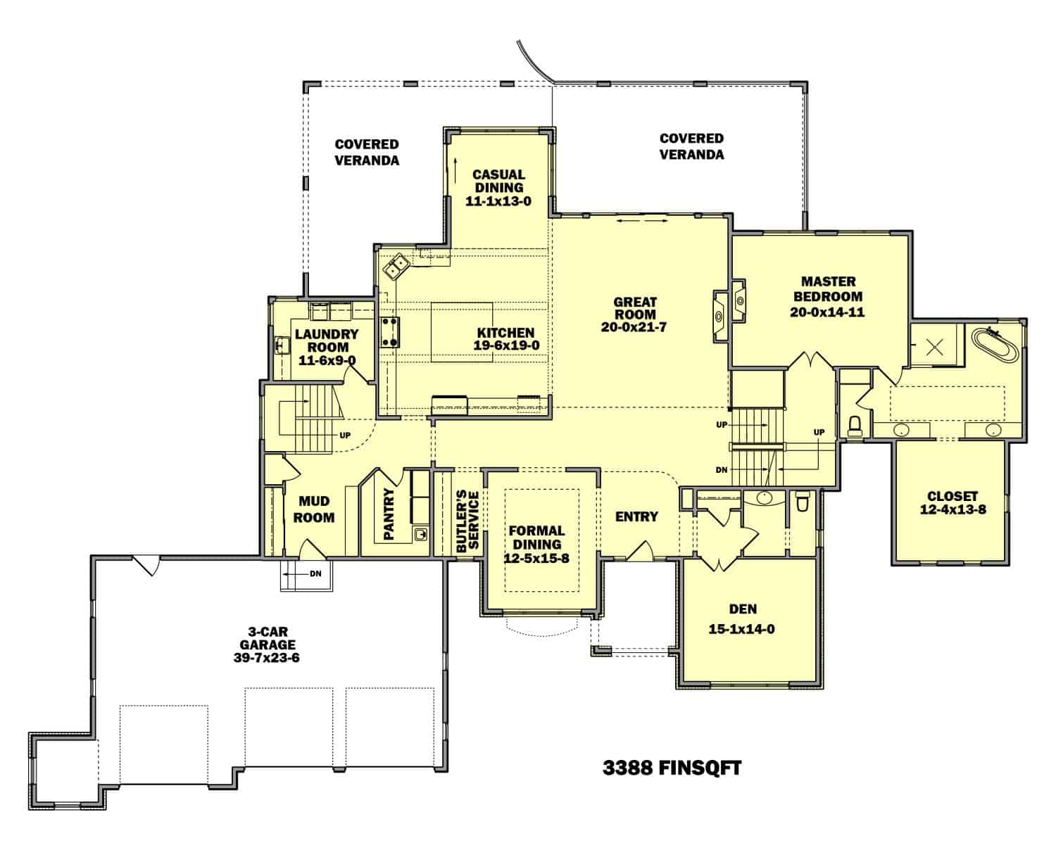
Floor Plan Main Level
Floor Plan Main Level
Floor Plan Upper Level
Floor Plan Upper Level
Lower Level
Lower Level
Plan Collection

Can I modify this plan?

Yes! This plan can be customized—contact us for a free quote.

Additional Notes from Designer

PLEASE NOTE! This designer's plans do NOT come with framing!

House Plan Description

This house is a two-story Mediterranean style home with 4,851 heated square feet at the main and second-floor levels and 2,644 optional heated square feet and 844 unfinished square feet in the lower level. A very interesting facade, together with the use of natural stone cladding, gives this house its curb appeal.

The covered porch welcomes you at the front of the house, and its main entry door will usher you to the formal dining, Great Room, kitchen, and casual dining with an open floor plan. The covered veranda sandwiching the casual dining further...

Home Details

Summary
Plan #:161-1122
Starting at:$3850.00
Floors:1.5
Bedrooms:3
Full Baths:3
Half Baths:1
Garage:
Square Footage
Heated Area:4851 Sq. Ft.
First Floor:3388 Sq. Ft.
Second Floor:1463 Sq. Ft.
Unheated Area:
Basement:3488 Sq. Ft.
Garage:1070 Sq. Ft.
Porch:983 Sq. Ft.
Dimensions
Width:113' 3''
Depth:82' 6''
Architectural Styles
Exterior Wall Material
StuccoRock/Stone
Roofing Type
GableHip
Roofing Material
Tiles
Roof Pitch
5/12
Ceiling Height
10 Foot Ceiling9 Foot Ceiling
Special Feature
FireplaceDining RoomMud RoomFamily RoomGame RoomMain Level LaundryHome TheaterColor PhotosLoftSplit BathroomStorageDenVaulted CeilingsExercise RoomOpen Floor PlanInterior Photos
Garage Type
Attached GarageFront Entry
Fireplaces
Two Fireplaces
Exterior Wall Framing
2x6
Kitchen Features
Kitchen IslandButler's PantryNook/Breakfast AreaWalk-in PantryPeninsula/Eating Bar
Porches and Exterior Features
Covered Front PorchCovered Rear Porch
Master Suite Features
Main Floor MasterFireplace in MasterMaster BathroomWalk In ClosetSplit Master Bedroom

What’s Included

Most plan sets include the following:

icon text-secondary-400 includedExterior elevations

icon text-secondary-400 includedMain Floor plan

icon text-secondary-400 includedArchitectural’ Foundation Plan

icon text-secondary-400 includedArchitectural’ Roof Plan

icon text-secondary-400 includedSections

icon text-secondary-400 includedMain Floor Electrical Plan

icon text-secondary-400 includedNo Framing

What’s Not Included

These items are  NOT included:

icon text-secondary-400 includedArchitectural or Engineering Stamp - handled locally if required.

icon text-secondary-400 includedSite Plan - handled locally when required.

icon text-secondary-400 includedPlumbing Drawings (drawings showing the actual plumbing pipe sizes and locations) - your subcontractors handle this.

icon text-secondary-400 includedEnergy calculations - handled locally when required.

Related House Plans

Plan Collection
Plan Collection
Plan Collection
Plan#153-1944
Starting at$2850
4384
Sq Ft
1.5
Story
3
Bed
3.5
Bath
3
Car
Plan Collection
Plan Collection
Plan Collection
Plan#161-1116
Starting at$4200
5935
Sq Ft
1.5
Story
3
Bed
3.5
Bath
4
Car
Plan Collection
Plan Collection
Plan Collection
Plan#153-2003
Starting at$2050
3815
Sq Ft
1.5
Story
3
Bed
3.5
Bath
4
Car
View All

Other Plans By This Designer

Plan Collection
Plan Collection
Plan Collection
Plan#161-1145
Starting at$2650
3907
Sq Ft
2
Story
4
Bed
3.5
Bath
3
Car
Plan Collection
Plan Collection
Plan Collection
Plan#161-1077
Starting at$4500
6563
Sq Ft
2
Story
5
Bed
5.5
Bath
5
Car
Plan Collection
Plan Collection
Plan Collection
Plan#161-1084
Starting at$4200
5170
Sq Ft
2
Story
5
Bed
5.5
Bath
3
Car