4-Bedroom, 4346 Sq Ft Contemporary Plan with Kitchen Island

Front view of Contemporary home (ThePlanCollection: House Plan #146-1094)

Images/Plans copyrighted by designer. Photos may reflect homeowner modifications.

About House Plan #146-1094

Sq Ft
4346
Sq Ft
Bedrooms
4
Bedrooms
Bathroom
4
Baths
Half Baths
1
Half Baths
Bedrooms
2
Cars
Bedrooms
1
Stories
Bedrooms
90' 0'
Width
Bedrooms
87
Depth
Starting at$1360.00What's included
STEP 1Bedrooms
STEP 2Bedrooms
STEP 3Bedrooms

Subtotal:$0
Plan Collection

How much will it cost to build?

Estimate your costs based on your location and materials.

Free Cost Instant Estimator

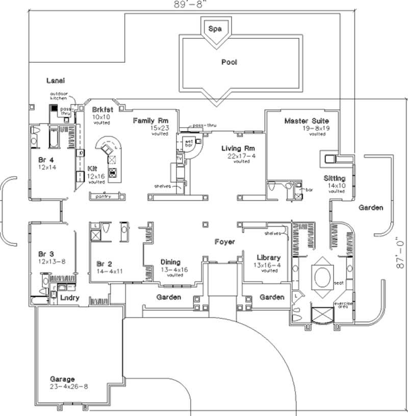
Floor Plans

Floor Plan First Story
Floor Plan First Story
Plan Collection

Can I modify this plan?

Yes! This plan can be customized—contact us for a free quote.

House Plan Description

This luxury home's abundant space and attention to detail will tempt most families to stay at home. Inside, a centrally located wet bar serves the family room and the lanai, allowing you flexibility when you entertain. A beautiful library to the right of the foyer boasts a wall of built-in shelves and access to a lush private garden.

Home Details

Summary
Plan #:146-1094
Starting at:$1360.00
Floors:1
Bedrooms:4
Full Baths:4
Half Baths:1
Garage:
Square Footage
Heated Area:4346 Sq. Ft.
First Floor:4346 Sq. Ft.
Unheated Area:
Dimensions
Ridge Height:21' 0''
Architectural Styles
Exterior Wall Material
BrickStucco
Roofing Type
Hip
Roofing Material
Asphalt Shingles
Special Feature
FireplaceSwimming PoolDining RoomMud RoomFamily RoomMain Level LaundryLibraryVaulted Ceilings
Garage Type
Attached GarageCourtyard Entry
Fireplaces
One Fireplace
Exterior Wall Framing
2x4
Building Lot Type
Flat Site
Kitchen Features
Nook/Breakfast AreaWalk-in PantryOutdoor KitchenPeninsula/Eating BarEat-In KitchenSecondary Kitchen
Porches and Exterior Features
CourtyardCovered Front PorchCovered Lanai
Master Suite Features
Main Floor MasterMaster BathroomWalk In ClosetSitting AreaPrivate Deck

What’s Included

Most plan sets include the following:

What’s Not Included

These items are  NOT included:

icon text-secondary-400 includedArchitectural or Engineering Stamp - handled locally if required.

icon text-secondary-400 includedSite Plan - handled locally when required.

icon text-secondary-400 includedMechanical Drawings (location of heating and air equipment and ductwork) - your subcontractors handle this.

icon text-secondary-400 includedPlumbing Drawings (drawings showing the actual plumbing pipe sizes and locations) - your subcontractors handle this.

icon text-secondary-400 includedEnergy calculations - handled locally when required.

Related House Plans

Plan Collection
Plan Collection
Plan Collection
Plan#153-1095
Starting at$1650
3766
Sq Ft
1
Story
4
Bed
4
Bath
3
Car
Plan Collection
Plan Collection
Plan Collection
Plan#175-1086
Starting at$1900
3800
Sq Ft
1
Story
4
Bed
4
Bath
3
Car
Plan Collection
Plan Collection
Plan Collection
Plan#175-1129
Starting at$2200
3869
Sq Ft
1
Story
4
Bed
4
Bath
3
Car
View All

Other Plans By This Designer

Plan Collection
Plan Collection
Plan Collection
Plan#146-2806
Starting at$980
1933
Sq Ft
2
Story
3
Bed
2
Bath
0
Car
Plan Collection
Plan Collection
Plan Collection
Plan#146-2810
Starting at$1285
3594
Sq Ft
2
Story
4
Bed
3.5
Bath
2
Car
Plan Collection
Plan Collection
Plan Collection
Plan#146-1917
Starting at$1120
2525
Sq Ft
2
Story
4
Bed
2.5
Bath
3
Car