Estimate your costs based on your location and materials.
Yes! This plan can be customized—contact us for a free quote.
Yes! This plan can be customized—contact us for a free quote.
CAD files for this plan will be delivered in both DXF (AutoCad readable) and Sketchup Pro formats.
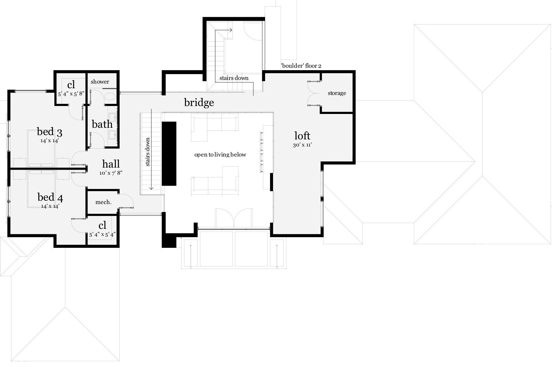
This lovely Modern style home plan with California Style influences (House Plan #116-1080) has 3885 square feet of living space. The 2 story floor plan includes 4 bedrooms, 3 full bathrooms, and 1 half bath.
The house plan has 2 bedroom suites downstairs and 2 upstairs. The large living space connects with dining, kitchen, and upstairs loft for an open entertaining area. There is a total of 5,297 SF (including unconditioned space) under the roof. The standard version of this plan is designed with a concrete slab on grade. The exterior walls...
Estimate your costs based on your location and materials.
All sales of house plans, modifications, and other products found on this site are final. No refunds or exchanges can be given once your order has begun the fulfillment process. Please see our Policies for additional information.
All plans offered on ThePlanCollection.com are designed to conform to the local building codes when and where the original plan was drawn.
The homes as shown in photographs and renderings may differ from the actual blueprints. For more detailed information, please review the floor plan images herein carefully.
Estimate your costs based on your location and materials.