Estimate your costs based on your location and materials.
Yes! This plan can be customized—contact us for a free quote.
Yes! This plan can be customized—contact us for a free quote.
On some plans, Basement Foundations, Walkout Basement Foundations & 2x6 Conversions could take up to ONE WEEK to produce. Materials Lists could take up to FOUR WEEKS to produce and they will be for the ORIGINAL plan! Any modifications will NOT be reflected on the Materials List. NOTE FROM DESIGNER: If you purchase a CAD, you will automatically receive the unlimited build license - no need to purchase separately!
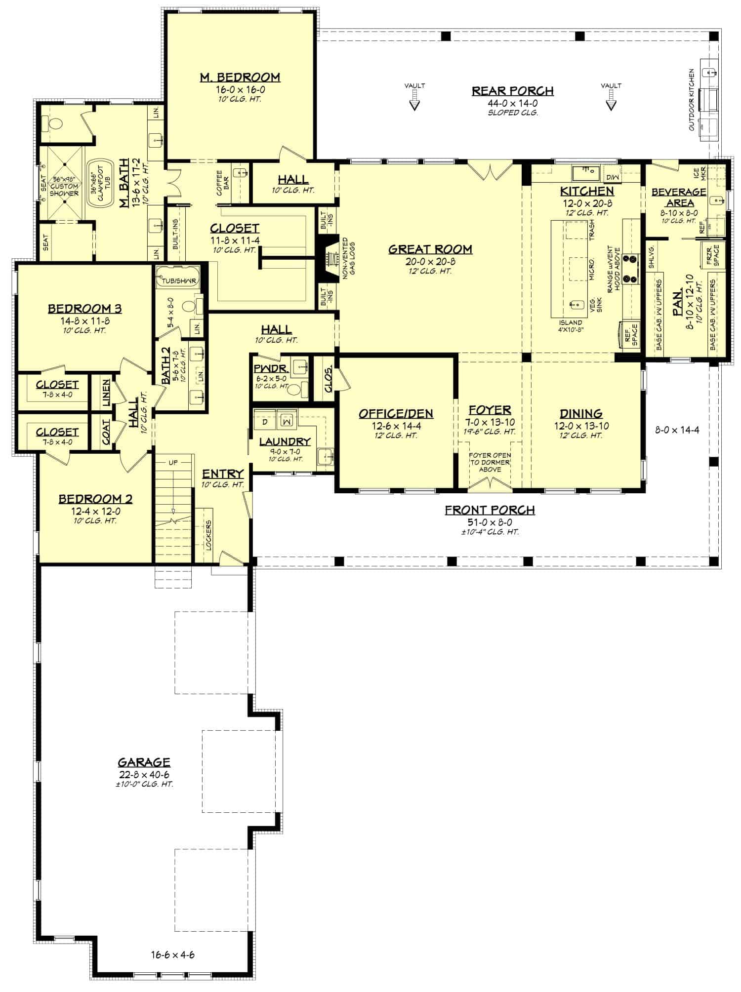
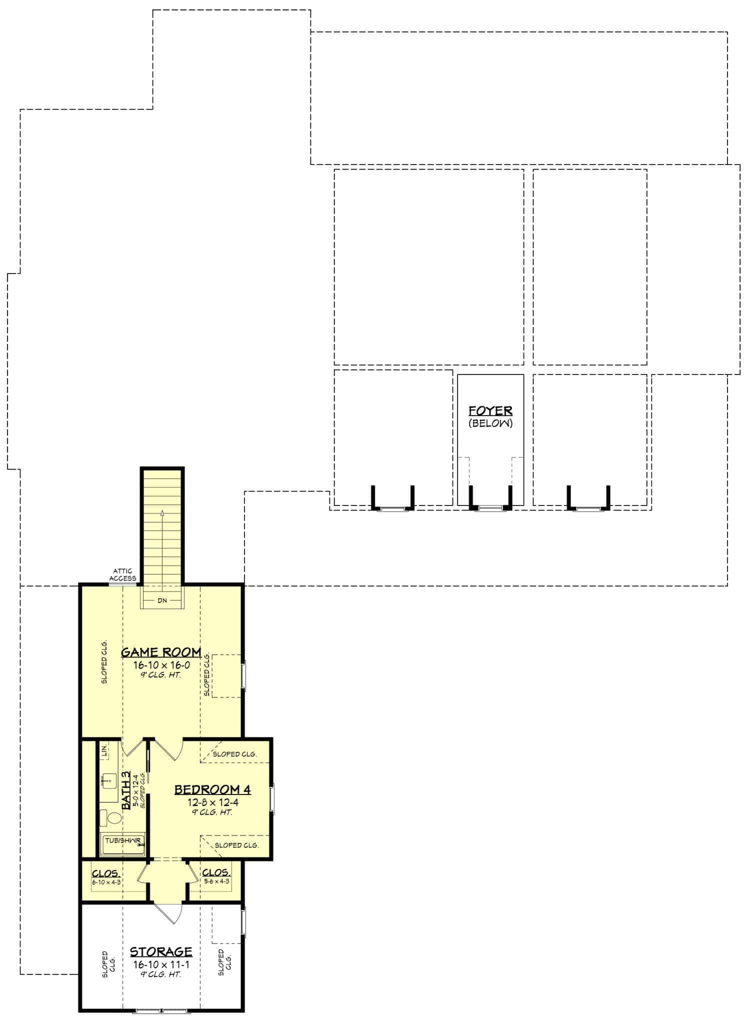
If you're looking for a roomy farmhouse that has it all, then this 4-bedroom, 3858 sq ft plan is the one for you! With an inviting wraparound porch, a spacious open concept layout, and plenty of storage space, this house has everything your family needs and more. The kitchen comes complete with a separate beverage area and walk-in pantry, perfect for entertaining guests. The main suite features a luxurious bathroom and a large walk-in closet, while the guest bedrooms all have their own walk-in closets as well. Upstairs you'll find an additional game room, perfect for the kids or...
Estimate your costs based on your location and materials.
All sales of house plans, modifications, and other products found on this site are final. No refunds or exchanges can be given once your order has begun the fulfillment process. Please see our Policies for additional information.
All plans offered on ThePlanCollection.com are designed to conform to the local building codes when and where the original plan was drawn.
The homes as shown in photographs and renderings may differ from the actual blueprints. For more detailed information, please review the floor plan images herein carefully.
Estimate your costs based on your location and materials.