2-3-Bedroom, 2536-3812 Sq Ft Contemporary Plan with Peninsula/Eating Bar

Front elevation of Contemporary home (ThePlanCollection: House Plan #161-1162)

Images/Plans copyrighted by designer. Photos may reflect homeowner modifications.

About House Plan #161-1162

Sq Ft
3812
Sq Ft
Bedrooms
2
Bedrooms
Bathroom
2
Baths
Half Baths
1
Half Baths
Bedrooms
3
Cars
Bedrooms
1
Stories
Bedrooms
87' 6'
Width
Bedrooms
68
Depth
Starting at$1750.00What's included
STEP 1Bedrooms
STEP 2Bedrooms
STEP 3Bedrooms

Subtotal:$0
Plan Collection

How much will it cost to build?

Estimate your costs based on your location and materials.

Free Cost Instant Estimator

Floor Plans

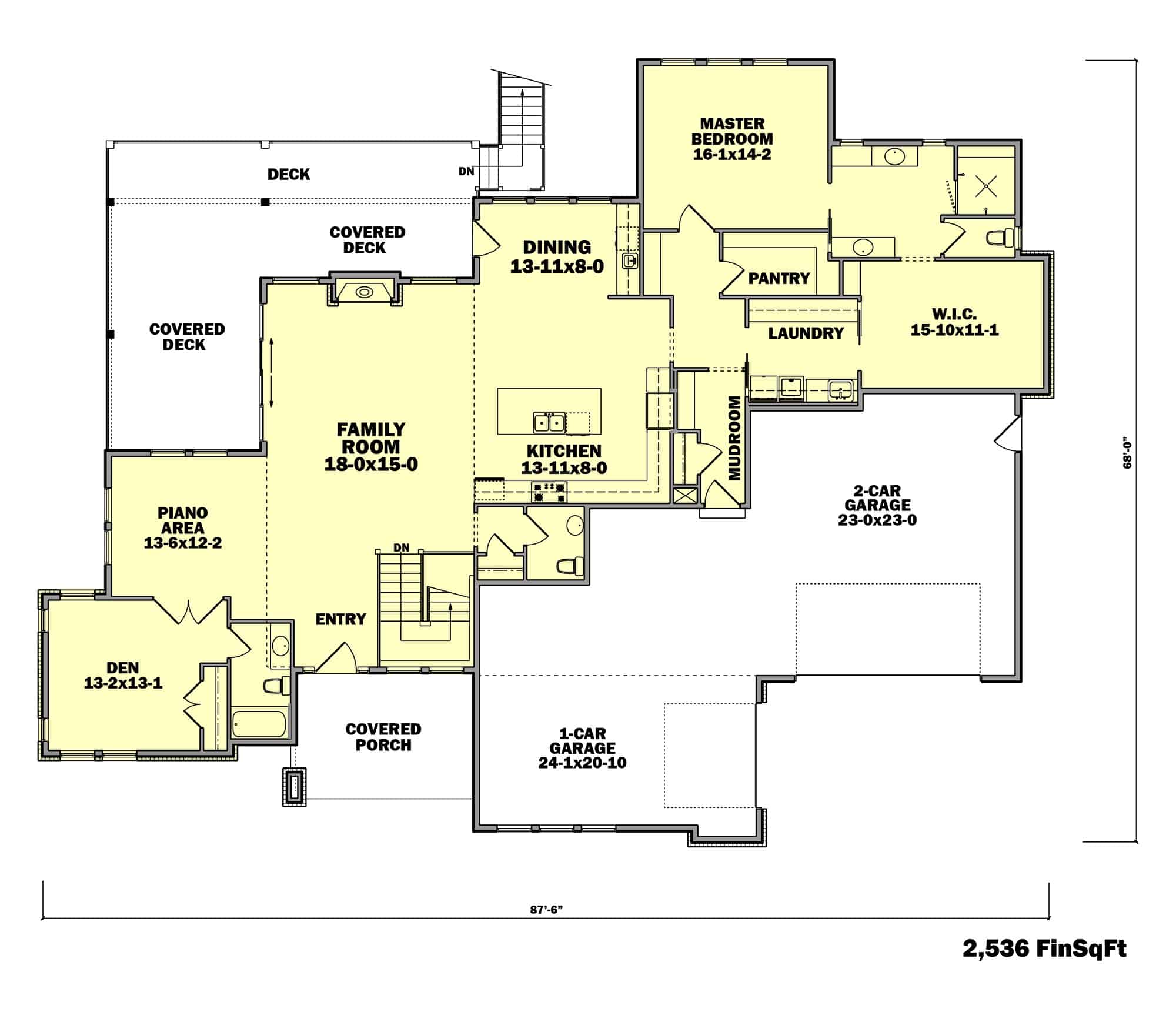
Main Level
Main Level
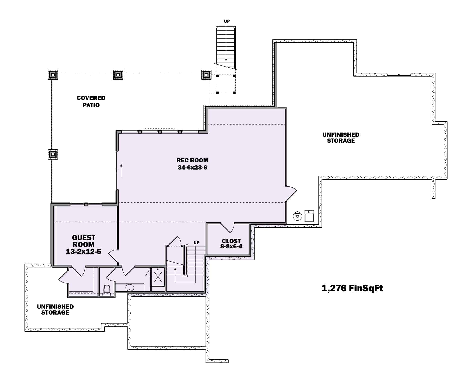
Basement
Basement
Plan Collection

Can I modify this plan?

Yes! This plan can be customized—contact us for a free quote.

Additional Notes from Designer

PLEASE NOTE! This designer's plans do NOT come with framing!

House Plan Description

Enjoy the immeasurable beauty of this Contemporary home. You are greeted by an enclosed porch that exudes lots of natural light.  A good combination of wood and stone materials on its exterior plus a dignified positioning of roof levels make a lasting favorable impression.  The amazing home's 1-story floor plan has 2536 square feet of heated and cooled living space with a 1276-square-foot finished basement that is utilized and maximized in every available square inch. You'll love these wonderful amenities which include:

• Fireplace in...

Home Details

Summary
Plan #:161-1162
Starting at:$1750.00
Floors:1
Bedrooms:2
Full Baths:2
Half Baths:1
Garage:
Square Footage
Heated Area:3812 Sq. Ft.
Basement:1276 Sq. Ft.
First Floor:2536 Sq. Ft.
Unheated Area:
Basement:1215 Sq. Ft.
Garage:1193 Sq. Ft.
Porch:760 Sq. Ft.
Dimensions
Width:87' 6''
Architectural Styles
Exterior Wall Material
StuccoRock/StoneWood Siding
Roofing Type
GableShed
Roofing Material
Asphalt Shingles
Roof Pitch
3/12
Ceiling Height
10 Foot Ceiling9 Foot Ceiling
Special Feature
FireplaceDining RoomMud RoomFamily RoomSplit BathroomStorageDenOpen Floor Plan
Garage Type
Attached GarageFront Entry
Fireplaces
One Fireplace
Exterior Wall Framing
2x6
Kitchen Features
Kitchen IslandWalk-in PantryPeninsula/Eating Bar
Porches and Exterior Features
Covered Front PorchSundeck
Master Suite Features
Main Floor MasterMaster BathroomWalk In ClosetSplit Master Bedroom

What’s Included

Most plan sets include the following:

icon text-secondary-400 includedExterior elevations

icon text-secondary-400 includedMain Floor plan

icon text-secondary-400 includedArchitectural’ Foundation Plan

icon text-secondary-400 includedArchitectural’ Roof Plan

icon text-secondary-400 includedSections

icon text-secondary-400 includedMain Floor Electrical Plan

icon text-secondary-400 includedNo Framing

What’s Not Included

These items are  NOT included:

icon text-secondary-400 includedArchitectural or Engineering Stamp - handled locally if required.

icon text-secondary-400 includedSite Plan - handled locally when required.

icon text-secondary-400 includedPlumbing Drawings (drawings showing the actual plumbing pipe sizes and locations) - your subcontractors handle this.

icon text-secondary-400 includedEnergy calculations - handled locally when required.

Related House Plans

Plan Collection
Plan Collection
Plan Collection
Plan#161-1042
Starting at$2200
3321
Sq Ft
1
Story
2
Bed
2.5
Bath
3
Car
Plan Collection
Plan Collection
Plan Collection
Plan#161-1091
Starting at$2200
3469
Sq Ft
1
Story
2
Bed
2.5
Bath
4
Car
Plan Collection
Plan Collection
Plan Collection
Plan#161-1129
Starting at$1950
3082
Sq Ft
1
Story
2
Bed
2.5
Bath
3
Car
View All

Other Plans By This Designer

Plan Collection
Plan Collection
Plan Collection
Plan#161-1145
Starting at$2650
3907
Sq Ft
2
Story
4
Bed
3.5
Bath
3
Car
Plan Collection
Plan Collection
Plan Collection
Plan#161-1077
Starting at$4500
6563
Sq Ft
2
Story
5
Bed
5.5
Bath
5
Car
Plan Collection
Plan Collection
Plan Collection
Plan#161-1084
Starting at$4200
5170
Sq Ft
2
Story
5
Bed
5.5
Bath
3
Car