4-Bedroom, 3722 Sq Ft Farmhouse Plan with Covered Rear Porch

Color rendering of Farmhouse home plan (ThePlanCollection: House Plan #116-1090)

Images/Plans copyrighted by designer. Photos may reflect homeowner modifications.

About House Plan #116-1090

Sq Ft
3722
Sq Ft
Bedrooms
4
Bedrooms
Bathroom
3
Baths
Half Baths
0
Half Baths
Bedrooms
3
Cars
Bedrooms
2
Stories
Bedrooms
76' 0'
Width
Bedrooms
96
Depth
Starting at$4247.43What's included
STEP 1Bedrooms
STEP 2Bedrooms
STEP 3Bedrooms

Subtotal:$0
Plan Collection

How much will it cost to build?

Estimate your costs based on your location and materials.

Free Cost Instant Estimator

Floor Plans

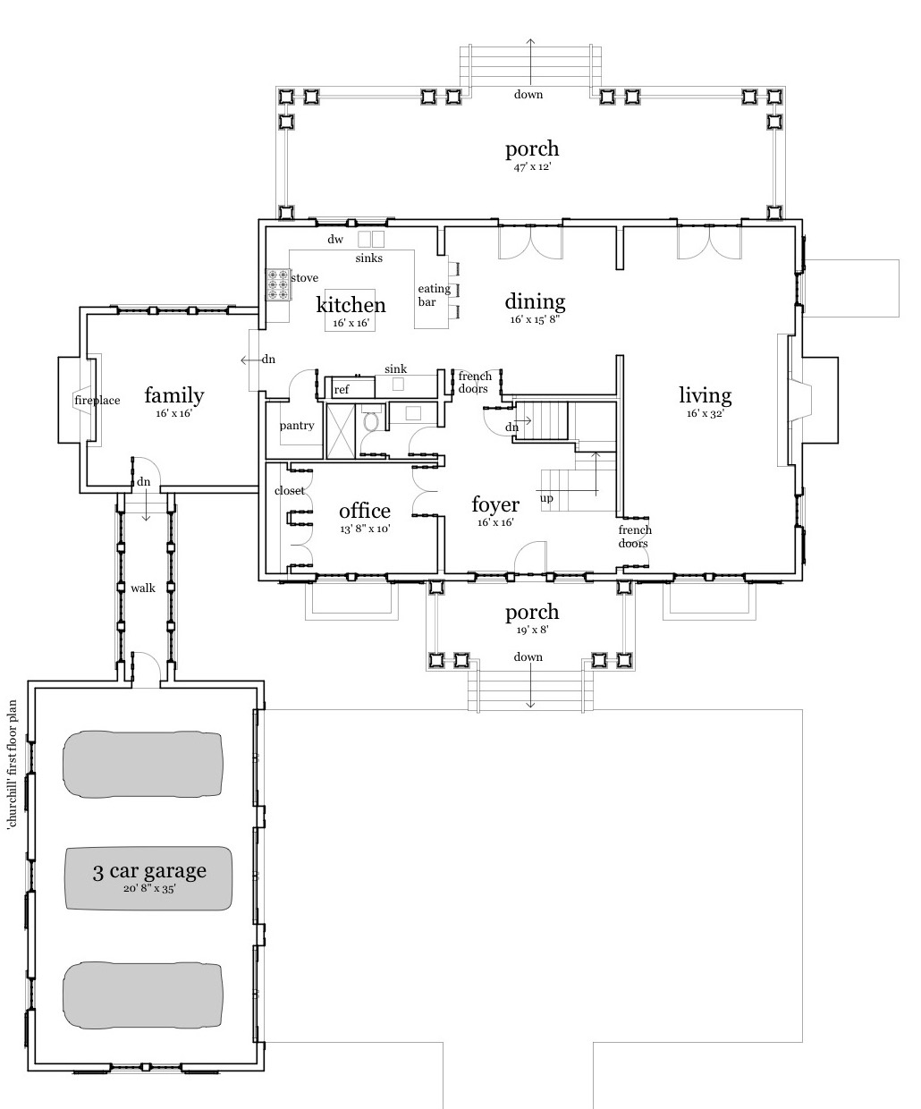
Floor Plan Main Level
Floor Plan Main Level
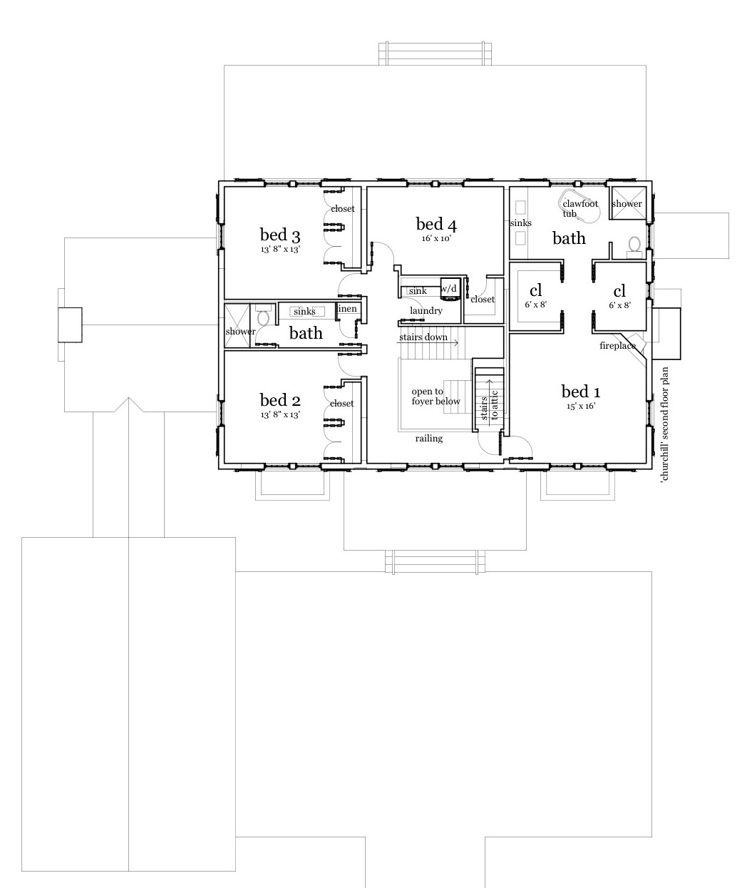
Floor Plan Upper Level
Floor Plan Upper Level
Floor Plan Basement
Floor Plan Basement
Plan Collection

Can I modify this plan?

Yes! This plan can be customized—contact us for a free quote.

Additional Notes from Designer

CAD files for this plan will be delivered in both DXF (AutoCad readable) and Sketchup Pro formats.

House Plan Description

This exquisite Farmhouse style home plan with Country influences (House Plan #116-1090) has 3722 square feet of living space. The 2 story floor plan includes 4 bedrooms and 3 bathrooms.

Home Details

Summary
Plan #:116-1090
Starting at:$4247.43
Floors:2
Bedrooms:4
Full Baths:3
Half Baths:0
Garage:
Square Footage
Heated Area:3722 Sq. Ft.
First Floor:2033 Sq. Ft.
Second Floor:1689 Sq. Ft.
Unheated Area:
Garage:800 Sq. Ft.
Dimensions
Architectural Styles
Exterior Wall Material
Rock/Stone
Roofing Type
Gable
Roofing Material
Metal
Ceiling Height
10 Foot Ceiling9 Foot Ceiling
Special Feature
FireplaceDining RoomHome OfficeFamily RoomSplit BathroomStorageSecond Level LaundryOpen Floor Plan
Garage Type
Attached GarageCourtyard Entry
Fireplaces
Three Fireplaces
Exterior Wall Framing
2x8
Kitchen Features
Nook/Breakfast AreaWalk-in PantryPeninsula/Eating BarEat-In Kitchen
Porches and Exterior Features
Covered Front PorchCovered Rear Porch
Master Suite Features
Fireplace in MasterMaster BathroomWalk In ClosetSecond Floor Master

What’s Included

Most plan sets include the following:

icon text-secondary-400 includedFloor plans

icon text-secondary-400 includedExterior elevations

icon text-secondary-400 includedBuilding sections

icon text-secondary-400 includedFoundation plan

icon text-secondary-400 includedFloor & Roof structure layouts

icon text-secondary-400 includedWall section

icon text-secondary-400 includedNotes

icon text-secondary-400 includedElectrical layout (switches, outlets)

icon text-secondary-400 includedUnlimited license

What’s Not Included

These items are  NOT included:

icon text-secondary-400 includedArchitectural or Engineering Stamp - handled locally if required.

icon text-secondary-400 includedSite Plan - handled locally when required.

icon text-secondary-400 includedMechanical Drawings (location of heating and air equipment and ductwork) - your subcontractors handle this.

icon text-secondary-400 includedPlumbing Drawings (drawings showing the actual plumbing pipe sizes and locations) - your subcontractors handle this.

icon text-secondary-400 includedEnergy calculations - handled locally when required.

Related House Plans

Plan Collection
Plan Collection
Plan Collection
Plan#116-1080
Starting at$0
3885
Sq Ft
2
Story
4
Bed
3.5
Bath
3
Car
Plan Collection
Plan Collection
Plan Collection
Plan#161-1067
Starting at$2400
3897
Sq Ft
2
Story
4
Bed
3.5
Bath
3
Car
Plan Collection
Plan Collection
Plan Collection
Plan#120-2176
Starting at$1255
3124
Sq Ft
2
Story
4
Bed
3.5
Bath
2
Car
View All

Other Plans By This Designer

Plan Collection
Plan Collection
Plan Collection
Plan#116-1106
Starting at$0
5165
Sq Ft
2
Story
5
Bed
5.5
Bath
3
Car
Plan Collection
Plan Collection
Plan Collection
Plan#116-1086
Starting at$0
2616
Sq Ft
2
Story
2
Bed
2.5
Bath
0
Car
Plan Collection
Plan Collection
Plan Collection
Plan#116-1126
Starting at$0
750
Sq Ft
1
Story
2
Bed
1
Bath
0
Car