4-Bedroom, 3600 Sq Ft Ranch Plan with Master Bathroom

Main image for house plan # 13899

Images/Plans copyrighted by designer. Photos may reflect homeowner modifications.

About House Plan #101-1699

Sq Ft
3600
Sq Ft
Bedrooms
4
Bedrooms
Bathroom
2
Baths
Half Baths
0
Half Baths
Bedrooms
3
Cars
Bedrooms
1
Stories
Bedrooms
73' 0'
Width
Bedrooms
61
Depth
Starting at$1620.00What's included
STEP 1Bedrooms
STEP 2Bedrooms
STEP 3Bedrooms

Subtotal:$0
Plan Collection

How much will it cost to build?

Estimate your costs based on your location and materials.

Free Cost Instant Estimator

Floor Plans

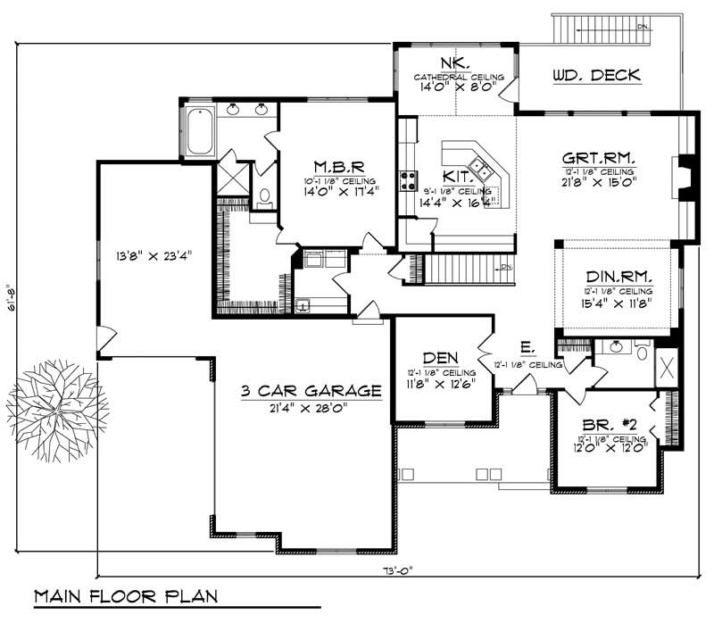
MAIN FLOOR PLAN
MAIN FLOOR PLAN
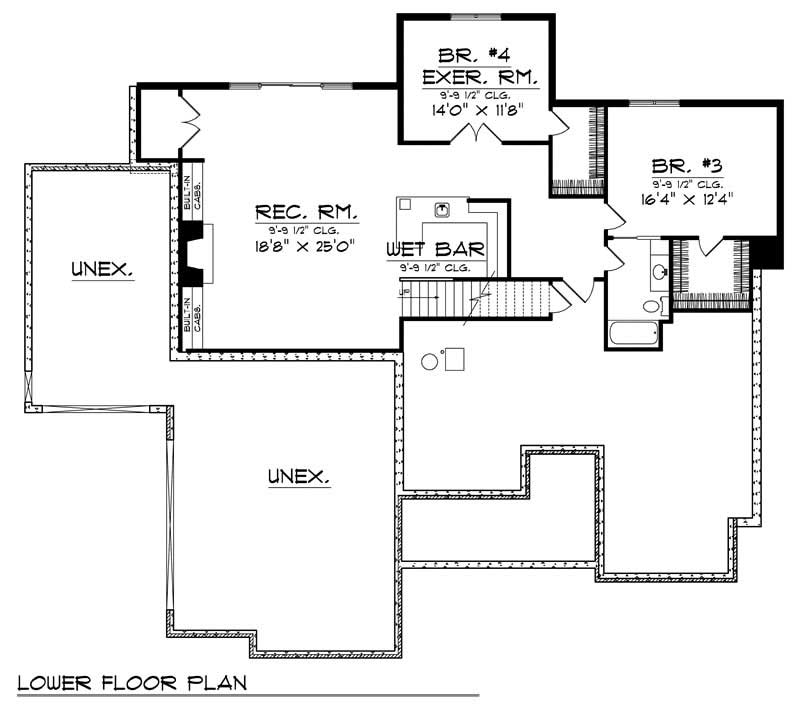
BASEMENT FLOOR PLAN
BASEMENT FLOOR PLAN
Plan Collection

Can I modify this plan?

Yes! This plan can be customized—contact us for a free quote.

House Plan Description

Shuttered windows, impressive columns and graceful arches are just some of the European details that make this home spectacular. Inside, an open floor plan features a kitchen, nook, great room and dining room that all flow easily together to create a living space that’s perfect for any size family. The master suite is tucked behind the garage and will make mom smile with its spacious walk-in closet and Jacuzzi tub. The second bedroom is located just off the entry for maximum privacy, and has access to the bath off the hall. Downstairs you’ll find two more bedrooms, each with a walk-in closet,...

Home Details

Summary
Plan #:101-1699
Starting at:$1620.00
Floors:1
Bedrooms:4
Full Baths:2
Half Baths:0
Garage:
Square Footage
Heated Area:3600 Sq. Ft.
First Floor:2194 Sq. Ft.
Unheated Area:
Basement:1406 Sq. Ft.
Dimensions
Depth:61' 8''
Architectural Styles
Exterior Wall Material
Vinyl SidingRock/StoneShakes
Roof Pitch
10/12
Ceiling Height
9 Foot Ceiling
Special Feature
Dining Room
Garage Type
Attached Garage
Exterior Wall Framing
2x6

What’s Included

Most plan sets include the following:

icon text-secondary-400 includedFront, Back & Side Elevations

icon text-secondary-400 includedFloor Plans

icon text-secondary-400 includedElectrical Layout (location of outlets, switches, etc. - it does not have wiring schematics)

icon text-secondary-400 includedRoof Plan (Birdseye view)

icon text-secondary-400 includedFoundation Layout

icon text-secondary-400 includedWall & Stair Sections

icon text-secondary-400 includedCross Section

icon text-secondary-400 includedKitchen Layout

icon text-secondary-400 includedGeneral Notes

What’s Not Included

These items are  NOT included:

icon text-secondary-400 includedArchitectural or Engineering Stamp - handled locally if required.

icon text-secondary-400 includedSite Plan - handled locally when required.

icon text-secondary-400 includedMechanical Drawings (location of heating and air equipment and ductwork) - your subcontractors handle this.

icon text-secondary-400 includedPlumbing Drawings (drawings showing the actual plumbing pipe sizes and locations) - your subcontractors handle this.

icon text-secondary-400 includedFraming layouts with beam sizes and locations.

icon text-secondary-400 includedEnergy calculations - handled locally when required.

Related House Plans

Plan Collection
Plan Collection
Plan Collection
Plan#141-1038
Starting at$1570
2800
Sq Ft
1
Story
4
Bed
2.5
Bath
3
Car
Plan Collection
Plan Collection
Plan Collection
Plan#189-1117
Starting at$1595
3401
Sq Ft
1
Story
4
Bed
2.5
Bath
2
Car
Plan Collection
Plan Collection
Plan Collection
Plan#153-1751
Starting at$1100
2833
Sq Ft
1
Story
4
Bed
2.5
Bath
2
Car
View All

Other Plans By This Designer

Plan Collection
Plan Collection
Plan Collection
Plan#101-2006
Starting at$0
4724
Sq Ft
2
Story
4
Bed
4.5
Bath
4
Car
Plan Collection
Plan Collection
Plan Collection
Plan#101-2024
Starting at$1180
3235
Sq Ft
1
Story
5
Bed
3.5
Bath
3
Car
Plan Collection
Plan Collection
Plan Collection
Plan#101-2028
Starting at$0
4406
Sq Ft
2
Story
4
Bed
3.5
Bath
4
Car