4-Bedroom, 3490 Sq Ft French Plan with Nook/Breakfast Area

Front elevation of French home (ThePlanCollection: House Plan #197-1016)

Images/Plans copyrighted by designer. Photos may reflect homeowner modifications.

About House Plan #197-1016

Sq Ft
3490
Sq Ft
Bedrooms
4
Bedrooms
Bathroom
3
Baths
Half Baths
1
Half Baths
Bedrooms
2
Cars
Bedrooms
2
Stories
Bedrooms
65' 1'
Width
Bedrooms
69
Depth
Starting at$995.00What's included
STEP 1Bedrooms
STEP 2Bedrooms
STEP 3Bedrooms

Subtotal:$0
Plan Collection

How much will it cost to build?

Estimate your costs based on your location and materials.

Free Cost Instant Estimator

Floor Plans

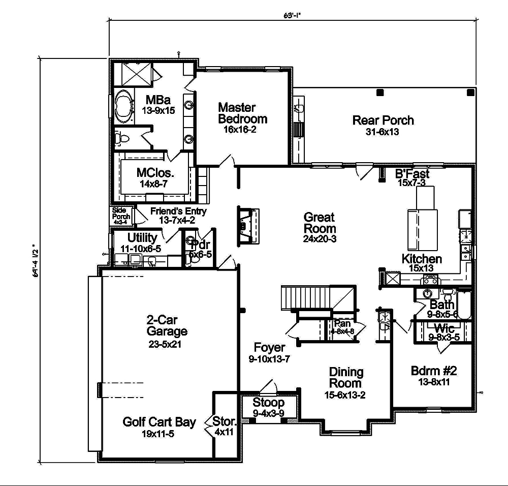
Floor Plan Main Level
Floor Plan Main Level
Floor Plan Upper Level
Floor Plan Upper Level
Plan Collection

Can I modify this plan?

Yes! This plan can be customized—contact us for a free quote.

Additional Notes from Designer

PLEASE NOTE! If doing modifications, you MUST purchase a PDF, 5 Set + PDF or CAD

House Plan Description

This lovely French style home with Acadian influences (House Plan #197-1016) has 3490 square feet of living space. The 2 story floor plan includes 4 bedrooms.

Home Details

Summary
Plan #:197-1016
Starting at:$995.00
Floors:2
Bedrooms:4
Full Baths:3
Half Baths:1
Garage:
Square Footage
Heated Area:3490 Sq. Ft.
First Floor:2616 Sq. Ft.
Second Floor:874 Sq. Ft.
Unheated Area:
Garage:779 Sq. Ft.
Porch:469 Sq. Ft.
Dimensions
Width:65' 1''
Depth:69' 5''
Architectural Styles
Exterior Wall Material
BrickStucco
Roofing Type
Half Hip
Roofing Material
Asphalt ShinglesMetal
Roof Pitch
12/128/12
Ceiling Height
10 Foot Ceiling9 Foot Ceiling
Special Feature
FireplaceDining RoomMain Level LaundrySplit BathroomStorageDenOpen Floor Plan
Garage Type
Attached GarageSide Entry
Fireplaces
One Fireplace
Exterior Wall Framing
2x4
Kitchen Features
Kitchen IslandNook/Breakfast AreaWalk-in PantryOutdoor KitchenPeninsula/Eating BarEat-In Kitchen
Porches and Exterior Features
Covered Front PorchCovered Rear PorchFriend's Entry
Master Suite Features
Main Floor MasterMaster BathroomWalk In ClosetSplit Master Bedroom

What’s Included

Most plan sets include the following:

icon text-secondary-400 includedCover Sheet

icon text-secondary-400 includedFoundation Plan & Footing Details

icon text-secondary-400 includedFloor Plans

icon text-secondary-400 includedExterior Elevations

icon text-secondary-400 includedRoof Plan

icon text-secondary-400 includedBuilding Section

icon text-secondary-400 includedElectrical Layout

What’s Not Included

These items are  NOT included:

icon text-secondary-400 includedArchitectural or Engineering Stamp - handled locally if required.

icon text-secondary-400 includedSite Plan - handled locally when required.

icon text-secondary-400 includedMechanical Drawings (location of heating and air equipment and ductwork) - your subcontractors handle this.

icon text-secondary-400 includedPlumbing Drawings (drawings showing the actual plumbing pipe sizes and locations) - your subcontractors handle this.

icon text-secondary-400 includedEnergy calculations - handled locally when required.

Related House Plans

Plan Collection
Plan Collection
Plan Collection
Plan#116-1080
Starting at$0
3885
Sq Ft
2
Story
4
Bed
3.5
Bath
3
Car
Plan Collection
Plan Collection
Plan Collection
Plan#161-1067
Starting at$2400
3897
Sq Ft
2
Story
4
Bed
3.5
Bath
3
Car
Plan Collection
Plan Collection
Plan Collection
Plan#120-2176
Starting at$1255
3124
Sq Ft
2
Story
4
Bed
3.5
Bath
2
Car
View All

Other Plans By This Designer

Plan Collection
Plan Collection
Plan Collection
Plan#197-1004
Starting at$595
1672
Sq Ft
1
Story
3
Bed
2
Bath
2
Car
Plan Collection
Plan Collection
Plan Collection
Plan#197-1023
Starting at$1145
3775
Sq Ft
2
Story
5
Bed
4.5
Bath
3
Car
Plan Collection
Plan Collection
Plan Collection
Plan#197-1001
Starting at$645
2246
Sq Ft
2
Story
4
Bed
3
Bath
2
Car