4-Bedroom, 3438 Sq Ft Cottage Plan with Flex Space

Front elevation of Cottage home (ThePlanCollection: House Plan #212-1012)

Images/Plans copyrighted by designer. Photos may reflect homeowner modifications.

About House Plan #212-1012

Sq Ft
3438
Sq Ft
Bedrooms
4
Bedrooms
Bathroom
3
Baths
Half Baths
1
Half Baths
Bedrooms
3
Cars
Bedrooms
2
Stories
Bedrooms
70' 0'
Width
Bedrooms
76
Depth
Starting at$1795.00What's included
STEP 1Bedrooms
STEP 2Bedrooms
STEP 3Bedrooms

Subtotal:$0
Plan Collection

How much will it cost to build?

Estimate your costs based on your location and materials.

Free Cost Instant Estimator

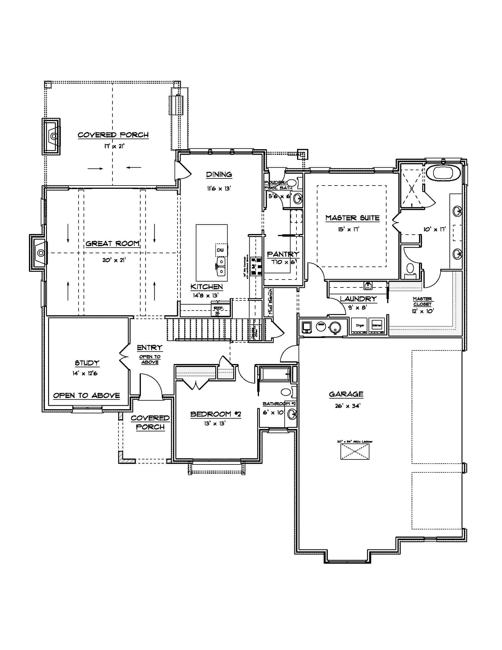
Floor Plans

Main Level
Main Level
Upper Level
Upper Level
Plan Collection

Can I modify this plan?

Yes! This plan can be customized—contact us for a free quote.

House Plan Description

This 4 bedroom, 3.5 bath Cottage-style home with Tudor influences has plenty of space for a growing family. With 3438 square feet and a 3-car garage, this fabulous home has everything you need along with these amenities:

  • Main Level Master
  • Mudroom
  • Gameroom
  • Study/Flex Space

Home Details

Summary
Plan #:212-1012
Starting at:$1795.00
Floors:2
Bedrooms:4
Full Baths:3
Half Baths:1
Garage:
Square Footage
Heated Area:3438 Sq. Ft.
First Floor:2416 Sq. Ft.
Second Floor:1022 Sq. Ft.
Unheated Area:
Garage:945 Sq. Ft.
Dimensions
Depth:76' 6''
Architectural Styles
Exterior Wall Material
Brick
Roofing Type
Gable
Roofing Material
Asphalt Shingles
Roof Pitch
9/1210/1214/12
Ceiling Height
10 Foot Ceiling
Special Feature
FireplaceHome OfficeMud RoomGame RoomMain Level LaundryOpen Floor Plan
Garage Type
Attached Garage
Fireplaces
One Fireplace
Exterior Wall Framing
2x4
Kitchen Features
Kitchen IslandWalk-in Pantry
Porches and Exterior Features
Covered Front PorchCovered Rear Porch
Master Suite Features
Main Floor MasterMaster BathroomWalk In Closet

What’s Included

Most plan sets include the following:

icon text-secondary-400 includedCover Sheet

icon text-secondary-400 includedExterior Elevations: Shows the front, rear and sides of the home

icon text-secondary-400 includedFloor Plans: Shows the placement of walls and the dimensions for rooms, doors, windows, stairways, etc. for each floor.

icon text-secondary-400 includedElectrical Layout Plans: Shows the location of outlets, fixtures and switches.

icon text-secondary-400 includedSlab Foundation Plan

icon text-secondary-400 includedRoof Layout Plan

icon text-secondary-400 includedStick Roof Framing Plan

What’s Not Included

These items are  NOT included:

icon text-secondary-400 includedArchitectural or Engineering Stamp - handled locally if required.

icon text-secondary-400 includedSite Plan - handled locally when required.

icon text-secondary-400 includedMechanical Drawings (location of heating and air equipment and ductwork) - your subcontractors handle this.

icon text-secondary-400 includedPlumbing Drawings (drawings showing the actual plumbing pipe sizes and locations) - your subcontractors handle this.

icon text-secondary-400 includedEnergy calculations - handled locally when required.

Related House Plans

Plan Collection
Plan Collection
Plan Collection
Plan#161-1067
Starting at$2400
3897
Sq Ft
2
Story
4
Bed
3.5
Bath
3
Car
Plan Collection
Plan Collection
Plan Collection
Plan#193-1072
Starting at$2450
3342
Sq Ft
2
Story
4
Bed
3.5
Bath
3
Car
Plan Collection
Plan Collection
Plan Collection
Plan#161-1145
Starting at$2650
3907
Sq Ft
2
Story
4
Bed
3.5
Bath
3
Car
View All

Other Plans By This Designer

Plan Collection
Plan Collection
Plan Collection
Plan#212-1008
Starting at$1545
2768
Sq Ft
2
Story
3
Bed
3
Bath
3
Car
Plan Collection
Plan Collection
Plan Collection
Plan#212-1011
Starting at$1295
2205
Sq Ft
1
Story
3
Bed
2.5
Bath
3
Car
Plan Collection
Plan Collection
Plan Collection
Plan#212-1010
Starting at$1195
2000
Sq Ft
1
Story
3
Bed
2.5
Bath
3
Car