2-4 Bedroom, 3224-5548 Sq Ft Transitional Plan with Home Office

Front elevation of Transitional home (ThePlanCollection: House Plan #161-1220)

Images/Plans copyrighted by designer. Photos may reflect homeowner modifications.

About House Plan #161-1220

Sq Ft
3224
Sq Ft
Bedrooms
2
Bedrooms
Bathroom
2
Baths
Half Baths
1
Half Baths
Bedrooms
4
Cars
Bedrooms
1
Stories
Bedrooms
118' 0'
Width
Bedrooms
63
Depth
Starting at$2200.00What's included
STEP 1Bedrooms
STEP 2Bedrooms
STEP 3Bedrooms

Subtotal:$0
Plan Collection

How much will it cost to build?

Estimate your costs based on your location and materials.

Free Cost Instant Estimator

Floor Plans

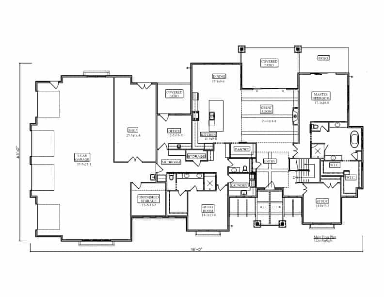
Main Level
Main Level
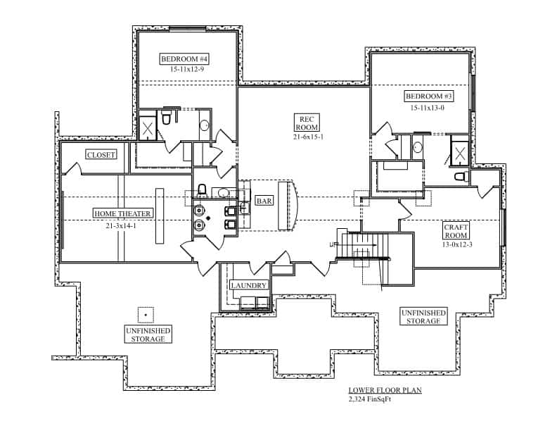
Basement Option Layout
Basement Option Layout
Plan Collection

Can I modify this plan?

Yes! This plan can be customized—contact us for a free quote.

Additional Notes from Designer

PLEASE NOTE! This designer's plans do NOT come with framing!

Note 1: The optional finished basement includes an additional 2,324 square feet, 2 more bedrooms, 2.5 more baths, and a rec room.

Note 2: Alternative foundations for this plan may be available as a modification. Please complete and submit our "Modify this Plan" form to get a free quote.

Note 3: Porch sq ft figures may include any deck sq ft as well.

House Plan Description

This breathtaking Ranch home is a fusion of classic and modern elements, with 3,224 square feet of living space. With 2 bedrooms, including a guest room, 2.5 baths, and a 4-car garage, this home has everything you need and more.

Upon entering, you are welcomed by a convenient mudroom, perfect for storing all your outdoor gear. The guest room, with its separate entrance, is ideal for visitors or a home office. The spacious Great Room is perfect for entertaining guests or just relaxing with the family.

The kitchen is a chef's dream with its walk-in pantry and ample...

Home Details

Summary
Plan #:161-1220
Starting at:$2200.00
Floors:1
Bedrooms:2
Full Baths:2
Half Baths:1
Garage:
Square Footage
Heated Area:3224 Sq. Ft.
Basement:2324 Sq. Ft.
First Floor:3224 Sq. Ft.
Unheated Area:
Basement:908 Sq. Ft.
Garage:2462 Sq. Ft.
Porch:812 Sq. Ft.
Dimensions
Architectural Styles
Exterior Wall Material
Vinyl SidingBrickRock/StoneWood Siding
Roofing Type
Gable/Dormer
Roofing Material
Asphalt ShinglesMetal
Roof Pitch
12/1210/12
Special Feature
FireplaceGuest RoomHome OfficeMud RoomFamily RoomMain Level LaundryLibraryColor PhotosOpen Floor PlanInterior Photos
Garage Type
Attached GarageCourtyard Entry
Fireplaces
One Fireplace
Exterior Wall Framing
2x6
Building Lot Type
Flat Site
Kitchen Features
Kitchen IslandWalk-in PantryPeninsula/Eating BarEat-In Kitchen
Porches and Exterior Features
CourtyardCovered Front PorchPatioCovered Rear Patio
Master Suite Features
Main Floor MasterMaster BathroomWalk In ClosetPrivate DeckSplit Master Bedroom

What’s Included

Most plan sets include the following:

icon text-secondary-400 includedExterior elevations

icon text-secondary-400 includedMain Floor plan

icon text-secondary-400 includedArchitectural’ Foundation Plan

icon text-secondary-400 includedArchitectural’ Roof Plan

icon text-secondary-400 includedSections

icon text-secondary-400 includedMain Floor Electrical Plan

icon text-secondary-400 includedNo Framing

What’s Not Included

These items are  NOT included:

icon text-secondary-400 includedArchitectural or Engineering Stamp - handled locally if required.

icon text-secondary-400 includedSite Plan - handled locally when required.

icon text-secondary-400 includedPlumbing Drawings (drawings showing the actual plumbing pipe sizes and locations) - your subcontractors handle this.

icon text-secondary-400 includedEnergy calculations - handled locally when required.

Related House Plans

Plan Collection
Plan Collection
Plan Collection
Plan#194-1010
Starting at$1395
2605
Sq Ft
1
Story
2
Bed
2.5
Bath
3
Car
Plan Collection
Plan Collection
Plan Collection
Plan#161-1085
Starting at$1750
2593
Sq Ft
1
Story
2
Bed
2.5
Bath
3
Car
Plan Collection
Plan Collection
Plan Collection
Plan#161-1042
Starting at$2200
3321
Sq Ft
1
Story
2
Bed
2.5
Bath
3
Car
View All

Other Plans By This Designer

Plan Collection
Plan Collection
Plan Collection
Plan#161-1145
Starting at$2650
3907
Sq Ft
2
Story
4
Bed
3.5
Bath
3
Car
Plan Collection
Plan Collection
Plan Collection
Plan#161-1077
Starting at$4500
6563
Sq Ft
2
Story
5
Bed
5.5
Bath
5
Car
Plan Collection
Plan Collection
Plan Collection
Plan#161-1084
Starting at$4200
5170
Sq Ft
2
Story
5
Bed
5.5
Bath
3
Car