4-Bedroom, 2873 Sq Ft Country Plan with Outdoor Kitchen

Front elevation of Country home (ThePlanCollection: House Plan #138-1240)

Images/Plans copyrighted by designer. Photos may reflect homeowner modifications.

About House Plan #138-1240

Sq Ft
2873
Sq Ft
Bedrooms
4
Bedrooms
Bathroom
3
Baths
Half Baths
1
Half Baths
Bedrooms
2
Cars
Bedrooms
2
Stories
Bedrooms
70' 4'
Width
Bedrooms
45
Depth
Starting at$1250.00What's included
STEP 1Bedrooms
STEP 2Bedrooms
STEP 3Bedrooms

Subtotal:$0
Plan Collection

How much will it cost to build?

Estimate your costs based on your location and materials.

Free Cost Instant Estimator

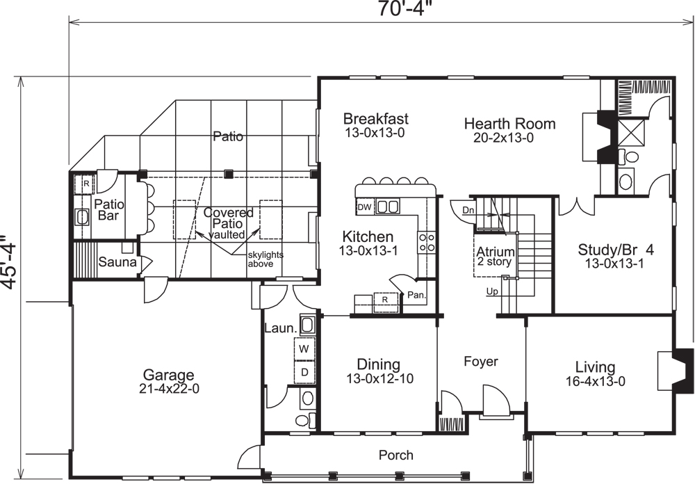
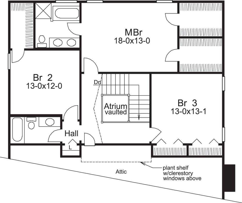
Floor Plans

Floor Plan Main Level
Floor Plan Main Level
Floor Plan Upper Level
Floor Plan Upper Level
Plan Collection

Can I modify this plan?

Yes! This plan can be customized—contact us for a free quote.

Additional Notes from Designer

PLEASE NOTE: Not all plans from this designer can be modified! Please check before sending in a mod request. Thank you!

House Plan Description

This lovely Country style home with Traditional influences (House Plan #138-1240) has 2873 square feet of living space. The 2 story floor plan includes 4 bedrooms.

Home Details

Summary
Plan #:138-1240
Starting at:$1250.00
Floors:2
Bedrooms:4
Full Baths:3
Half Baths:1
Garage:
Square Footage
Heated Area:2873 Sq. Ft.
First Floor:1724 Sq. Ft.
Second Floor:1149 Sq. Ft.
Unheated Area:
Dimensions
Width:70' 4''
Depth:45' 4''
Architectural Styles
Exterior Wall Material
Vinyl SidingWood Siding
Roofing Type
GableGable/Shed Dormer
Roofing Material
Asphalt Shingles
Special Feature
FireplaceDining RoomHome OfficeMain Level LaundryColor PhotosStorageOpen Floor Plan
Garage Type
Attached GarageSide Entry
Fireplaces
Two Fireplaces
Exterior Wall Framing
2x4
Kitchen Features
Nook/Breakfast AreaWalk-in PantryOutdoor KitchenPeninsula/Eating BarEat-In Kitchen
Porches and Exterior Features
Covered Front PorchPatioCovered Rear Patio
Master Suite Features
Master BathroomWalk In ClosetSecond Floor Master

What’s Included

Most plan sets include the following:

icon text-secondary-400 includedCover sheet

icon text-secondary-400 includedFoundation plan

icon text-secondary-400 includedFloor plans

icon text-secondary-400 includedExterior elevations

icon text-secondary-400 includedRoof plan

icon text-secondary-400 includedDetails Sheet

icon text-secondary-400 includedSections

icon text-secondary-400 includedInterior elevations

What’s Not Included

These items are  NOT included:

icon text-secondary-400 includedArchitectural or Engineering Stamp - handled locally if required.

icon text-secondary-400 includedSite Plan - handled locally when required.

icon text-secondary-400 includedMechanical Drawings (location of heating and air equipment and ductwork) - your subcontractors handle this.

icon text-secondary-400 includedPlumbing Drawings (drawings showing the actual plumbing pipe sizes and locations) - your subcontractors handle this.

icon text-secondary-400 includedEnergy calculations - handled locally when required.

Related House Plans

Plan Collection
Plan Collection
Plan Collection
Plan#153-1020
Starting at$1200
2373
Sq Ft
2
Story
4
Bed
3
Bath
3
Car
Plan Collection
Plan Collection
Plan Collection
Plan#153-1786
Starting at$1200
2363
Sq Ft
2
Story
4
Bed
3
Bath
2
Car
Plan Collection
Plan Collection
Plan Collection
Plan#120-2176
Starting at$1255
3124
Sq Ft
2
Story
4
Bed
3.5
Bath
2
Car
View All

Other Plans By This Designer

Plan Collection
Plan Collection
Plan Collection
Plan#138-1209
Starting at$450
421
Sq Ft
1
Story
1
Bed
1
Bath
1
Car
Plan Collection
Plan Collection
Plan Collection
Plan#138-1314
Starting at$1050
1536
Sq Ft
1
Story
4
Bed
2
Bath
0
Car
Plan Collection
Plan Collection
Plan Collection
Plan#138-1315
Starting at$1050
1536
Sq Ft
1
Story
4
Bed
2
Bath
0
Car