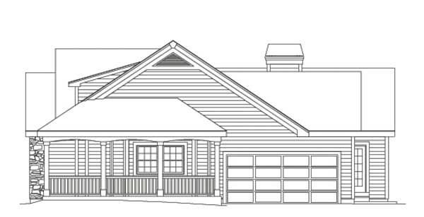
2029 Sq Ft, 3 Bedroom Country House Plan with Wrap Around Porch

Color rendering of country home with wraparound porch (ThePlanCollection: House Plan #138-1002)

Images/Plans copyrighted by designer. Photos may reflect homeowner modifications.

About House Plan #138-1002

Sq Ft
2029
Sq Ft
Bedrooms
3
Bedrooms
Bathroom
2
Baths
Half Baths
0
Half Baths
Bedrooms
2
Cars
Bedrooms
1
Stories
Bedrooms
67' 0'
Width
Bedrooms
51
Depth
Starting at$1150.00What's included
STEP 1Bedrooms
STEP 2Bedrooms
STEP 3Bedrooms

Subtotal:$0
Plan Collection

How much will it cost to build?

Estimate your costs based on your location and materials.

Free Cost Instant Estimator

Floor Plans

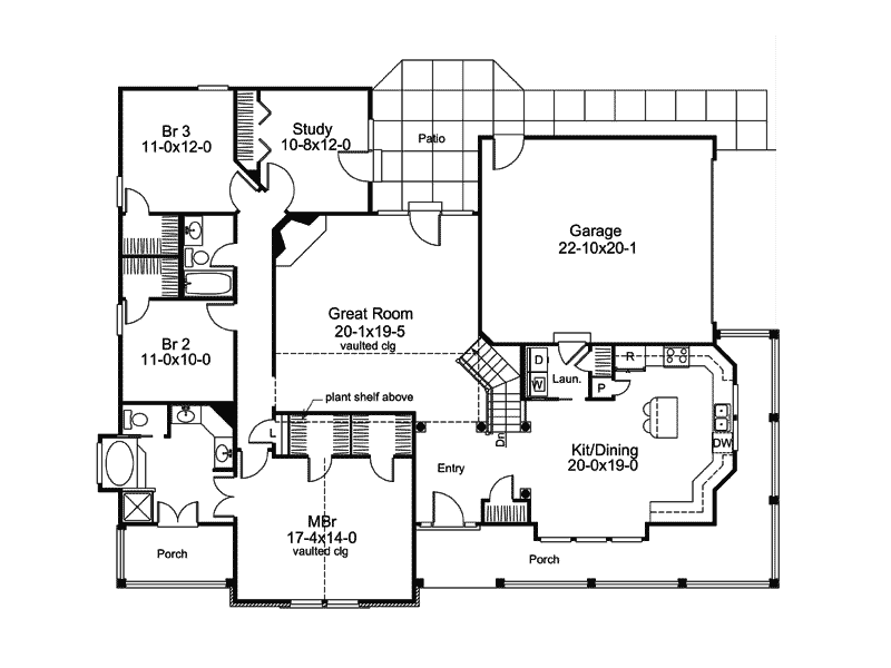
Floor Plan Main Level
Floor Plan Main Level
Plan Collection

Can I modify this plan?

Yes! This plan can be customized—contact us for a free quote.

Additional Notes from Designer

PLEASE NOTE: Not all plans from this designer can be modified! Please check before sending in a mod request. Thank you!

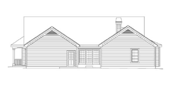
House Plan Description

This inviting country ranch home with wraparound porch has 2029 square feet of living space. The 1-story floor plan includes 3 bedrooms. The mix of stonework, gables and dormers creates for a home with remarkable curb appeal. From the entry hall, you are greate to a great room with 14-foot vaulted ceilings and a corner fireplace. The spacious kitchen includes an island with seating and a generous dining area with windows out to the wraparound porch. The master suite wiht a 12-foot vaulted ceilng includes his-and-her walk-in closets, double doors to the master bath with double vanities...

Home Details

Summary
Plan #:138-1002
Starting at:$1150.00
Floors:1
Bedrooms:3
Full Baths:2
Half Baths:0
Garage:
Square Footage
Heated Area:2029 Sq. Ft.
First Floor:2029 Sq. Ft.
Unheated Area:
Basement:1993 Sq. Ft.
Garage:459 Sq. Ft.
Dimensions
Depth:51' 4''
Ridge Height:22' 0''
Architectural Styles
Exterior Wall Material
Rock/Stone
Roofing Type
Gable
Roofing Material
Asphalt Shingles
Roof Pitch
8/1210/12
Ceiling Height
9 Foot Ceiling
Special Feature
FireplaceFamily RoomMain Level LaundryDenVaulted CeilingsOpen Floor Plan
Garage Type
Attached GarageSide Entry
Construction Methods
Structural Insulated
Fireplaces
One Fireplace
Exterior Wall Framing
2x4
Building Lot Type
Flat SiteCorner Lot
Kitchen Features
Kitchen IslandNook/Breakfast AreaWalk-in Pantry
Porches and Exterior Features
Wrap Around PorchPatio
Master Suite Features
Main Floor MasterMaster BathroomWalk In ClosetPrivate Deck

What’s Included

Most plan sets include the following:

icon text-secondary-400 includedCover sheet

icon text-secondary-400 includedFoundation plan

icon text-secondary-400 includedFloor plans

icon text-secondary-400 includedExterior elevations

icon text-secondary-400 includedRoof plan

icon text-secondary-400 includedDetails Sheet

icon text-secondary-400 includedSections

icon text-secondary-400 includedInterior elevations

What’s Not Included

These items are  NOT included:

icon text-secondary-400 includedArchitectural or Engineering Stamp - handled locally if required.

icon text-secondary-400 includedSite Plan - handled locally when required.

icon text-secondary-400 includedMechanical Drawings (location of heating and air equipment and ductwork) - your subcontractors handle this.

icon text-secondary-400 includedPlumbing Drawings (drawings showing the actual plumbing pipe sizes and locations) - your subcontractors handle this.

icon text-secondary-400 includedEnergy calculations - handled locally when required.

Related House Plans

Plan Collection
Plan Collection
Plan Collection
Plan#117-1092
Starting at$1095
2091
Sq Ft
1
Story
3
Bed
2.5
Bath
2
Car
Plan Collection
Plan Collection
Plan Collection
Plan#106-1276
Starting at$1295
2344
Sq Ft
1
Story
3
Bed
2.5
Bath
2
Car
Plan Collection
Plan Collection
Plan Collection
Plan#141-1243
Starting at$1485
1640
Sq Ft
1
Story
3
Bed
2
Bath
2
Car
View All

Other Plans By This Designer

Plan Collection
Plan Collection
Plan Collection
Plan#138-1209
Starting at$450
421
Sq Ft
1
Story
1
Bed
1
Bath
1
Car
Plan Collection
Plan Collection
Plan Collection
Plan#138-1314
Starting at$1050
1536
Sq Ft
1
Story
4
Bed
2
Bath
0
Car
Plan Collection
Plan Collection
Plan Collection
Plan#138-1315
Starting at$1050
1536
Sq Ft
1
Story
4
Bed
2
Bath
0
Car