2–4-Bedroom, 2748-4393 Sq Ft Ranch Plan with 10-Foot Ceilings

Ranch home (ThePlanCollection: Plan #161-1098)

Images/Plans copyrighted by designer. Photos may reflect homeowner modifications.

About House Plan #161-1098

Sq Ft
2748
Sq Ft
Bedrooms
2
Bedrooms
Bathroom
2
Baths
Half Baths
1
Half Baths
Bedrooms
4
Cars
Bedrooms
1
Stories
Bedrooms
111' 10'
Width
Bedrooms
98
Depth
Starting at$1950.00What's included
STEP 1Bedrooms
STEP 2Bedrooms
STEP 3Bedrooms

Subtotal:$0
Plan Collection

How much will it cost to build?

Estimate your costs based on your location and materials.

Free Cost Instant Estimator

Floor Plans

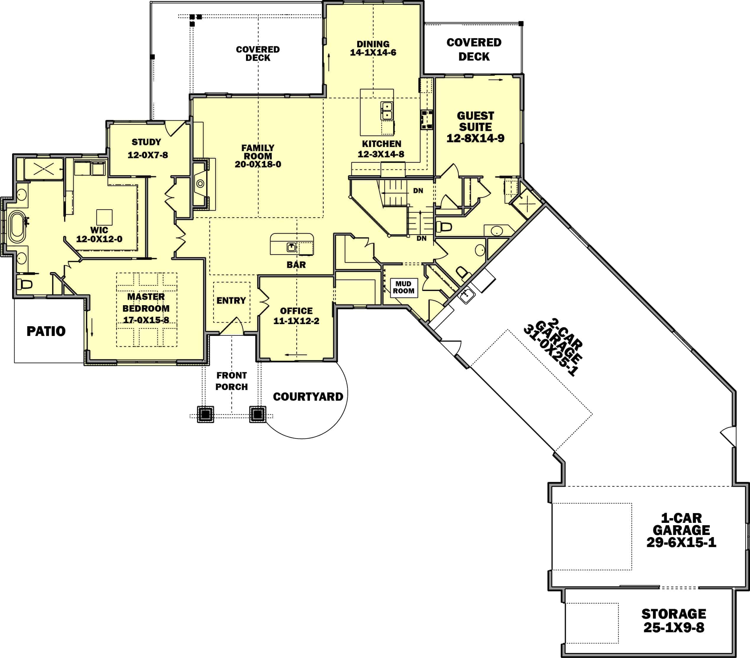
Main Level
Main Level
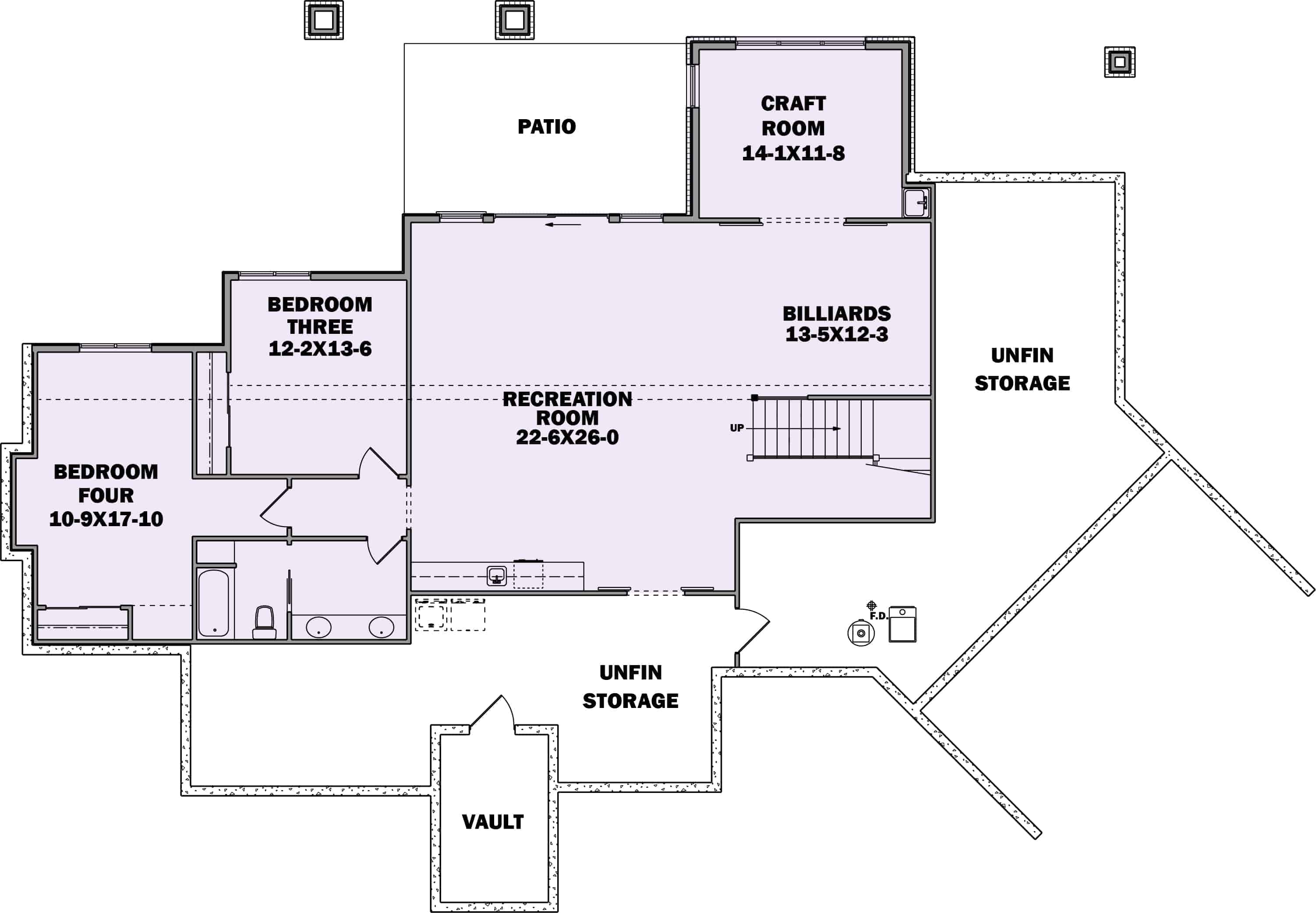
Lower Level
Lower Level
Plan Collection

Can I modify this plan?

Yes! This plan can be customized—contact us for a free quote.

Additional Notes from Designer

PLEASE NOTE! This designer's plans do NOT come with framing!

Note: If built out, the finished basement adds 1645 living square feet to the home. The unfinished part of the basement then adds 1103 unfinished square feet to the total home.

House Plan Description

This Texas style Ranch, home will your attention with its superb architectural design. Its main floor covers a total heated area of 2,748 square feet with a basement that has 1645 optional finished square feet and 1,103 square feet unfinished storage. Any car enthusiast would love its 1,820-square-foot large 4-car garage.

The beautifully finished front portico will welcome you to the grand entrance leading to the home's spacious open plan of the family room with bar, dining area, and kitchen. The covered rear deck...

Home Details

Summary
Plan #:161-1098
Starting at:$1950.00
Floors:1
Bedrooms:2
Full Baths:2
Half Baths:1
Garage:
Square Footage
Heated Area:2748 Sq. Ft.
First Floor:2748 Sq. Ft.
Unheated Area:
Basement:2748 Sq. Ft.
Garage:1820 Sq. Ft.
Porch:1315 Sq. Ft.
Dimensions
Width:111' 10''
Depth:98' 4''
Architectural Styles
Exterior Wall Material
Vinyl SidingRock/StoneWood Siding
Roofing Type
GableGable/Shed Dormer
Roofing Material
Asphalt ShinglesMetal
Roof Pitch
8/12
Ceiling Height
10 Foot Ceiling
Special Feature
FireplaceDining RoomGuest RoomHome OfficeMud RoomFamily RoomMain Level LaundryLibraryColor PhotosSplit BathroomStorageOpen Floor PlanInterior Photos
Garage Type
Attached GarageCourtyard Entry
Fireplaces
One Fireplace
Exterior Wall Framing
2x6
Kitchen Features
Kitchen IslandWalk-in PantryPeninsula/Eating Bar
Porches and Exterior Features
Covered Rear PorchPortico
Master Suite Features
Main Floor MasterMaster BathroomWalk In ClosetSplit Master Bedroom

What’s Included

Most plan sets include the following:

icon text-secondary-400 includedExterior elevations

icon text-secondary-400 includedMain Floor plan

icon text-secondary-400 includedArchitectural’ Foundation Plan

icon text-secondary-400 includedArchitectural’ Roof Plan

icon text-secondary-400 includedSections

icon text-secondary-400 includedMain Floor Electrical Plan

icon text-secondary-400 includedNo Framing

What’s Not Included

These items are  NOT included:

icon text-secondary-400 includedArchitectural or Engineering Stamp - handled locally if required.

icon text-secondary-400 includedSite Plan - handled locally when required.

icon text-secondary-400 includedPlumbing Drawings (drawings showing the actual plumbing pipe sizes and locations) - your subcontractors handle this.

icon text-secondary-400 includedEnergy calculations - handled locally when required.

Related House Plans

Plan Collection
Plan Collection
Plan Collection
Plan#194-1010
Starting at$1395
2605
Sq Ft
1
Story
2
Bed
2.5
Bath
3
Car
Plan Collection
Plan Collection
Plan Collection
Plan#161-1085
Starting at$1750
2593
Sq Ft
1
Story
2
Bed
2.5
Bath
3
Car
Plan Collection
Plan Collection
Plan Collection
Plan#161-1042
Starting at$2200
3321
Sq Ft
1
Story
2
Bed
2.5
Bath
3
Car
View All

Other Plans By This Designer

Plan Collection
Plan Collection
Plan Collection
Plan#161-1145
Starting at$2650
3907
Sq Ft
2
Story
4
Bed
3.5
Bath
3
Car
Plan Collection
Plan Collection
Plan Collection
Plan#161-1077
Starting at$4500
6563
Sq Ft
2
Story
5
Bed
5.5
Bath
5
Car
Plan Collection
Plan Collection
Plan Collection
Plan#161-1084
Starting at$4200
5170
Sq Ft
2
Story
5
Bed
5.5
Bath
3
Car